1. Lý giải liên quan đến đất nở hậu
Thông thường người ta vẫn có xu hướng để ý đến các lô đất nở hậu. Một số ý kiến cho rằng mảnh đất nở hậu dễ giúp gia chủ đạt được sự hanh thông về tiền tài hay hậu vận.
Đất nở hậu nghĩa là gì?
Nhìn chung, đất nở hậu hay đất mở hậu hiểu theo nghĩa đơn giản nhất là mảnh đất có diện tích phần sau nhà lớn hơn phần trước. Các mảnh đất sẽ có dáng hình phễu hoặc hồ lô, chúng càng phình to về mặt sau thì càng được đánh giá là nở hậu.
Như vậy, đặc điểm chung của các mảnh đất nở hậu là diện tích tiếp xúc với đường lớn hay còn gọi là diện tích mặt tiền nhỏ. Càng đi vào sâu trong nhà thì không gian sẽ càng mở rộng. Mảnh đất có thể có phần phình to hơi thoải theo kiểu hình thang hoặc có đoạn thắt rồi mới phình to.
Những thửa đất hình chữ L nở hậu hay đất hình thang nở hậu thường được nhiều người săn lùng vì mang nhiều giá trị trong phong thủy và hơn nữa là thuận lợi trong việc thiết kế, bố trí nội thất.
Nhà nở hậu là gì?
Cứ căn cứ vào định nghĩa mảnh đất nở hậu là gì, bạn sẽ hình dung ra được nhà nở hậu là như thế nào. Đây là căn nhà được xây dựng trên một mảnh đất có dáng nở hậu. Đôi khi ngôi nhà có thể được xây trên toàn bộ diện tích đất hoặc chỉ một phần đất. Thế nhưng, điểm cốt lõi của một ngôi nhà nở hậu là phải có cấu trúc nhỏ ở vị trí mặt tiền và mở dần về phía sau lô đất.

Hình ảnh thiết kế của một mẫu nhà nở hậu
Một mảnh đất có thể mang dáng nở hậu không quá rõ ràng nhưng nhờ việc thiết kế nhà khéo léo, có chủ đích là gia chủ đã có thể sở hữu một ngôi nhà nở hậu. Một số mẫu nhà nở hậu phổ biến có thể kể đến như:
Biệt thự nở hậu:
Đã là biệt thự thì bao giờ dạng nhà này cũng có diện tích từ khá lớn đến rất lớn. Tuy vậy, nếu xây biệt thự trên một mảnh đất nở hậu thì thường biệt thự này sẽ có mặt tiền chỉ là gian phòng khách. Hai bên hông nhà dần mở ra thành các không gian chức năng khác như bếp hoặc gara để xe. Khoảng đất rộng vốn có của mảnh đất nếu không xây nhà hết thì thường được gia chủ tận dụng làm vườn hoa hoặc dạng mái hiện, tiểu cảnh thư giãn.
Nhà phố nở hậu:
Nhà nở hậu vốn không khác gì “vàng” của giới đầu tư bất động sản. Ngày nay bạn có thể bắt gặp không ít các mẫu nhà mặt phố cố tình mở rộng phía sau nhằm lấy vía phát đạt cho chuyện làm ăn. Một căn nhà phố nở hậu thông thường có ưu điểm rất lớn là thông gió, thoáng khí tốt, mặt tiền tương đối sáng.
Nhà ống nở hậu:
Người ta thường ít săn lùng các lô đất nở hậu để xây nhà ống. Lý do là vì các mẫu nhà ống nở hậu đều có mặt tiền hẹp đến rất hẹp, dễ gây ra một số bất tiện khi sinh hoạt. Thường thì những ngôi nhà kiểu này phải xây cao từ 3 đến 5 tầng để mở rộng diện tích sử dụng, đảm bảo sự tiện nghi cho các thành viên trong gia đình.
Đất nở hậu có tốt không dưới góc nhìn phong thủy?
Chắc hẳn mối quan tâm chính của bạn đang là đất nở hậu tốt hay xấu cũng như có nên mua kiểu đất này xây nhà hay không.
Đất mở hậu được người xưa quan niệm là mảnh đất có hình dạng đại cát, thể hiện sự nảy nở, tiền đồ vô lượng trong tương lai. Dần dần, đất có nở hậu hay không đã trở thành một trong những tiêu chí quan trọng để chọn đất cất nhà. Nhiều người tin rằng sở hữu mảnh đất mở hậu hoặc xây nhà trên mảnh đất như vậy gia chủ sẽ được hưởng sự may mắn về tài lộc, danh tiếng cũng như đường con cái.

Đất nở hậu được cho là có khả năng tụ hỷ khí tốt, đem đến điềm lành cho gia chủ
Ngày nay, các mảnh đất có dáng nở hậu vẫn là các mảnh đất “vàng” trong mắt giới đầu tư bất động sản. Các mảnh đất có dáng này dễ bán, dễ thu được lợi nhuận cao.
Với mong muốn nhận được sự may mắn về mặt phong thủy, các nhà đầu tư, đặc biệt là giới kinh doanh, buôn bán luôn muốn săn lùng những lô đất nở hậu. Họ muốn xây cơ sở kinh doanh hoặc trụ sở chính công ty tại mảnh đất có hỷ khí và hanh thông về hậu vận.
Thế nhưng liệu các mảnh đất mở hậu “đắt như tôm tươi” có thực sự “đáng đồng tiền bát gạo”? Trên thực tế, các mảnh đất có phần sau mở rộng thường thông gió rất tốt. Nếu bạn sở hữu một ngôi nhà trên mảnh đất có hình dáng như vậy thì điều đầu tiên bạn nhận được sẽ là các trải nghiệm sinh hoạt thoải mái. Bạn gần như sẽ không còn phải đối mặt với tình trạng bí bách, nóng nực như các mẫu nhà ống khác.
Ngoài ra, dưới góc nhìn phong thủy, một mảnh đất tốt luôn phải đảm bảo thoáng khí. Dòng khí lưu chuyển qua nhà sẽ giúp toàn bộ ngôi nhà tràn đầy sinh khí, sức sống. Khí càng lưu chuyển tốt thì gia chủ càng có nhiều cơ hội bắt được cát vận, hỷ khí.
Mảnh đất nở hậu còn đặc biệt ở chỗ nó có dáng phình to từ bụng đến phía sau cùng. Một mảnh đất như vậy sẽ có khả năng lưu giữ lại cát khí tại phần phình to của mình. Cát khí này sẽ được chứa trong nhà và tác động trực tiếp lên hậu vận của gia chủ. Thường thì gia chủ sẽ cảm nhận được rõ rệt đường sức khỏe, tình duyên, sự nghiệp, tài lộc, gia đạo ngày càng thuận lợi, may mắn và tấn tới.
Mặt khác, nhiều người cũng cho rằng mảnh đất nở hậu có dáng hồ lô nên hỷ khí sẽ bị giữ lại trong nhà thay vì tràn ra ngoài và biến mất theo thời gian. Có thể nói mảnh đất này nhận được đánh giá như “thần giữ của”, may mắn và tài vận đã đi vào thì không có đường ra. Gia chủ càng ở lại mảnh đất lâu dài thì may mắn tích lại càng nhiều, làm ăn càng phát đạt.
Một số lưu ý khi xây nhà trên đất nở hậu
Thực tế thì mảnh đất trước nhỏ sau to tuy được đánh giá là mang hỷ khí nhưng lại rất dễ khiến tổng thể ngôi nhà xây lên mất đi sự cân đối, vuông vức và hài hòa vốn có. Ngôi nhà có thể bị lệch, méo và khả năng ảnh hưởng đến cả vấn đề sinh hoạt chung chứ không chỉ là yếu tố thẩm mỹ.
Thế nhưng, gia chủ hoàn toàn có thể sở hữu một ngôi nhà trong mơ trên chính mảnh đất mở hậu của mình nếu tuân theo một số lưu ý sau đây:
- Cẩn trọng khi chọn mẫu nhà ngay từ khi lên ý tưởng thiết kế, xây dựng. Bạn nên chọn dáng nhà tương ứng với diện tích và đặc điểm của mảnh đất mình đang sở hữu. Thường thì không nên xây nhà trên toàn bộ diện tích đất ở vì xây sát mép đất sẽ khiến ngôi nhà dễ lộ ra nhược điểm không vuông vức.
- Nếu bạn đang thực sự sở hữu một mảnh đất nở hậu và cần xây nhà thì lời khuyên là bạn không nên tự thiết kế. Hãy nhờ đến sự tư vấn cũng như hỗ trợ của các kiến trúc sư chuyên thiết kế nhà cho mẫu đất mở hậu. Họ sẽ giúp bạn phát huy được hết các ưu điểm của mảnh đất này cũng như khắc phục tối đa nhược điểm về thẩm mỹ.
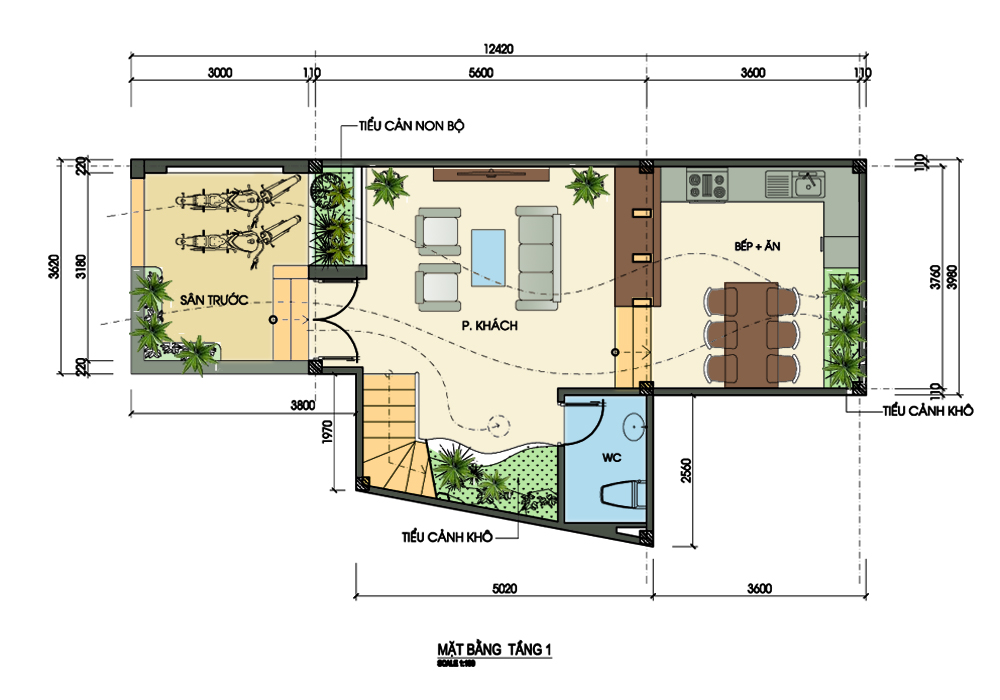
- Trong trường hợp mảnh đất nở hậu hình chữ L thì giải pháp tối ưu nhất chính là xây một cái sân nhỏ ở trước nhà hoặc giữa nhà. Sân này có tác dụng tương tự như giếng trời tại các nhà ống vậy. Nó sẽ giúp căn nhà luôn thông thoáng, hỗ trợ lưu chuyển khí tức của mảnh đất và giúp việc di chuyển, sinh hoạt giữa các phòng chức năng trong nhà thuận tiện hơn.

Các mẫu sân nhỏ kết hợp tiểu cảnh như thế này là sự lựa chọn rất đáng cân nhắc cho mảnh đất nở hậu
- Với mảnh đất nở hậu có dáng chéo thì bạn cần khéo léo hơn trong việc chọn mẫu thiết kế. Mảnh đất này rất dễ khiến ngôi nhà tương lai lộ ra nhược điểm. Cách an toàn nhất để hạn chế các góc nhà bị méo là bạn xây một bức tường chính làm chuẩn cho cả ngôi nhà. Từ góc tường này bạn hãy phát triển thêm các không gian sinh hoạt phụ như phòng khách, phòng ngủ.
Riêng với phần đất méo lộ hẳn ra ngoài thì hãy tận dụng chúng để cải tạo thành các không gian phụ như nhà kho hoặc sân vườn, tiểu cảnh,...
- Nếu bạn chỉ có một mảnh đất nở hậu thông thường thì hãy ưu tiên chọn các thiết kế tạo hình phòng vuông vức. Một số yếu tố phụ trợ như kệ để đồ tam giác hoặc các phần vách trang trí, giá đựng đồ có thể tạo hiệu ứng thị giác về một căn nhà đẹp, thuận mắt thay vì bị méo.
2. Lý giải liên quan đến đất thóp hậu
Đất nở hậu và đất thóp hậu vẫn thường bị đặt lên bàn cân so sánh. Vậy đất thóp hậu là mảnh đất như thế nào, có phải nó thực sự trái ngược với dáng đất mở hậu hay không?
Đất thóp hậu là gì?
Đất thóp hay đất thóp hậu là mảnh đất được đánh giá có hình dạng đối lập với đất nở hậu. Đất thóp hậu hiểu đơn giản là mảnh đất có diện tích mặt tiền lớn và thu hẹp dần vào sâu bên trong.
Nếu bạn muốn tìm hiểu nhiều hơn về dáng đất thóp này thì có thể tham khảo quan niệm của người xưa về một căn nhà thóp hậu như sau:
- Nhà thóp hậu là những ngôi nhà nằm trên mảnh đất có dáng rất xấu, thường là khuyết mất một góc phía sau, hông nhà tạo thành góc nhọn hoặc các mảnh đất có dáng không vuông do nằm tại các vùng đồi, núi gồ ghề.
- Nhà thóp hậu cũng có thể là những ngôi nhà có vị thế không thuận như đường đi mặt tiền chật hẹp, cong, gấp khúc,... Cống rãnh hoặc cây cổ thụ lấn vào phía sau của mảnh đất, có ngõ hoặc ngách nhìn thẳng vào nhà,...

Một mẫu nhà thóp hậu theo quan niệm ngày nay
Phong thủy đất thóp hậu có tốt không?
Vậy có nên mua đất thóp hậu không hay xây nhà trên đất thóp hậu có sao không. Chúng ta hãy dùng góc nhìn phong thủy để cùng đánh giá xem mảnh đất đầu voi đuôi chuột có ảnh hưởng gì đến hậu vận của gia chủ nhé.
Thứ nhất, một mảnh đất có diện tích phần mặt tiền rộng hơn mặt sau, thậm chí càng vào sâu mảnh đất càng hẹp gây bất tiện rất nhiều cho việc đi lại, sinh hoạt chung. Hầu hết các ngôi nhà có dáng như thế này sẽ gây cảm giác bí bách, ngột ngạt cho các thành viên sinh sống tại đây do khả năng thông gió phía sau nhà bị hạn chế. Về lâu về dài thì việc bí khí, tù túng sẽ không có lợi cho tình trạng sức khỏe của mọi người.
Thứ hai, sự méo mó trong hình dạng khu đất không chỉ là điểm không thuận về mặt thẩm mỹ mà còn không thuận về phong thủy. Dáng đất thóp cũng vì thế mà bị coi là mảnh đất không có hậu. Phần mặt tiền rộng của những mảnh đất này có thể thu nạp hỷ khí, cát khí cho gia chủ nhưng phần thóp phía sau sẽ sớm đẩy chúng ra ngoài. Vậy là ngôi nhà của bạn sẽ không giữa được tài lộc, may mắn vốn có.
Thứ ba, đất thóp hậu chính là thế đất “hao người, tốn của” trong phong thủy. Hình dạng bị khuyết, thiếu ở phần sau của mảnh đất chính là thể hiện của việc hậu vận gia chủ không được thuận.
Cách hóa giải đất thóp hậu
Gia chủ có thể tận dụng các lợi thế của mảnh đất cũng như sử dụng các biện pháp, vật phẩm phong thủy để hóa giải các bất lợi nếu có.
Thực tế thì một ngôi nhà thóp hậu không hoàn toàn xấu. Bạn có thể tận dụng mặt trước của ngôi nhà để thu hút tài lộc và tìm cách hạn chế việc tài vận bị đẩy ra ngoài thông qua cửa sau nhà. Mặt khác, nếu vẫn còn lo lắng về tính thẩm mỹ khi xây nhà trên đất thóp hậu thì bạn có thể nhờ đến các kiến trúc sư chuyên thiết kế mẫu nhà kiểu này.
Vậy vấn đề quan trọng nhất trong trường hợp này không phải là câu chuyện phải tránh bằng được mảnh đất bị thóp mà là nên hóa giải đất thóp hậu như thế nào. Có rất nhiều cách để bạn có thể tận dụng các lợi thế trên mảnh đất của mình trong thời điểm xây nhà như chọn hướng làm cửa chính, phòng bếp, nhà tắm quay hướng nào,... Ngoài ra, bạn có thể cân nhắc đặt các bể cá phong thủy, trồng cây, làm tiểu cảnh tại sân vườn để gia tăng dương khí.

Một căn bếp thóp hậu sử dụng cây xanh, giếng trời và cầu thang để cân bằng hiệu ứng thị giác
Đồng thời, nên chú ý cả việc bày trí đồ đạc, nội thất sao cho hợp lý, khoa học. Hạn chế tối đa sự bừa bộn, lộn xộn của nội thất có thể khiến không gian chật chội, khiến địa thế càng ảnh hưởng xấu đến con người.
Rất nhiều mảnh đất đất thóp hậu vẫn giúp gia chủ làm ăn phát đạt, tấn tới, vạn sự viên mãn sau khi áp dụng các phương pháp như sau:
- Tận dụng tối đa thiết kế giếng trời, giếng trời nên được khuyến khích đặt tại mặt sau của nhà thóp hậu. Khu vực này sẽ không chỉ là nơi thông gió, tạo cảm giác nhà rộng hơn, sáng hơn mà còn là nơi loại bỏ đi các khí xấu còn tồn đọng trong nhà.
- Bạn cần chọn ra một bức tường làm tường trụ chính và đồng thời là mốc chuẩn cho cả ngôi nhà. Từ vị trí tường này ngôi nhà có thể mở ra các không gian sinh hoạt khác nhau mà không mất đi sự thống nhất, sự liên kết cơ bản luôn có tại các ngôi nhà thông thường. Một số khu vực là góc khuyết, chéo của mảnh đất nên tận dụng làm gian chứa đồ, sân vườn hóng gió, hồ sen phong thủy hoặc cầu thang lộ thiên,...

Một mẫu nhà thóp hậu khác tận dụng thiết kế cầu thang xoắn để cân bằng không gian
- Nhà nên được đặt ở vị trí trung tâm của đất thóp hậu nếu không xây sát viền đất. Xây nhà cách xa viền đất sẽ tạo cảm giác nhà vuông và cân đối hơn.
- Các vật phẩm phong thủy có ý nghĩa át điềm hung là rất quan trọng với các mảnh đất thóp hậu. Thường thì gia chủ có thể cân nhắc sử dụng một trong số các đồ vật sau đây: gương Bát quái, màn sáo hoặc chuông gió phong thủy. Một số tĩnh vật trang trí như cây xanh cũng có thể được treo quanh nhà để cân bằng dương khí.
3. Tham khảo một số quan niệm khác về đất nở hậu đất thóp hậu
Batdongsan.com.vn vừa chia sẻ một số thông tin mang tính chất tham khảo về hai dáng đất thóp hậu và nở hậu dưới góc nhìn phong thủy. Thực tế, đất mở hậu vẫn mang nhiều giá trị về mặt phong thủy và thẩm mỹ, được giới đầu tư chú ý hơn. Thế nhưng, có phải cứ nở hậu thì vạn sự hanh thông còn thóp hậu thì xui xẻo?
Thực chất nở hậu và thóp hậu đều là hai thế đất đặc biệt trong phong thủy
Phong thủy phương Đông thường đặt vạn vật trong mối tương quan giữa Thiên, Địa và Nhân. Trong đó, điều cốt lõi, nòng cốt cơ bản nhất để gắn kết con người với thiên nhiên là sự hài hòa, cân đối, vuông tròn. Họ cho rằng, những thứ cân đối đều mang đến vượng khí, điềm lành và hưng thịnh dài lâu.
Nếu bàn về yếu tố phong thủy trong lĩnh vực bất động sản thì cát thổ trạch chân chính phải là mảnh đất vuông vức, bằng phẳng, thoáng khí. Đất có điểm tựa đằng sau và mở rộng tầm nhìn về phía trước. Đẹp hơn nữa thì có thể đáp ứng cả giao thông thuận lợi, nguồn nước sạch dồi dào cùng cây cối phong phú, tốt tươi,...

Mảnh đất đẹp nhất theo phong thủy không phải đất nở hậu mà là mảnh đất vuông, có các cạnh viền thẳng
Các mảnh đất có hình dạng đặc biệt thường được xếp vào nhóm hung thổ trạch. Ví dụ như đất thóp hậu chính là một trong những hung thổ trạch tiêu biểu. Thế đất trước rộng sau hẹp thường khiến khí tức của ngôi nhà bị tù hãm, gây bất lợi cho việc cư trú lâu dài của gia chủ.
Đất nở hậu cũng bị coi là thế đất không vuông trong phong thủy. Mảnh đất này có thể hút tài lộc tốt, giữ lại hỷ khí nhưng nếu địa thế xung quanh không thuận lợi thì dễ chuyển sang tình trạng úng khí, tụ điểm hung và chuyển thành điều bất lợi cho gia chủ.
Một góc nhìn khác về việc đánh giá nở hậu hay thóp hậu
Chuyện đâu là mặt trước và đâu là mặt sau của ngôi nhà đôi khi không nhất thiết cứ phải nương theo cái nhìn chung của số đông. Bạn hoàn toàn có thể tự quyết định xem đâu là phần “hậu” cho mảnh đất của mình. Hai yếu tố cơ bản để quyết định chuyện này có thể kể đến như:
- Phần hậu là phần đối diện với mặt tiền, vậy bạn cứ chọn mặt có lợi nhất để làm mặt tiền rồi hãy quyết định đâu là mặt hậu. Đôi khi chỉ cần xoay mặt tiền là bạn đã không còn phải chịu thế đất thóp hậu nữa.
- Yếu tố thứ hai là căn cứ vào mục đích sử dụng không gian trong nhà thay vì cứ phải áp theo hình khối địa lý bên ngoài của mảnh đất. Ví dụ mảnh đất bạn đang đầu tư để kinh doanh thì đương nhiên phải ưu tiên mặt trước rộng rãi. Mặt sau tạo thành đất thóp hậu vẫn chấp nhận được. Bạn cũng có thể cân nhắc chuyển cửa chính sang bên hông hoặc đi vòng lên trước nhà từ cửa sau để tránh cảm giác thóp hậu nếu cần.
Gia chủ hoàn toàn có thể biến nhược thành ưu
Đất thóp hậu và đất nở hậu đều có các ưu nhược điểm nhất định. Hiện nay thị trường bất động sản đúng là sôi động nhưng không phải lúc nào bạn cũng có cơ may tìm được mảnh đất hoặc căn nhà vuông vức không tỳ vết, đặc biệt là tại các thành phố lớn. Nếu bạn cứ chăm chăm vào việc tránh đất thóp hậu hoặc nở hậu thì rất khó để tìm mua được lô đất ưng ý, thậm chí còn dễ sa vào trường hợp mê tín dị đoan.
Bạn cần lạc quan nhận định rằng nở hậu và thóp hậu chỉ là hai khái niệm có tính chất tương đối, đồng thời chúng chỉ có vai trò khá khiêm tốn trong việc xem xét địa thế nhà đất. Ngoài việc nở hậu, thóp hậu thì chúng ta còn cần xem xét chọn bàn thờ theo thiên thời, chọn tọa hướng để địa lợi tương ứng với mệnh trạch nhân hòa của gia chủ. Đây mới chính là các yếu tố quan trọng nhất quyết định vượng khí của một mảnh đất.

Một mảnh đất thóp hậu đã được gia chủ sử dụng thiết kế nhà vườn để cân bằng yếu tố thẩm mỹ
Vật tốt vẫn không bằng vật phù hợp, một mảnh đất thích hợp để cư trú lâu dài nên là mảnh đất phù hợp với gia chủ. Một thế đất có thể hợp với người này nhưng chưa chắc đã hợp với người khác. Tùy vào mục đích sử dụng, năm sinh của gia chủ, thời điểm mua đất làm nhà mà gia chủ chọn lựa.
Thóp hậu hay nở hậu chung quy cũng chỉ là một tình huống địa lý mà gia chủ cần chủ động giải quyết. Nếu mảnh đất bị chéo thì xây nhà vuông, nếu nhà bị chéo thì lại chọn nội thất che lấp đi nhược điểm. Hiện nay các phương án sử dụng nội ngoại thất đều rất đa dụng, bạn có thể dễ dàng tìm được yếu tố cải tạo sự chưa cân đối trong phong thủy nhà ở của mình.
Bạn hãy chú ý tạo các không gian phụ như giếng trời, tủ âm tường, cầu thang để che đi phần không vuông của ngôi nhà. Quan trọng hơn cả là các không gian chính như phòng khách, bếp ăn, phòng ngủ được thiết kế hài hòa, tiện lợi. Với các góc không vuông nhỏ hơn thì bạn có thể bố trí thêm cây xanh, ban công, tiểu cảnh,...
Nếu sở hữu mảnh đất thóp hậu thì có thể cải tạo nhà nở hậu theo chiều cao. Tức là ngôi nhà vẫn hẹp về sau nhưng càng đi vào trong thì nhà càng mở lên cao, tạo tầm nhìn rộng và tăng tối đa sự thoáng đãng.
Vậy là đất nở hậu hay đất thóp hậu đều có các ưu và nhược điểm riêng. Khi đầu tư bất động sản cũng không nên chỉ căn cứ vào duy nhất hai tiêu chí này để chọn đất làm nhà. Điều quan trọng nhất của một mảnh đất có thể hưng vượng lâu dài là sự phù hợp với gia chủ cũng như cách khéo léo trong cách bày trí nội thất và sử dụng các phương pháp phong thủy hóa giải. Chúc các bạn sớm tìm được mảnh đất ưng ý!
Hà Linh