logo
ISSN 2734-9020

3 mẫu thiết kế nội thất căn hộ mê hoặc người ngắm

Thứ ba, 08/06/2021 - 15:45

Thiết kế nội thất căn hộ sao cho vừa đảm bảo đầy đủ công năng, tiện dụng vừa giàu tính thẩm mỹ luôn là thách thức với cả gia chủ lẫn kiến trúc sư, nhất là đối với những căn hộ có diện tích hạn chế.

Dưới đây là 3 mẫu thiết kế nội thất căn hộ chung cư đẹp, rất đáng để bạn tham khảo và áp dụng linh hoạt cho không gian sống nhà mình. Hãy cùng chúng tôi lần lượt tham quan, khám phá!

Thiết kế nội thất chung cư 70m2 với bảng màu cá tính

Căn hộ 70m2 đầu tiên mà chúng tôi "ghé thăm" thuộc về một cặp vợ chồng trẻ sành điệu. Thiết kế nội thất căn hộ thông minh, cách sắp xếp đồ đạc khoa học giúp không gian sống đẹp hơn, ấn tượng hơn rất nhiều. Bảng màu cam bí ngô giúp xác định các khu vực khác nhau, trong khi các tấm thạch cao 3D tạo sự phân tách rõ rệt giữa các khu vực chức năng.

Nội thất phòng khách chung cư đẹp với ghế sofa hiện đại màu xám bao bọc hai bên, bàn cà phê tròn với bề mặt trượt linh hoạt, tích hợp chức năng lưu trữ thông minh.
Nội thất phòng khách chung cư đẹp với ghế sofa hiện đại màu xám bao bọc hai bên, bàn cà phê tròn với bề mặt trượt linh hoạt, tích hợp chức năng lưu trữ thông minh.
Điểm độc đáo, nổi bật của phòng khách này là màu nhấn bí ngô đậm đà, nổi bật trên các bức tường màu than chì ấn tượng.
Điểm độc đáo, nổi bật của phòng khách này là màu nhấn bí ngô đậm đà, nổi bật trên các bức tường màu than chì ấn tượng.
Sắc vàng bí ngô tạo điểm nhấn ấm áp cho khu vực ăn uống, nơi có bộ bàn ghế hình tròn màu đen cá tính và đèn thả mặt dây chuyền hoàn hảo.
Sắc cam bí ngô tạo điểm nhấn ấm áp cho khu vực ăn uống, nơi có bộ bàn ghế hình tròn màu đen cá tính và đèn thả mặt dây chuyền hoàn hảo.
Nội thất chung cư đẹp với ghế đẩu màu cam hài hòa với bàn bar cà phê lơ lửng bên khung cửa sổ kính ngập tràn ánh sáng tự nhiên.
Nội thất chung cư đẹp với ghế đẩu màu cam hài hòa với bàn bar cà phê lơ lửng bên khung cửa sổ kính ngập tràn ánh sáng tự nhiên.
Thiết kế bếp chung cư với tủ màu hồng tạo sự tương phản thú vị với kệ tủ màu xám đậm, giúp cân bằng bảng màu cho không gian nấu nướng.
Thiết kế bếp chung cư với tủ màu hồng tạo sự tương phản thú vị với kệ tủ màu xám đậm, giúp cân bằng bảng màu cho không gian nấu nướng.
Sàn lát gạch terrazzo trải dài từ lối vào đến phòng bếp
Sàn lát gạch terrazzo trải dài từ lối vào đến phòng bếp. Điểm nhấn màu bí ngô tích hợp trong ngăn kệ lưu trữ giày dép dọc hành lang.
Giường bọc nệm nhung tăm màu bí ngô trở thành tâm điểm của căn phòng. Cùng với đó là gương tròn lớn ấn tượng trang trí đầu giường. Nội thất căn hộ toát lên vẻ sang trọng.
Giường bọc nệm nhung tăm màu bí ngô trở thành tâm điểm của căn phòng. Cùng với đó là gương tròn lớn ấn tượng trang trí đầu giường. Nội thất căn hộ toát lên vẻ sang trọng.
Chi tiết trang trí gương đầu giường được lặp lại trong hình dạng của một chiếc bàn làm việc độc đáo, bắt mắt đặt phía cuối chân giường.
Chi tiết trang trí gương đầu giường được lặp lại trong hình dạng của một chiếc bàn làm việc độc đáo, bắt mắt đặt phía cuối chân giường.
Khu vực giặt là được thiết kế tích hợp trong hệ tủ quần áo, nổi bật với sắc trắng tinh khôi trên nền đen tuyền tạo chiều sâu cho không gian.
Khu vực giặt là được thiết kế tích hợp trong hệ tủ quần áo, nổi bật với sắc trắng tinh khôi trên nền đen tuyền tạo chiều sâu cho không gian.
Gạch men màu bí ngô điểm tô khu vực xung quanh vòi hoa sen và gương soi hình elip mềm mại.
Gạch men màu bí ngô điểm tô khu vực xung quanh vòi hoa sen và gương soi hình elip mềm mại. Thiết bị màu đen nổi bật trên nền gạch cam. Bồn cầu treo tường giúp phòng tắm nhỏ trông thoáng rộng hơn về mặt thị giác.
Phối cảnh mặt bằng thiết kế nội thất chung cư 70m2
Phối cảnh mặt bằng thiết kế nội thất chung cư 70m2

Nội thất chung cư 63m2 với vách ngăn xoay độc đáo

Điểm thứ hai trong hai chuyến tham quan của chúng tôi là căn hộ chung cư rộng 63m2 sử dụng vách ngăn phòng xoay "kịch độc". Kiến trúc sư thiết kế căn hộ chung cư với tông màu trung tính chủ đạo - bảng màu đang rất được yêu thích, đặc biệt là những người trẻ. Các phòng chức năng được kết nối chặt chẽ bởi sàn gỗ ấm áp, thân thiện xuyên suốt.

Thiết kế chung cư đẹp với đèn sàn độc đáo mạ crôm uốn cong bao trùm không gian phòng khách, "cúi" xuống chiếc bàn cà phê bằng kính trong suốt như "vô hình".
Thiết kế chung cư đẹp với đèn sàn độc đáo mạ crôm uốn cong bao trùm không gian phòng khách, "cúi" xuống chiếc bàn cà phê bằng kính trong suốt như "vô hình".
Thảm trải sàn lớn tông màu xám đồng điệu với ghế sofa có lưng tựa sang trọng. Đôi chậu cây treo tường trang trí cho khu vực văn phòng làm việc tại nhà bên cạnh.
Thảm trải sàn lớn tông màu xám đồng điệu với ghế sofa có lưng tựa sang trọng. Đôi chậu cây treo tường trang trí cho khu vực văn phòng làm việc tại nhà bên cạnh.
Ở phía hành lang của dải phân cách xoay, một chiếc ghế dài hiện đại có bàn phụ gắn liền.
Ở phía hành lang của dải phân cách xoay, một chiếc ghế dài hiện đại có bàn phụ gắn liền.
Tường phòng khách và khu vực làm việc được ốp gỗ mộc mạc, thân thiện. Một chiếc ghế xoay được bố trí để có thể bao quát cả phòng khách.
Tường phòng khách và khu vực làm việc được ốp gỗ mộc mạc, thân thiện. Một chiếc ghế xoay được bố trí để có thể bao quát cả phòng khách.
Kiến trúc sư thiết kế căn hộ với vách ngăn xoay độc đáo, phần trên của vách ngăn ốp gương, phản chiếu không gian, hút sáng tự nhiên nhằm tạo cảm giác rộng rãi hơn cho căn hộ nhỏ.
Kiến trúc sư thiết kế căn hộ với vách ngăn xoay độc đáo, phần trên của vách ngăn ốp gương, phản chiếu không gian, hút sáng tự nhiên nhằm tạo cảm giác rộng rãi hơn cho căn hộ nhỏ.
Phòng bếp màu đen - xám, sử dụng chất liệu đá cẩm thạch sang trọng. Một chiếc đồng hồ treo tường lớn tạo điểm nhấn trang trí tinh tế. Cặp đôi đèn thả mặt dây chuyền giúp định vi không gian ăn uống gọn đẹp dành cho 4 người.
Phòng bếp màu đen - xám, sử dụng chất liệu đá cẩm thạch sang trọng. Một chiếc đồng hồ treo tường lớn tạo điểm nhấn trang trí tinh tế. Cặp đôi đèn thả mặt dây chuyền giúp định vị không gian ăn uống gọn đẹp dành cho 4 người.
Trong phòng ngủ tông màu cappuccino socola trung tính, tạo cảm giác nhẹ nhàng, thư thái cho người ngủ trong phòng.
Trong phòng ngủ tông màu cappuccino socola trung tính, tạo cảm giác nhẹ nhàng, thư thái cho người ngủ trong phòng.
Hệ thống đèn kim loại không chỉ cung cấp đầy đủ ánh sáng cho phòng ngủ mà còn đóng vai trò là điểm nhấn trang trí hút mắt.
Hệ thống đèn kim loại không chỉ cung cấp đầy đủ ánh sáng cho phòng ngủ mà còn đóng vai trò là điểm nhấn trang trí hút mắt.
Các yếu tố trang trí màu đen tạo thêm chiều sâu cho không gain, ngay cả cửa tủ quần áo cũng được phối màu để hợp nhất với chiếc giường.
Các yếu tố trang trí màu đen tạo thêm chiều sâu cho không gian, ngay cả cửa tủ quần áo cũng được phối màu để hợp nhất với chiếc giường.
Sơ đồ bố trí nội thất chung cư đơn giản 63m2
Sơ đồ bố trí nội thất chung cư đơn giản 63m2

Căn hộ 58m2 phong cách hiện đại giữa thế kỷ (Mid-century)

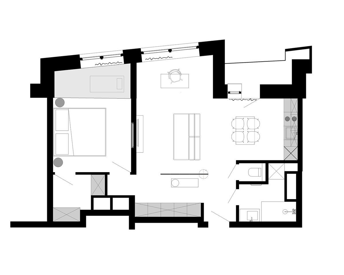
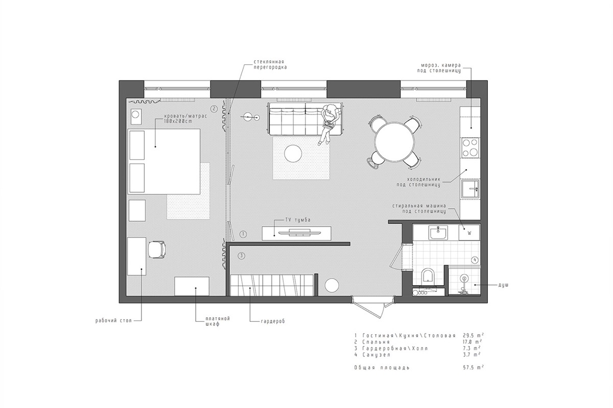
Chuyến tham quan nhà cuối cùng đưa chúng tôi đến một căn hộ 58m2 phong cách hiện đại giữa thế kỷ ấn tượng. Nội thất được thiết kế theo lối tối giản, chỉ sử dụng đồ đạc ở mức tối thiểu nhằm tạo không gian sống rộng rãi, thoáng mát, mang lại cảm giác thoải mái, dễ chịu cho các thành viên gia đình. Đặc biệt, thiết kế phòng ngủ rất đáng để bạn tham khảo khi sở hữu căn hộ có diện tích hạn chế, chưa tới 60m2.

 

Trong phòng khách căn hộ 58m2, một tấm thảm nhỏ ôm sát ghế sofa và để trống phần lớn không gian sàn bê tông mài mộc mạc.
Trong phòng khách căn hộ 58m2, một tấm thảm nhỏ ôm sát ghế sofa và để trống phần lớn không gian sàn bê tông mài mộc mạc.
Căn hộ nhỏ này được chia thành 3 khu vực chức năng, bao gồm phòng khách - phòng ăn - bếp mở liên thông; phòng ngủ và hành lang đóng vai trò là phòng thay đồ.
Căn hộ nhỏ này được chia thành 3 khu vực chức năng, bao gồm phòng khách - phòng ăn - bếp mở liên thông; phòng ngủ và hành lang đóng vai trò là phòng thay đồ.
Thay vì kệ tivi thông thường, một chiếc tủ hiện đại giữa thế kỷ trưng bày tác phẩm nghệ thuật ở phía trước ghế sofa, được thắp sáng bằng đèn bàn nhỏ.
Thay vì kệ tivi thông thường, một chiếc tủ hiện đại giữa thế kỷ trưng bày tác phẩm nghệ thuật ở phía trước ghế sofa, được thắp sáng bằng đèn bàn nhỏ.
Khung sơn tròn tạo khung cảnh ấn tượng cho cửa trước. Trong khi đó, móc treo tường giữ cho lối vào ngăn nắp và có tổ chức.
Khung sơn tròn tạo khung cảnh ấn tượng cho cửa trước. Trong khi đó, móc treo tường giữ cho lối vào ngăn nắp và có tổ chức.
Đèn mặt dây chuyền bằng thủy tinh được đặt ở vị trí chính xác trên bàn ăn. Nội thất phòng bếp màu đen, gỗ và xám tạo thêm chiều sâu cho căn phòng.
Đèn mặt dây chuyền bằng thủy tinh được đặt ở vị trí chính xác trên bàn ăn. Nội thất phòng bếp màu đen, gỗ và xám tạo thêm chiều sâu cho căn phòng. 
Trong khu vực thay đồ, tủ quần áo lớn tận dụng mặt phẳng thẳng đứng. Các bức tường dưới đã được sơn để phù hợp với sàn nhà, giúp mở rộng không gian một cách trực quan.
Trong khu vực thay đồ, tủ quần áo lớn tận dụng mặt phẳng thẳng đứng. Các bức tường dưới đã được sơn để phù hợp với sàn nhà, giúp mở rộng không gian một cách trực quan.
Vách kính ngăn cách phòng ngủ với không gian sinh hoạt chung, đảm bảo tính riêng tư yên tĩnh cần thiết mà vẫn thoáng rộng về mặt thị giác.
Vách kính ngăn cách phòng ngủ với không gian sinh hoạt chung, đảm bảo tính riêng tư yên tĩnh cần thiết mà vẫn thoáng rộng về mặt thị giác.
Bên trong phòng ngủ, chiếc giường lấy cảm hứng từ giữa thế kỷ được phủ lớp vỏ màu xám trung tính. Tấm thảm dệt tạo điểm nhấn ấm áp.
Bên trong phòng ngủ, chiếc giường lấy cảm hứng từ giữa thế kỷ được phủ lớp vỏ màu xám trung tính. Tấm thảm dệt tạo điểm nhấn ấm áp.
Bàn làm việc hiện đại và phù hợp với chiếc ghế màu đen thiết lập "văn phòng" tại gia phong cách tối giản ở góc phòng ngủ.
Bàn làm việc hiện đại và phù hợp với chiếc ghế màu đen thiết lập "văn phòng" tại gia phong cách tối giản ở góc phòng ngủ.
Sàn bê tông mài bóng, tường và trần sơn trắng kết hợp cùng hệ cửa kính đón sáng tự nhiên giúp căn hộ nhỏ luôn thoáng đãng, rộng rãi hơn so với diện tích thực tế.
Sàn bê tông mài bóng, tường và trần sơn trắng kết hợp cùng hệ cửa kính đón sáng tự nhiên giúp căn hộ nhỏ luôn thoáng đãng, rộng rãi hơn so với diện tích thực tế.
Phòng tắm và phòng giặt tích hợp gọn đẹp trong cùng một không gian.
Phòng tắm và phòng giặt tích hợp gọn đẹp trong cùng một không gian. Thiết kế chung cư theo phong cách tối giản hiện đại đang rất được ưa chuộng.
Mặt bằng thiết kế nội thất chung cư nhỏ 58m2
Mặt bằng thiết kế nội thất chung cư nhỏ 58m2
 

Lam Giang