logo
ISSN 2734-9020

7 mẫu nhà cấp 4 chữ U hiện đại

Thứ ba, 23/11/2021 - 17:43

Mẫu nhà cấp 4 chữ U tuy đơn giản nhưng mà hiện đại mang lại cho bạn cuộc sống thoải mái với chi phí xây dựng hợp lý. Dưới đây làm một số mẫu thiết kế nhà cấp 4 chữ U bạn có thể tham khảo.

Mẫu nhà cấp 4 chữ U với thiết kế tinh tế, sang trọng, là mơ ước của nhiều người. Nhà hướng ra sân trước, với phần sân trước rộng có thể để ô tô.

Mẫu nhà cấp 4 chữ U thiết kế hiện đại, nhã nhặn với 4 phòng ngủ mang lại cảm giác thoải mái và tiện nghi.

Mẫu nhà cấp 4 mái bằng chữ U thiết kế hiện đại với phần sân rộng phía trước đặt bàn uống trà và ngắm cảnh khu vườn.

Mẫu nhà cấp 4 chữ U với thiết kế độc đáo, hài hòa mang lại một không gian sống thoáng đãng với chi phí xây dựng hợp lý, đầy đủ công năng sử dụng, là lựa chọn lý tưởng cho nhiều gia đình.

Mẫu nhà cấp 4 chữ U với hai mặt tiền ấn tượng, sang trọng với kiến trúc pha trộn giữa truyền thống và hiện đại.

Mẫu nhà cấp 4 chữ U với thiết kế độc đáo của mái nhà, mang lại cảm giác thoải mái.

Mẫu nhà cấp 4 chữ U với thiết kế khoảng sân vườn rộng có bể bơi cho bạn có không gian để nghỉ ngơi và ngắm cảnh.

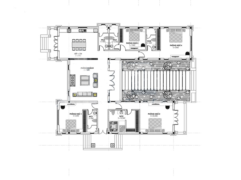
Một số bản vẽ chi tiết xây dựng nhà cấp 4 chữ U

Bản vẽ chi tiết mặt bằng xây dựng nhà cấp 4 chữ U với 3 phòng ngủ.

Bản vẽ chi tiết nhà vườn cấp 4 chữ U với 4 phòng ngủ.

Bản vẽ chi tiết mặt bằng nhà cấp 4 chữ U với 4 phòng ngủ.

Bản vẻ chi tiết mặt bằng nhà cấp 4 chữ U với 2 phòng ngủ.

Hoàng Phương (TH)

Tham khảo sản phẩm sơn Nippon Paint chất lượng caoChuyển đổi số cùng https://viettelnet.vn/ Viettel ghế massage The Fullton Vinhomes Hải Vân Bay Đà Nẵng: http://vinhomeshaivanbaydanang.com.vn/