Mẫu nhà cấp 4 ở nông thôn với thiết kế những đường nét đơn giản, kết hợp với kiến trúc mới lạ nhưng vẫn đảm bảo giá trị thẩm mỹ cao.

Màu sắc hài hòa mang lại giá trị thẩm mỹ cao cho không gian sống.

Với thiết kế đơn giản những vẫn đảm bảo đủ công năng, tiết kiệm được chi phí.
Mẫu nhà cấp 4 mái thái xếp chồng lên nhau mang lại giá trị thẩm mỹ cao. Với sự đa dạng về hình dáng của mái thái mang đến sự cuốn hút cho người nhìn.

Với sự đa dạng về màu sắc giúp cho gia chủ có nhiều lựa chọn.

Với sự sắp xếp, phân chia phòng hợp lý mang lại sự thoải mái và tiện nghi.
Mẫu nhà cấp 4 mái Nhật ở nông thôn với chi phí rẻ nhưng tích hợp được nhiều công năng. Với không gian xung quanh nhiều cây xanh mang đến một môi trường sống thân thiện.

Sự kết hợp hài hòa giữa hệ thống cửa và khung cảnh thiên nhiên mang đến một môi trường sống tiện nghi.

Với sự phân bố hài hòa và đồng nhất giữa các phòng mang lại cảm giác thoải mái.
Mẫu nhà cấp 4 ở nông thôn gần gũi với thiên nhiên, với thiết kế sang trọng đẹp mắt.

Nhà cấp 4 ở nông thôn với phong cảnh thiên nhiên được chú trọng.

Bản vẽ phân chia kết cấu từng phòng để gia chủ hình dung rõ hơn.
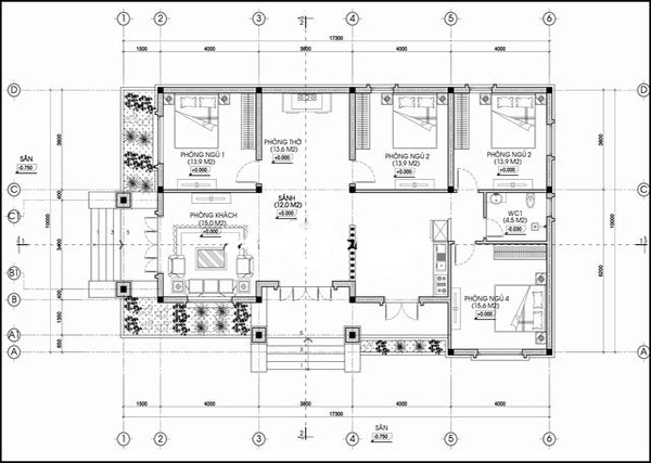
Mẫu nhà cấp 4 chữ L có 4 phòng ngủ với các đường nét kết hợp với màu sắc mang lại vẻ đẹp sang trọng, cuốn hút ánh nhìn.

Sự kết hợp màu sắc và bố cục hài hòa, đồng nhất cuốn hút ánh nhìn.

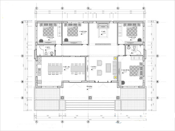
Bản vẽ mặt bằng nhà cấp 4 có 4 phòng ngủ phân chia hợp lý.
Mẫu nhà cấp 4 nông thôn với 3 phòng ngủ được bố trí nhà vệ sinh trong, với phòng bếp riêng biệt khép kín, bàn ăn lớn, phòng khách hiện đại. Hiên nhỏ được thiết kế thêm cây xanh và ghế ngồi nghỉ ngơi.

Với thiết kế hiện đại đầy công năng sử dụng.

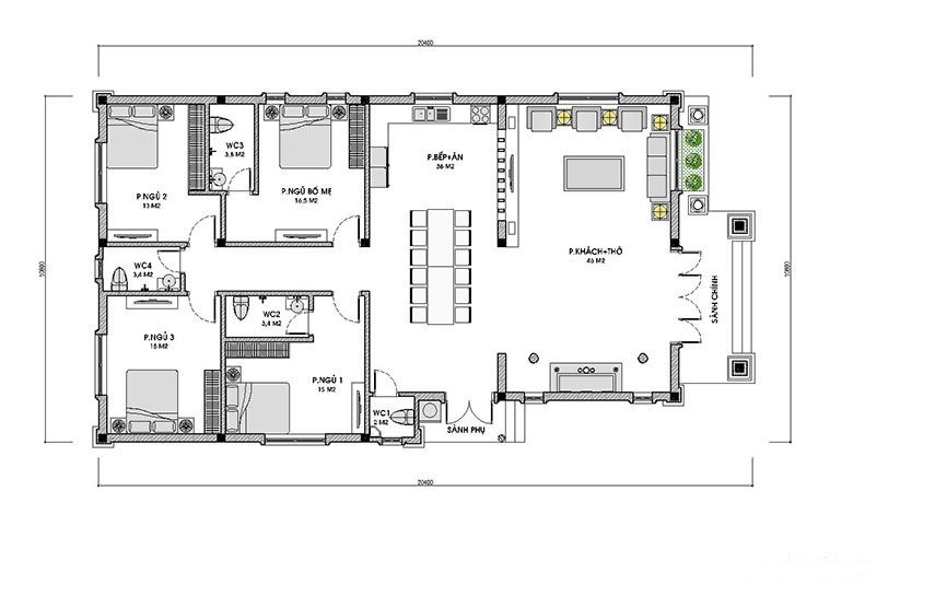
Bản vẽ mặt bằng có 4 phòng ngủ với 3 phòng ngủ có nhà vệ sinh trong tiện lợi.
Mẫu nhà cấp 4 chữ U có 2 mặt tiền thông thoáng với lối đi nhỏ lên sảnh. Tông màu trắng giúp ngôi nhà thêm thanh thoát và dịu nhẹ.

Có thể trồng cây xanh ở phần chữ U để đảm bảo sự hài hòa cho căn nhà.

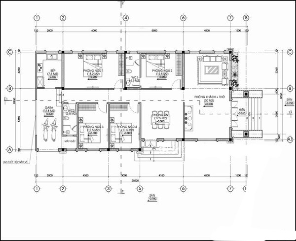
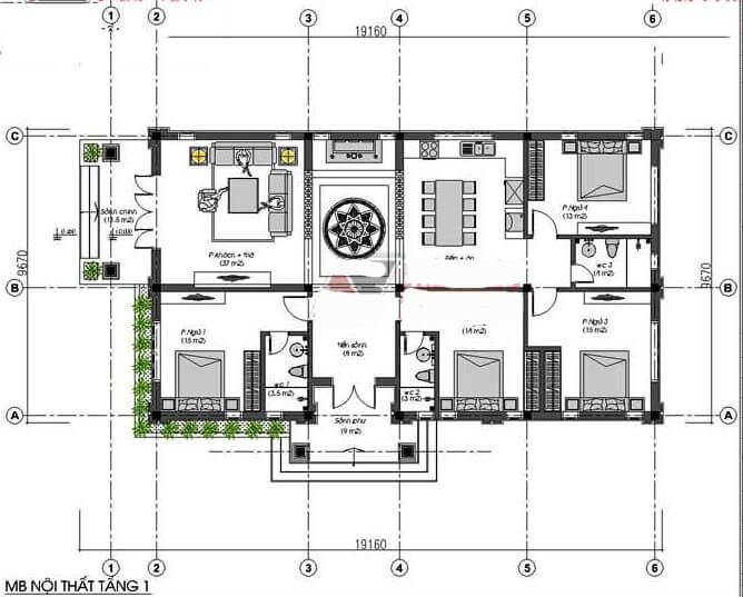
Bản vẽ chi tiết các phòng trong nhà với thiết kế 5 phòng vệ sinh thuận lợi cho sinh hoạt của mọi người.
Mẫu nhà cấp 4 với diện tích 100m2 có 4 phòng ngủ mang đến một cuộc sống tiện nghi, rộng rãi, hiện đại, có thể thêm gác lửng. nhưng không ảnh hưởng đến kiến trúc tổng thể của ngôi nhà mà còn giúp tăng thêm diện tích sử dụng.

Với ánh sáng được phân bố hợp lý mang đến một không gian sống thoải mái, hiện đại.

Bản vẽ nhà cấp 4 với diện tích 100m2 đẹp và hiện đại.
Mẫu nhà cấp 4 nông thôn với thiết kế đơn giản không quá cầu kỳ, cho ngôi nhà vẽ đẹp bình dị nhưng không kém phần hiện đại.

Nhà cấp 4 với thiết kế giống nhà kiểu truyền thống.

Bản vẽ mặt bằng với đầy đủ công năng của nhà cấp 4 có 4 phòng ngủ.
Hoàng Phương (TH)