|
|
| Mặt tiền ngôi nhà trông khá kín đáo với tường rào bê tông cao tông màu xám. Vườn cây xanh tốt mang đến bầu không khí trong lành, thoáng mát. |
 |
| Mặt sau công trình hút mắt với tường ốp gỗ màu cánh gián và hệ cửa xoay lớn mở ra ngoài. |
 |
| Với tường bê tông cao, đặc bao quanh, không gian nội thất tựa như tầng bán hầm nhưng vẫn rất thoáng đãng và tràn ngập ánh sáng tự nhiên. |
 |
| Thiết kế thông tầng tạo cảm giác thanh thoát, xua tan vẻ nặng nề của chất liệu bê tông. |
 |
| Hệ thống đèn LED âm trần được bố trí khéo léo giúp tôn lên vẻ đẹp của đường nét kiến trúc và mang đến cảm giác ấm áp, gần gũi. |
|
|
| Những chậu cây lớn đặt xen kẽ ô cửa xoay, trở thành một phần của tổng thể kiến trúc. |
|
|
| Liên thông với phòng khách là không gian ăn uống với bộ bàn ghế gỗ sẫm màu, đủ chỗ cho khoảng 10-12 người cùng lúc. |
 |
| Tường kính trong suốt xóa mờ ranh giới giữa không gian bên trong và cảnh quan sân vườn bên ngoài. Cùng với tường bê tông, cây xanh góp phần đảm bảo tính riêng tư cần thiết. |
 |
| Mái bê tông đục lỗ tạo bóng nắng sinh động trên sàn hiên. |
 |
| Không gian thư giãn ngoài trời mang hơi hướng thiền tịnh với nội thất gỗ tối giản, sàn gỗ mộc mạc, khóm tre trúc xanh tốt. |
|
|
| Phòng sinh hoạt chung trên tầng lầu được thiết kế theo phong cách sang trọng với sofa da màu trung tính, thảm trải lông mềm mại, kệ rượu bắt mắt nhờ đèn LED trang trí. |
|
|
| Không gian ngủ nghỉ thoáng rộng, kết nối trực tiếp với khoảng giếng trời ngập tràn nắng gió và hệ cửa xoay màu cánh gián ấm áp. |
|
|
| Phòng ngủ master có ban công riêng rộng rãi, trồng cây xanh. Tường gỗ đầu giường gắn đèn LED tạo điểm nhấn ấn tượng cho căn phòng. |
|
|
| Cây xanh lớn mọc xuyên giếng trời, góp phần che chắn nắng cho không gian sinh hoạt bên trong nhà bê tông. |
|
|
| Với thiết kế mở tinh tế, cây xanh hiện diện ở khắp mọi không gian nhà. |
|
|
| Phòng tắm lấy sáng tự nhiên trực tiếp từ giếng trời phía trên. |
|
|
| Kết cấu trần bê tông mang đến cái nhìn mới lạ cho không gian phòng. Gia chủ chuộng sử dụng nội thất gỗ, mây tre đan mộc mạc. |
 |
| Đêm xuống, ngôi nhà bừng sáng lung linh. Kiến trúc sư khéo léo bố trí đèn ngoại thất nhằm tôn lên vẻ đẹp tự nhiên của cây xanh. |
 |
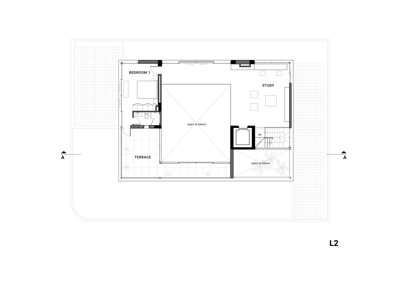
| Sơ đồ mặt bằng tầng 2 |
 |
| Sơ đồ mặt bằng tầng 4 |
 |
| Sơ đồ mặt bằng mái |
Thông tin công trình:
Tên: Bunker House
Địa điểm: TP.HCM
Diện tích: 877m2
Đơn vị thiết kế: Nha Dan Architects
Năm hoàn thành: 2019
Ảnh: Hiroyuki Oki
Lam Giang
>> Biệt thự ở Hạ Long góp phần xanh hóa không gian đô thị