![]() |
| Nằm trong Khu công nghiệp Vĩnh Lộc A (Bình Chánh, TP.HCM), cơ sở sản xuất hàng may mặc và phụ kiện được xây dựng trên diện tích đất 8.000m2, gồm 3 tòa nhà. |
![]() |
| Công trình được cải tạo từ một nhà máy cũ, bỏ hoang, không sử dụng trong một thời gian dài. Chủ đầu tư mong muốn biến nhà xưởng cũ thành không gian làm việc thoáng mát, nhiều cây xanh và ánh sáng tự nhiên. |
![]() |
| Văn phòng làm việc mới phong cách mở rộng thoáng, góp phần tăng tính kết nối giữa các nhân viên, mở rộng tầm nhìn ra cảnh quan bên ngoài. |
![]() |
| Ánh sáng tràn ngập và không gian xanh mát tự nhiên góp phần khơi nguồn cảm hứng làm việc, nâng cao năng suất và chất lượng sản phẩm. |
![]() |
| Ý tưởng thiết kế không gian làm việc gần gũi với thiên nhiên giúp giảm áp lực cho công nhân trong xưởng may. Nhà xưởng được mở rộng tầm nhìn xuyên suốt, không bị chia cắt bởi phòng kín hay tường ngăn thông thường. |
![]() |
| Với không gian làm việc mở này, quản lý các bộ phận cũng như công nhân có thể dễ dàng và tự do tương tác với nhau. Qua đó, tạo bầu không khí làm việc thoải mái, thân thiện. |
![]() |
| Kiến trúc sư bố trí khối văn phòng nằm gần lối vào chính của khuôn viên xưởng. Cùng với đó, mở rộng kết cấu bên trong công trình thêm 3m nhằm giảm bớt sự đơn điệu cho mặt tiền. |
![]() |
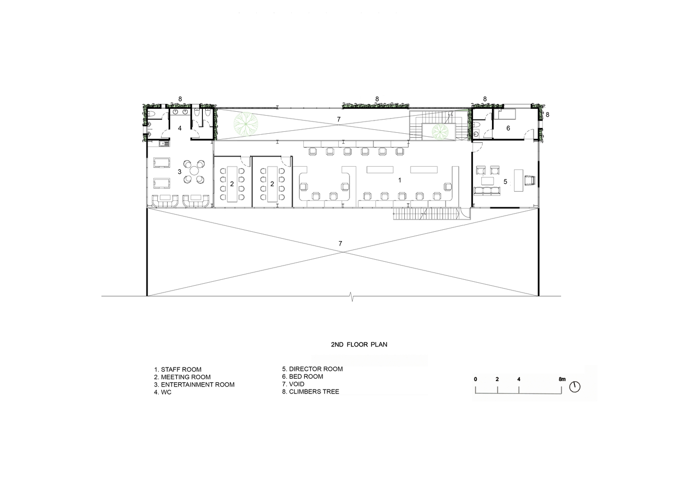
| Tầng 2 của xưởng may dành cho không gian làm việc, văn phòng quản lý và ban giám đốc. Hệ cửa kính trong suốt được sử dụng trong toàn bộ nhà máy nhằm lấy sáng tự nhiên tối đa và tăng tính tương tác. |
![]() |
| Tầng 1 nhà xưởng là không gian trưng bày hàng mẫu, hội họp, tiếp khách. Khu vực này được bố trí giữa những khu vườn, tạo cảm giác thư giãn, thoải mái. |
![]() |
| Tường đá ong cho phép lấy sáng, thông gió tự nhiên cho toàn bộ nhà xưởng. Thảm thực vật xanh mướt được tạo thành bởi loạt cây dây leo bao phủ mặt tiền, giúp giảm nhiệt hiệu quả. |
![]() |
| Không chỉ giúp làm mát tòa nhà, khu vườn trên mái còn cung cấp nguồn rau sạch cho bữa ăn của công nhân hàng ngày. |
![]() |
| Mặt bằng tầng 1 |
![]() |
| Mặt bằng tầng 2 |
![]() |
| Phối cảnh mặt cắt nhà xưởng |
Thông tin công trình:
-
Địa điểm xây dựng: Bình Chánh, TP.HCM
-
Diện tích: 621m2
-
Đơn vị thiết kế: Ho Khue Architects
-
Năm hoàn thành: 2015
-
Ảnh: Hiroyuki Oki
Lam Giang













