
Yêu cầu của chủ đầu tư là hoàn thiện phần kiến trúc và mặt tiền trên hiện trạng nhà cũ, trong đó thiết kế quán cafe 2 tầng, các tầng còn lại phía trên chỉ hoàn thiện cơ bản để cho thuê mặt bằng.

Với lợi thế mặt tiền rộng hướng ra Hồ Tây và khoảng lùi để bố trí cảnh quan đan xen với tuyến phố phía trước.
Dựa trên yếu tố đặc thù này cùng với hiện trạng của khung nhà, kiến trúc sư đã đưa ra giải pháp khai thác tính động của mặt tiền kiến trúc, tận dụng khoảng lùi để tạo điểm nhấn cho dãy mặt tiền và kích hoạt sự tương tác về không gian với luồng lưu thông trước mặt.

Hơn nữa, điểm tựa từ bên ngoài của tòa nhà, cảnh quan thúc đẩy các hoạt động của con người, từ đường phố đến vỉa hè, khu vườn, sân, sau đó là bên trong. Điều này giúp hướng đến mục tiêu đã đề ra trong kế hoạch hoạt động của quán cafe là thu hút khách ra vào sử dụng dịch vụ ở 2 tầng dưới công trình.

Điểm nhấn tại mặt tiền là cấu trúc vòm cong bằng gỗ tạo nên ranh giới thú vị giữa không gian bên trong và bên ngoài, nơi mà các không gian sân trong được định hình thành nhiều cụm, mang lại sự riêng tư và cởi mở về cảnh quan cho nhiều nhóm khách hàng khác nhau.

Ngoài ra, bên trong quán, hệ thống này cũng tạo hình vòm lăng kính thủy tinh độc đáo cho tầm nhìn ra cảnh quan bên ngoài. Mục đích thiết kế là khám phá những trải nghiệm mới giữa trong và lớp vỏ ngoài của công trình.

Nội thất quán cafe được định hướng theo không gian mở hoàn toàn, phân chia các khu vực tiếp khách bằng vách ngăn thấp, đảm bảo tầm nhìn trải rộng từ khu vực sâu bên trong ra cảnh quan phía trước.

Về vật liệu, công trình kết hợp với các vật liệu thô như bê tông, gạch, gốm, sắt corten. Hơn nữa, kiến trúc sư muốn làm nổi bật lợi thế của không gian nội thất, mang đến sự mộc mạc thân thiện và gần gũi với thiên nhiên, từ đó sẽ làm hài lòng thực khách.

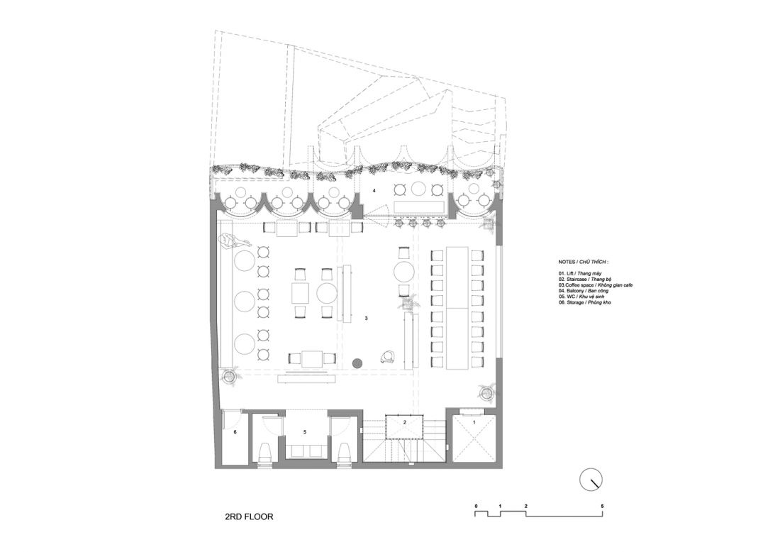
Bản vẽ mặt bằng cải tạo nhà thô đa năng thành quán cafe 2 tầng và cho thuê mặt bằng tại Hà Nội.

(Nguồn Comma Studio)
Chu Anh (Archdaily)