![]() |
| Nhà ống 4 tầng được xây dựng trên khu đất hướng Tây nằm trên trục đường lớn khu đô thị mới hình thành tại TP. Nha Trang. |
![]() |
| Bức xạ nhiệt mặt trời trực tiếp vào buổi trưa, tiếng ồn giao thông và khói bụi là tất cả những yếu tố được đề cập khi kiến trúc sư khảo sát hiện trạng lô đất. |
![]() |
| Với tổng diện tích 400m2, kiến trúc sư dành khoảng lớn diện tích làm giếng trời đón sáng tự nhiên, thông gió và trồng cây xanh. |
![]() |
| Đội ngũ thiết kế không gian bậc thang cùng hệ thống mái tạo nên những khu vườn tầng liên hoàn, có khoảng lùi sâu che chắn nắng nóng buổi trưa. |
![]() |
| Từ mỗi phòng, các thành viên gia đình đều có thể cảm nhận được ánh nắng ban mai chiếu qua những tán lá xanh bên khung cửa lớn. |
![]() |
| Nhìn từ trên cao xuống, ban công nhà ống tựa như những khu vườn nhiệt đới xanh tốt. |
![]() |
| Với hành lang và ban công, kiến trúc sư muốn tạo ra một số khoảng thông tầng giữa không gian chung và riêng. Đó là sự chuyển đổi ánh sáng, thiên nhiên, tầm nhìn cũng như kết nối con người trong các không gian vừa mở, vừa bao trùm, vừa riêng tư... |
![]() |
| Kiến trúc sư sử dụng chất liệu hiện đại kết hợp cùng bầu không khí truyền thống để dung hòa cuộc sống bên ngoài với đời sống tinh thần của mỗi người, đưa họ trở về với sự bình yên trong tâm hồn. |
![]() |
| Cây xanh hiện diện ở mọi ngóc ngách trong nhà ống 4 tầng, xua tan vẻ đơn điệu của bê tông hay những bức tường màu trắng. |
![]() |
| Góc thư giãn, đọc sách lý tưởng, nơi con người có thể giao hòa cùng thiên nhiên. |
![]() |
| Cây dây leo phủ xanh ban công nhà phố. |
![]() |
| Cây xanh trong nhà - ngoài vườn kết nối xuyên suốt với nhau. |
![]() |
| Mái kính giếng trời lấy sáng tự nhiên cho toàn bộ không gian bên trong nhà ống. |
![]() |
| Khung cảnh nhà ống 4 tầng về đêm. |
![]() |
| Mặt bằng tầng 1 |
![]() |
| Mặt bằng tầng 2 |
![]() |
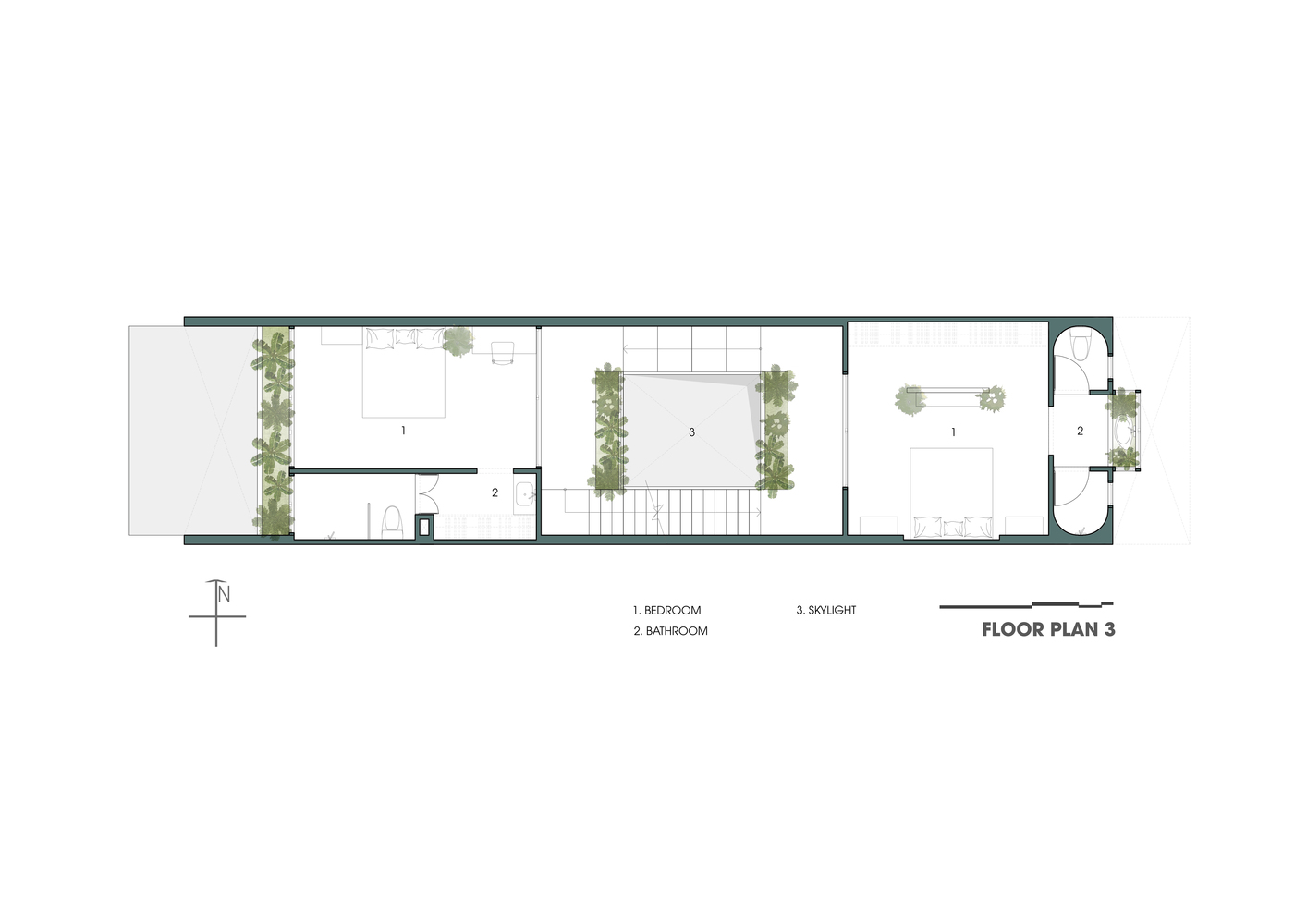
| Mặt bằng tầng 3 |
![]() |
| Mặt bằng tầng 4 |
![]() |
| Mặt bằng mái nhà ống |
![]() |
| Mặt cắt công trình |
![]() |
| Phối cảnh thông gió, lấy sáng tự nhiên cho nhà ống 4 tầng. |
Thông tin công trình
-
Tên: Gardening Terrace House
-
Diện tích: 400m2
-
Địa điểm xây dựng: TP. Nha Trang, tỉnh Khánh Hòa
-
Đơn vị thiết kế: Chon.a
-
Kiến trúc sư phụ trách: Quang Chơn
-
Cộng sự: Nguyễn Minh Phúc, Hồ Thị Thanh Thủy, Huỳnh Đạt Đạo, Dương Thị Tuyết
-
Năm hoàn thành: 2020
-
Ảnh: Quang Chơn
Lam Giang




















