
Dự án hơn 10,8ha, quy mô lớn so với khu vực Bắc đảo
Theo hồ sơ ĐTM lập lại, Khu du lịch sinh thái Việt Resort do Công ty TNHH MTV Ha Ta Việt An làm chủ đầu tư, có tổng diện tích 108.936m2 (khoảng 10,9ha) – một quy mô không nhỏ tại khu vực Bắc đảo Phú Quốc, nơi mật độ dự án du lịch chưa cao như khu Dương Đông hay Bãi Trường.

Dự án được quy hoạch với 454 phòng lưu trú, tổng lượng khách và nhân sự phục vụ khoảng 2.418 người, hướng tới mô hình khu du lịch sinh thái biển đảo. Với quy mô này, Việt Resort không phải dự án nhỏ lẻ mà thuộc nhóm tổ hợp lưu trú – dịch vụ có tác động đáng kể đến hạ tầng, môi trường và sinh thái khu vực nếu triển khai đồng loạt. Đây cũng là lý do dự án nằm trong diện phải kiểm soát môi trường chặt chẽ ngay từ khâu pháp lý.
Dự án có sử dụng đất rừng
Báo cáo đánh giá tác động môi trường của Khu du lịch sinh thái Việt Resort là việc dự án có sử dụng đất rừng. Đây chính là yếu tố khiến dự án bắt buộc phải lập lại ĐTM và chịu sự giám sát chặt chẽ hơn so với nhiều dự án du lịch khác trên đảo Phú Quốc.

Theo hồ sơ pháp lý kèm theo ĐTM, khu đất thực hiện dự án nằm tại khu phố Rạch Vẹm, đặc khu Phú Quốc, trong đó một phần diện tích liên quan đến đất lâm nghiệp, thuộc khu vực đã được kiểm kê hiện trạng rừng và đất rừng tại khoảnh 2, tiểu khu 57, vùng đệm Vườn quốc gia Phú Quốc. Đây là khu vực có vai trò quan trọng trong việc bảo vệ hệ sinh thái, đa dạng sinh học và cân bằng môi trường tự nhiên phía Bắc đảo.

Liên quan đến nghĩa vụ môi trường, chủ đầu tư đã thực hiện phương án trồng rừng thay thế khi chuyển mục đích sử dụng đất rừng và được UBND tỉnh Kiên Giang (nay là tỉnh An Giang) phê duyệt tại Quyết định số 1000/QĐ-UBND ngày 24/4/2018. Đây là điều kiện bắt buộc để dự án được tiếp tục các bước pháp lý tiếp theo.
Ngoài ra, chủ đầu tư cũng đã hoàn tất việc nộp tiền trồng rừng thay thế vào Quỹ Bảo vệ và Phát triển rừng theo thông báo của cơ quan chuyên môn, thể hiện trách nhiệm tài chính đối với phần diện tích rừng bị chuyển đổi mục đích sử dụng.
Nhận diện rõ tác động môi trường trong giai đoạn thi công
Báo cáo ĐTM dành dung lượng lớn để phân tích các tác động môi trường phát sinh trong giai đoạn san lấp và xây dựng.
Các nguồn tác động chính gồm:
- Bụi và khí thải từ hoạt động đào đắp, san nền và máy móc thi công;
- Nước thải sinh hoạt từ công nhân;
- Nước mưa chảy tràn cuốn theo bùn đất;
- Chất thải rắn sinh hoạt, sinh khối phát quang và chất thải nguy hại.
ĐTM đánh giá, các tác động này mang tính cục bộ, có thời hạn, tập trung trong phạm vi công trường và có thể kiểm soát thông qua các biện pháp kỹ thuật như che chắn, tưới nước giảm bụi, thu gom – xử lý chất thải theo quy trình.
Giai đoạn vận hành: giao thông và nước thải là hai áp lực chính
Khi dự án đi vào hoạt động, nguồn gây tác động lớn nhất được xác định là phương tiện giao thông ra vào khu du lịch và lượng nước thải sinh hoạt phát sinh từ du khách, nhân viên.
Đáng chú ý, kết quả tính toán cho thấy trong kịch bản vận hành tối đa, nồng độ NO₂ từ giao thông có thể vượt quy chuẩn, nhưng chỉ xảy ra trong điều kiện giả định 100% công suất hoạt động cùng lúc. Báo cáo lập luận rằng trên thực tế, lưu lượng xe sẽ phân bổ theo thời gian, trong khi không gian dự án rộng, có nhiều cây xanh và mặt nước, giúp giảm đáng kể mức độ ảnh hưởng đến môi trường xung quanh.
Hệ thống xử lý môi trường được đầu tư bài bản
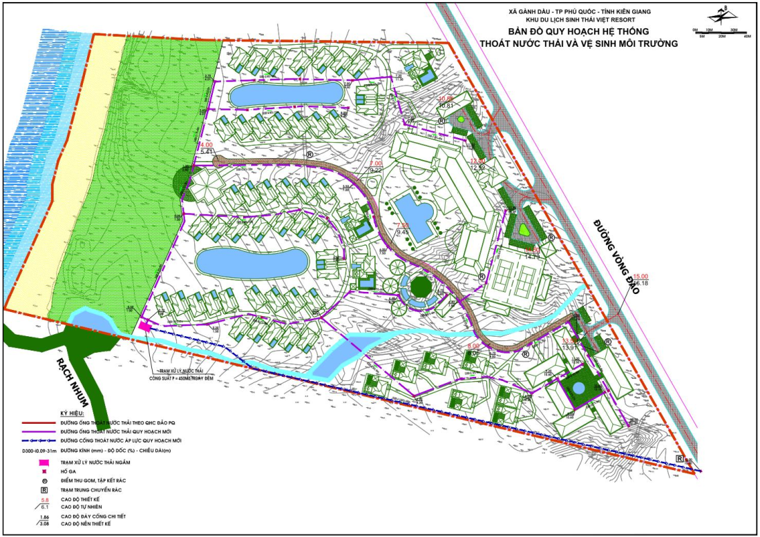
Một trong những nội dung trọng tâm của ĐTM là hệ thống thu gom và xử lý nước thải tập trung công suất 500m³/ngày đêm, bảo đảm nước thải sau xử lý đạt quy chuẩn trước khi xả ra môi trường. Ngoài ra, dự án bố trí khu vực lưu chứa chất thải rắn, chất thải nguy hại riêng biệt và tổ chức chương trình quan trắc, giám sát môi trường định kỳ trong suốt quá trình vận hành.
ĐTM cũng nêu rõ trách nhiệm của chủ đầu tư trong việc duy trì, vận hành đúng công suất các công trình bảo vệ môi trường, coi đây là điều kiện bắt buộc để dự án được phép hoạt động ổn định, lâu dài.

Phù hợp quy hoạch
Về mặt định hướng phát triển, dự án được đánh giá phù hợp với quy hoạch chung Phú Quốc đến năm 2040, Quy hoạch tỉnh và các chiến lược quốc gia về bảo vệ môi trường, đa dạng sinh học.
Đăng Thy