logo
ISSN 2734-9020

Giải pháp lấy sáng cho nhà ống nhỏ, hẹp, chỉ có một mặt thoáng

Thứ sáu, 24/12/2021 - 07:50

Kiến trúc lệch tầng kết hợp cùng "phễu" hứng sáng giữa nhà mang đến một không gian sống thoáng đãng, tràn ngập ánh sáng tự nhiên cho kiểu nhà ống điển hình ở đô thị Việt Nam với nhiều nhược điểm: nhỏ, hẹp, chỉ có một mặt thoáng.

Mianka House được xây dựng trên một lô đất đô thị rất điển hình với đặc trưng là hẹp, nhỏ và chỉ có một mặt thoáng. Ngôi nhà là nơi sinh sống của gia đình 6 người, với nhu cầu sử dụng lớn thì việc mở rộng không gian theo chiều dọc là điều tất yếu. Vấn đề quan trọng cần giải quyết là lấy ánh sáng cho ngôi nhà ống vừa cao vừa hẹp. Bên cạnh đó, sự tương tác với không gian đô thị cũng là vấn đề được ưu tiên.


Mianka được xây dựng trên khu đất 5x18m ở thành phố Đà Nẵng. Như bao ngôi nhà khá trong đô thị, Mianka chỉ có một mặt thoáng duy nhất ở phía trước nhà.


Bài toán đặt ra cho đội ngũ thiết kế là giải quyết vấn đề về không gian sử dụng cho gia đình đông người, lấy sáng tự nhiên cho khối ống cao và hẹp, nhưng không bỏ qua sự tương tác với bên ngoài.

Nhóm thiết kế cố gắng lấy ánh sáng từ phía trên thông qua giếng trời dạng phễu ở chính giữa nhà. Cầu thang được bố trí lệch trục nhằm điều tiết ánh sáng đi xuống không gian bên dưới, đồng thời giảm cảm giác về độ cao. Tương tự với phần mặt tiền, càng lên cao, các khối nhà càng lùi vào dần để giải phóng không gian cho đô thị bên ngoài. Gạch thô đỏ mang lại cảm giác gần gũi, thân thuộc và làm nổi bật sắc xanh cây lá.


Sơ đồ phát triển ý tưởng thiết kế kiến trúc nhà.


Giếng trời dạng phễu kết hợp cầu thang lệch trục ở giữa nhà.


Giải pháp này giúp lấy sáng cho không gian bên dưới và tạo cảm giác thông thoáng hơn.

Kiến trúc lệch tầng giải quyết được vấn để bí bách thường gặp của nhà ống. Các tấm sàn so le nhau tạo ra những ống hút gió xiên từ tầng này với tầng kia.


Cầu thang uốn cong mềm mại tựa như một tác phẩm điêu khắc ở chính giữa nhà.


Cảm giác về độ cao được giảm đi đáng kể, tầm nhìn giữa các tầng đa dạng, làm tăng khả năng quan sát và giúp không gian sinh động hơn hẳn.


Mặt tiền được giật cấp lùi dần về phía sau, nhường lại "khoảng thở" cho phố thị.


Bên cạnh các giải pháp về kiến trúc, nhóm thiết kế sử dụng hệ cửa kính để lấy sáng cho không gian tầng trệt.


Sự kết hợp giữa gạch trần, gỗ tự nhiên cùng bê tông mang đến cảm giác thô mộc mà vẫn ấm áp.


Gạch đỏ thô mộc làm nổi bật sắc xanh cây lá.


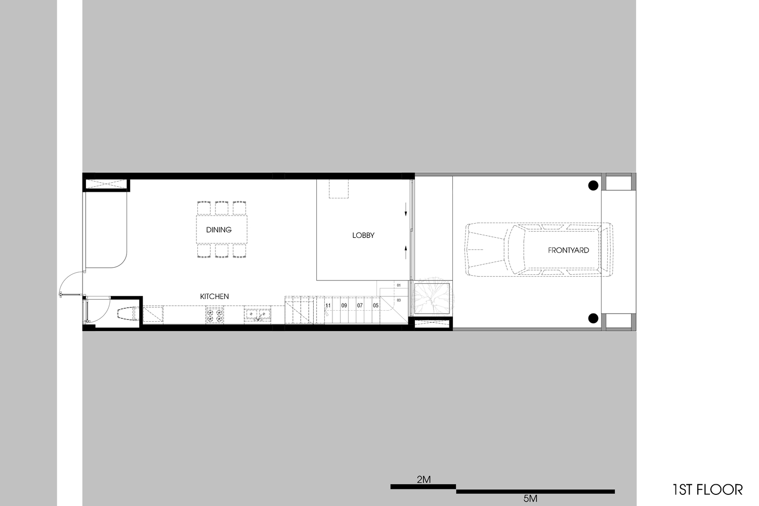
Mặt bằng tầng 1.


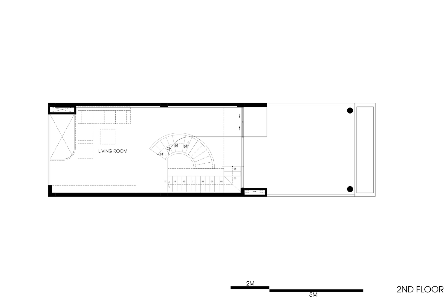
Mặt bằng tầng 2.


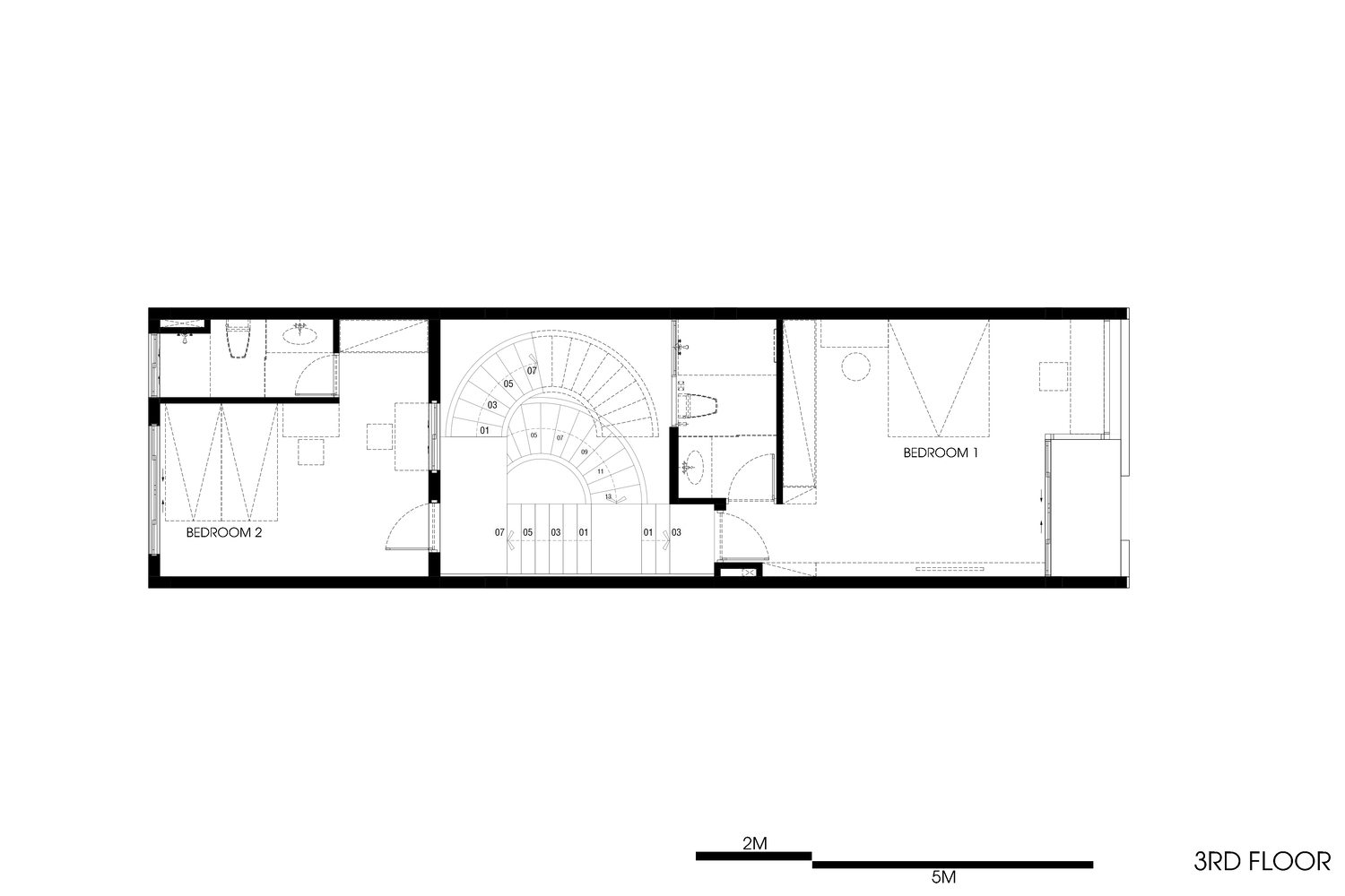
Mặt bằng tầng 3.


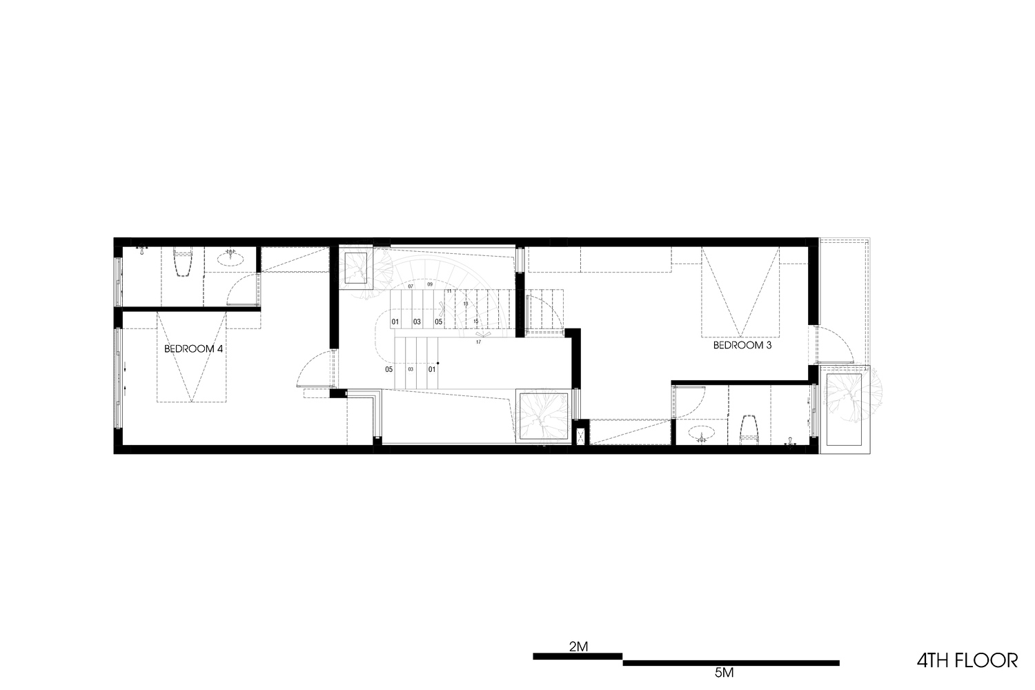
Mặt bằng tầng 4.


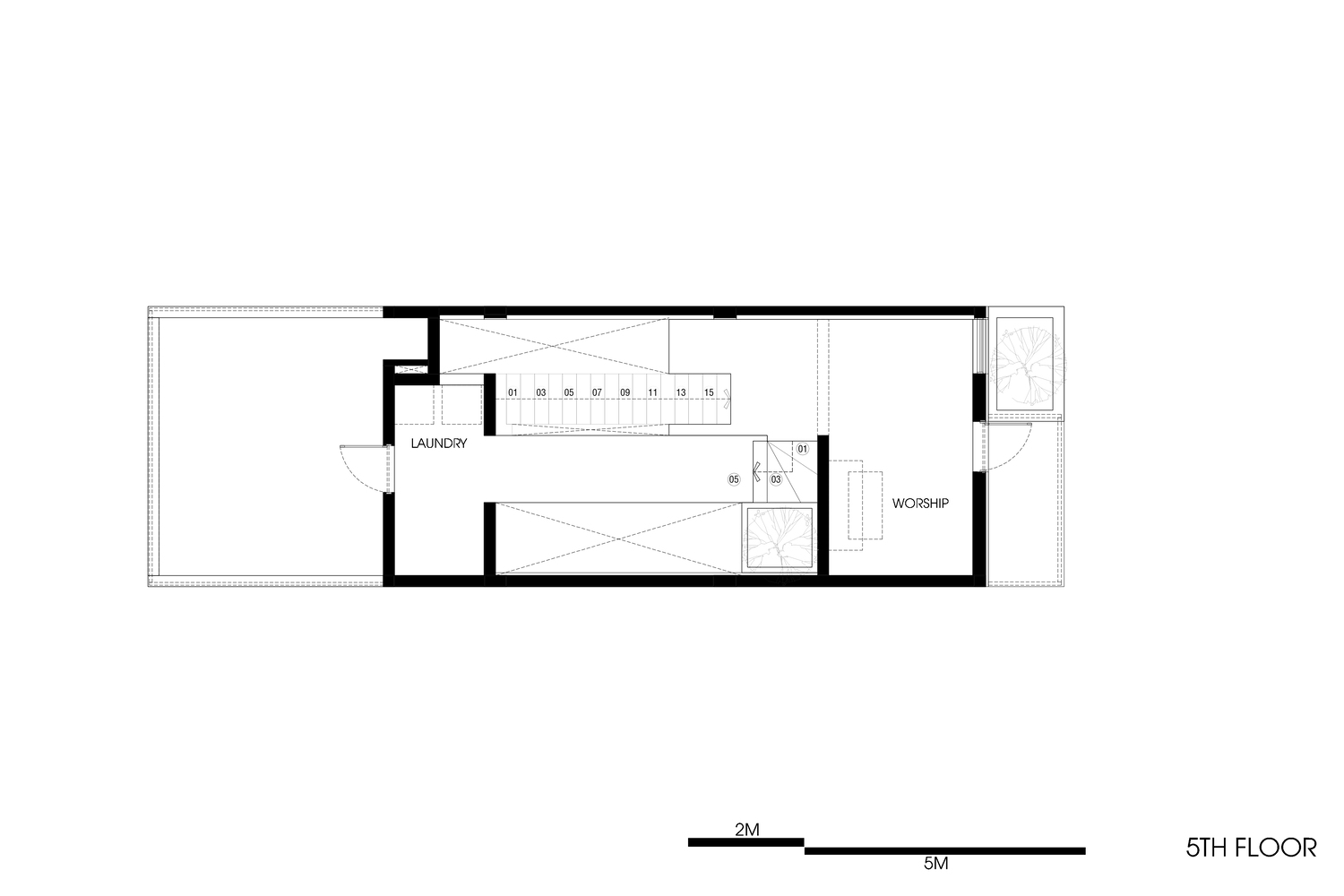
Mặt bằng tầng 5.


Mặt bằng mái.


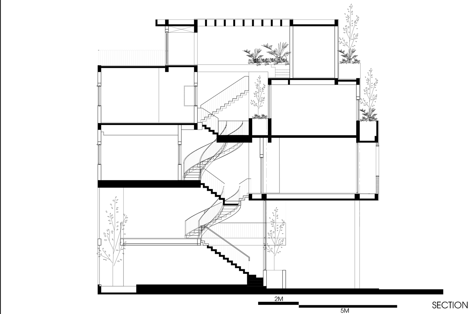
Mặt cắt nhà.

Thông tin dự án:

  • Đơn vị thiết kế: Hinzstudio
  • Nhóm thiết kế: Phan Văn Trần Tuấn, Hà Huy Thạch, Trịnh Quang Giáp
  • Diện tích: 400m2
  • Năm hoàn thành: 2019
  • Hình ảnh: Đức Ngô

>> Từ ngôi nhà toàn đường cong của chàng giám đốc sáng tạo đến kinh nghiệm thực tiễn cho người sắp xây nhà 

Khánh An