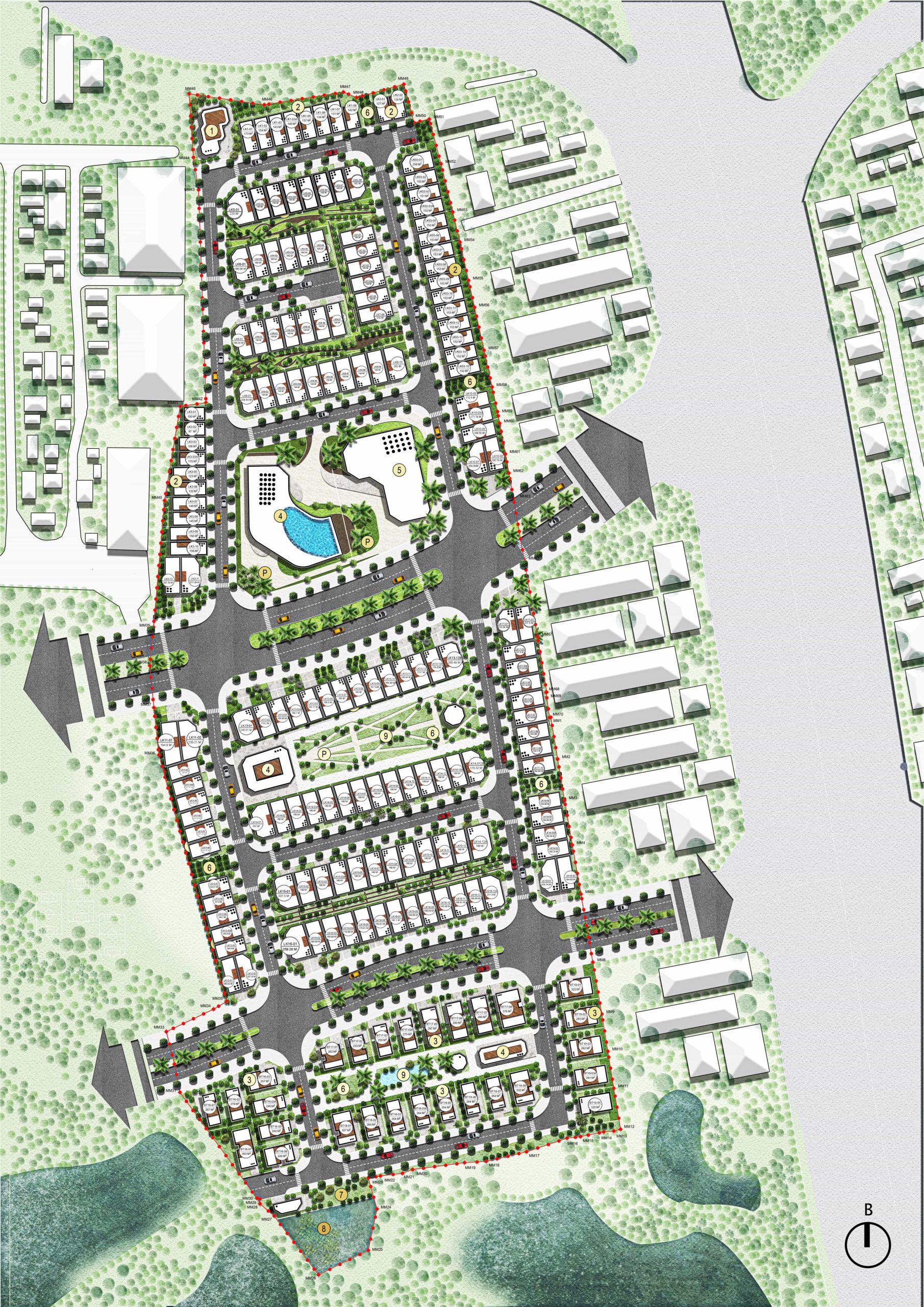
Quy mô dự án Hoa Lac Metro City Hà Nội

Phối cảnh dự án Hoa Lac Metro City
|
Tổng diện tích |
8,3ha |
|
Số lượng sản phẩm |
1 tòa chung cư 1 tòa thương mại dịch vụ 192 căn liền kề, biệt thự |
Quy mô dự án Hoa Lac Metro City

Mặt bằng dự án Hoa Lac Metro City
Sản phẩm dự án Hoa Lac Metro City Hà Nội
Biệt thự
Số lượng: 28 căn
Diện tích đất: 232-392m2


Phối cảnh biệt thự tại dự án
Nhà liền kề
Số lượng: 73 căn
Diện tích đất: 96-265m2
Kết cấu: 5 tầng


Thiết kế nhà liền kề tham khảo
Shophouse
Số lượng: 91 căn
Diện tích đất: 159-265m2
Kết cấu: 5 tầng

Thiết kế shophouse
Tiện ích dự án Hoa Lac Metro City Hà Nội
- Trường học
- Vườn dạo bộ
- Club house
- Bãi đỗ xe trên cao
- Bể bơi vô cực
- Phòng tập gym
- Tổ hợp sân thể thao đa năng
- Công viên xanh…


Phối cảnh tiện ích tại dự án
Pháp lý dự án Hoa Lac Metro City Hà Nội
Dự án có tên pháp lý là Dự án đầu tư xây dựng Khu nhà ở Hòa Lạc được chấp thuận chủ trương đầu tư tại Quyết định số 1647/QĐ-UBND ngày 09/7/2008 của UBND huyện Thạch Thất.
Tiến độ dự án Hoa Lac Metro City Hà Nội
Cập nhật tháng 3/2026, dự án đang được thi công hạ tầng, điện nước, san nền.
Giá bán tham khảo: 88-155 triệu đồng/m2


Tiến độ dự án cập nhật tháng 3/2026
Thông tin chủ đầu tư dự án Hoa Lac Metro City Hà Nội
Chủ đầu tư dự án là Công ty Cổ phần Kinh doanh Phát triển Nhà và Đô thị Thành Tín hoạt động từ năm 2007, địa chỉ trụ sở là số 271 Tôn Đức Thắng, phường Văn Miếu - Quốc Tử Giám, TP.Hà Nội. Người đại diện pháp luật là ông Trần Tấn Hồng Cương. Doanh nghiệp hoạt động chính trong lĩnh vực xây dựng nhà không để ở.
Đơn vị phát triển dự án là KITA Group.
Thông tin nhanh dự án Hoa Lac Metro City Hà Nội
|
Dự án: Hoa Lac Metro City |
Tổng diện tích: 8,3ha |
|
Vị trí: Khu công nghệ cao Hòa Lạc, xã Yên Xuân, TP.Hà Nội |
Tổng vốn đầu tư: |
|
Loại hình: Biệt thự, nhà liền kề, căn hộ chung cư |
Năm khởi công: |
|
Chủ đầu tư: Công ty Cổ phần Kinh doanh Phát triển Nhà và Đô thị Thành Tín |
Năm hoàn thành: |
Cẩm Tú