Quy mô dự án Hoàng Huy Green River Hải Phòng

Phối cảnh dự án Hoàng Huy Green River
| Diện tích | 32,5ha |
| Số lượng sản phẩm | 780 căn liền kề, shophouse 30 căn biệt thự 441 nhà ở xã ở hội |
Quy mô dự án Hoàng Huy Green River

Mặt bằng dự án Hoàng Huy Green River
Sản phẩm dự án Hoàng Huy Green River Hải Phòng
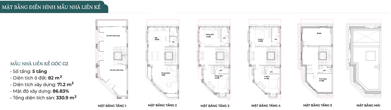
Nhà liền kề
Diện tích: 71,2-81,5m2
Số lượng: 780 căn



Thiết kế nhà liền kề tại dự án
Biệt thự
Diện tích: 127,2m2
Số lượng: 30 căn


Thiết kế biệt thự tại dự án
Nhà ở xã hội
Số lượng: 441 căn
Tiện ích dự án Hoàng Huy Green River Hải Phòng
- Bar - cafe Võ Trọng Nghĩa
- Hầm rượu vang
- Bể bơi sinh học Biodesign
- Nhà hàng Alacarte
- Cafe lưu niệm, bể bơi
- Khu vui chơi trẻ em
- Nhà phụ trợ BOH
- Bể bơi sinh thái - Nhà hàng
- Trưng bày nghệ thuật
- Vườn BBQ - team building
- Vườn dạo, thể thao ngoài trời...

Phối cảnh tiện ích tại dự án
Pháp lý dự án Hoàng Huy Green River Hải Phòng
Dự án Hoàng Huy Green River có tên pháp lý là Khu đô thị mới Hoàng Huy Green River tại xã Hoa Động, huyện Thủy Nguyên.
UBND TP.Hải Phòng đã giao đất cho chủ đầu tư thực hiện dự án, cụ thể:
- Đợt 1 với diện tích 442.480,9m2 theo Quyết định 4534/QĐ-UBND ngày 29/12/2022
- Đợt 2 với diện tích 143.360,78m2 tại Quyết định 1991/QĐ-UBND ngày 12/7/2023
- Điều chỉnh tại Quyết định 2325/QĐ-UBND ngày 3/8/2023
Ngày 14/7/2023, UBND huyện Thủy Nguyên ban hành Quyết định số 5906/QĐ-UBND về việc phê duyệt đồ án điều chỉnh quy hoạch chi tiết tỷ lệ 1/500.
Ngày 26/7/2023, UBND TP.Hải Phòng ban hành Quyết định số 2157/QĐ-UBND về việc điều chỉnh chủ trương đầu tư đồng thời chấp thuận nhà đầu tư.
Ngày 26/11/2024, Sở Xây dựng TP.Hải Phòng cấp giấy phép xây dựng số 109/GPXD cho chủ đầu tư được phép xây dựng dự án.
Ngày 21/3/2025, Sở Xây dựng Hải Phòng ra Quyết định 1401/SXD-QLN, thông báo 282 căn nhà ở thương mại đủ điều kiện kinh doanh (đợt 1).
Ngày 5/6/2025 tiếp tục ban hành Quyết định 3503/SXD-QLN cho 322 căn (đợt 2). Đến ngày 27/6/2025, với Quyết định 4331/SXD-QLN, thêm 206 căn được phép đưa vào kinh doanh (đợt 3).
Ngày 15/9/2025, Sở Xây dựng Hải Phòng thông báo về việc 441 căn hộ nhà ở xã hội hình thành trong tương lai đủ điều kiện được đưa vào kinh doanh theo quy định.
Tiến độ dự án Hoàng Huy Green River Hải Phòng
Cập nhật tháng 9/2025, phần lớn nhà liền kề, biệt thự cơ bản hoàn thành phần mái; tuyến phố đi bộ đã trải nhựa, trồng cây, lắp đèn...
Giá bán tham khảo:
- Nhà liền kề: 80-90 triệu đồng/m2
- Biệt thự: 75-85 triệu đồng/m2
- Nhà ở xã hội: 13-16 triệu đồng/m2


Tiến độ dự án cập nhật tháng 9/2025
Thông tin chủ đầu tư dự án Hoàng Huy Green River Hải Phòng
Chủ đầu tư dự án Hoàng Huy Green River là Công ty Cổ phần Đầu tư Dịch vụ Tài chính Hoàng Huy thành lập năm 1995, địa chỉ trụ sở là số 116 đường Nguyễn Đức Cảnh, phường An Biên, TP.Hải Phòng.
Doanh nghiệp hoạt động chính trong lĩnh vực kinh doanh ô tô tải và kinh doanh bất động sản. Một số dự án tiêu biểu như Hoàng Huy Green River, Hoàng Huy New City, Hoàng Huy Mall...
Thông tin nhanh dự án Hoàng Huy Green River Hải Phòng
| Dự án: Hoàng Huy Green River | Tổng diện tích: 32,5ha |
| Vị trí: Phường Thủy Nguyên, TP.Hải Phòng | Tổng vốn đầu tư: |
| Loại hình: Khu đô thị | Năm khởi công: |
| Chủ đầu tư: Công ty Cổ phần Đầu tư Dịch vụ Tài chính Hoàng Huy | Năm hoàn thành: |
Cẩm Tú