logo
ISSN 2734-9020

Khám phá khu nhà nghỉ dưỡng lọt thỏm giữa rừng rậm nhiệt đới

Thứ hai, 31/08/2020 - 10:37

Tọa lạc trên đảo Phú Quốc, tỉnh Kiên Giang, khu nhà nghỉ dưỡng mang tên Mango Bay Resort Spa đưa du khách trở về với những gì gần gũi, thân thuộc và tự nhiên nhất. Công trình như lọt thỏm giữa khu rừng nhiệt đới xanh tốt.

Mango Bay resort là một địa điểm du lịch nổi tiếng trên đảo Phú Quốc. Khu nghỉ dưỡng thu hút khách du lịch bởi thiết kế thân thiện với môi trường.
Mango Bay resort là một địa điểm du lịch nổi tiếng trên đảo Phú Quốc. Khu nhà nghỉ dưỡng thu hút khách du lịch bởi thiết kế thân thiện với môi trường.
hồ bơi khu nghỉ dưỡng nhìn từ trên cao
Công trình gồm 44 phòng và bungalow được xây dựng trên khu đất hơn 10 ha. Sau một thời gian dài đi vào hoạt động, khu du lịch cần được cải tạo lại.
ngôi nhà nghĩ dưỡng giữa rừng cây với ánh đèn vàng ấm áp
Chủ đầu tư yêu cầu thiết kế khu spa theo phong cách giản dị, mộc mạc và ấm cúng.
sân trong nhà nghỉ dưỡng với hồ bơi trung tâm
Sau nhiều lần phân tích về điều kiện khí hậu, địa điểm, vị trí của spa đã được quyết định là nằm trên một con dốc nhẹ hướng ra biển, ẩn sau những ngôi nhà gỗ và được bao quanh bởi khu rừng rậm xanh tốt.
cận cảnh hồ nước sân trong khu nhà nghỉ dưỡng
Một con đường nhỏ bằng đất liên kết spa mới với spa cũ, nơi đang dần trở thành không gian để tập yoga và thái cực quyền.
hình ảnh phòng nghỉ bên trong khu nhà nghỉ dưỡng
Spa mới được thiết kế với 4 tòa nhà hình chữ nhật, liên kết với nhau bằng các lối đi có mái che, xung quanh là cây cối xanh tốt. 
không gian bình yên bên trong khu nhà nghỉ dưỡng ở Phú Quốc
Hai tòa nhà chính có khu vực tiếp tân và thư giãn, trong khi hai tòa phụ chỉ gồm các phòng trị liệu. Mỗi phòng trị liệu đều có sân hiên riêng ở phía sau, kết nối với một khu vườn nhỏ.
phòng nghỉ dưỡng với tường đất nung thân thiện
Đặc điểm nổi bật của khu nhà nghỉ dưỡng là sử dụng các bức tường đất. Đây cũng là sự kế thừa của các bungalow đã xây dựng từ trước.
Những bức tường đất kết hợp với mái mở rộng và cửa ra vào, cửa sổ bằng gỗ mang đến sự thoáng mát, thư thái cho không gian bên trong nhà nghỉ dưỡng.
Những bức tường đất kết hợp với mái mở rộng và cửa ra vào, cửa sổ bằng gỗ mang đến sự thoáng mát, thư thái cho không gian bên trong nhà nghỉ dưỡng.
cận cảnh cửa ra vào một ngôi nhà nghỉ dưỡng ở Phú Quốc
Cửa ra vào và cửa sổ bằng gỗ với hệ thống quay linh hoạt giúp kiểm soát lượng ánh sáng tự nhiên vào không gian bên trong, tùy thuộc vào thời điểm cũng như tâm trạng của khách.
Sân vườn được trồng các loại cây, hoa có nguồn gốc địa phương dễ trồng, dễ chăm sóc.
Sân vườn được trồng các loại cây, hoa có nguồn gốc địa phương dễ trồng, dễ chăm sóc.
hồ nước sinh động ở sân trong nhà nghỉ dưỡng
Ngoại lệ duy nhất là những cây được trồng ở khu vực hồ nước, chúng tượng trưng cho một khởi đầu mới và kỳ vọng hòa bình.
khung cảnh nhà nghỉ dưỡng khi lên đèn
Trong quá trình xây dựng, đội ngũ thiết kế và thợ thi công cố gắng hạn chế tối đa tác động tới khu rừng xung quanh khu nhà nghỉ dưỡng.
góc ngồi thư giãn, đọc sách trong khu nghỉ dưỡng ở Phú Quốc
 Ngay sau khi các tòa nhà thành hình, người làm vườn đã bắt đầu trồng những cây mới để thay thế những cây đã chặt bỏ. 
cận cảnh cây trồng trong khu nghỉ dưỡng
Những cây này trước đây đã được trồng trong vườn ươm của chính resort. Vì vậy, chỉ sau một chút thời gian, khu nhà nghỉ dưỡng như được bao quanh bởi rừng rậm nhiệt đới.
nội thất bên trong nhà nghỉ dưỡng
Nội thất có thiết kế đơn giản với nguyên vật liệu tự nhiên gần gũi, thân thiện.
Hệ cửa gỗ xoay linh hoạt giúp điều tiết ánh sáng tự nhiên vào trong nhà.
Hệ cửa gỗ xoay linh hoạt giúp điều tiết ánh sáng tự nhiên vào trong nhà.
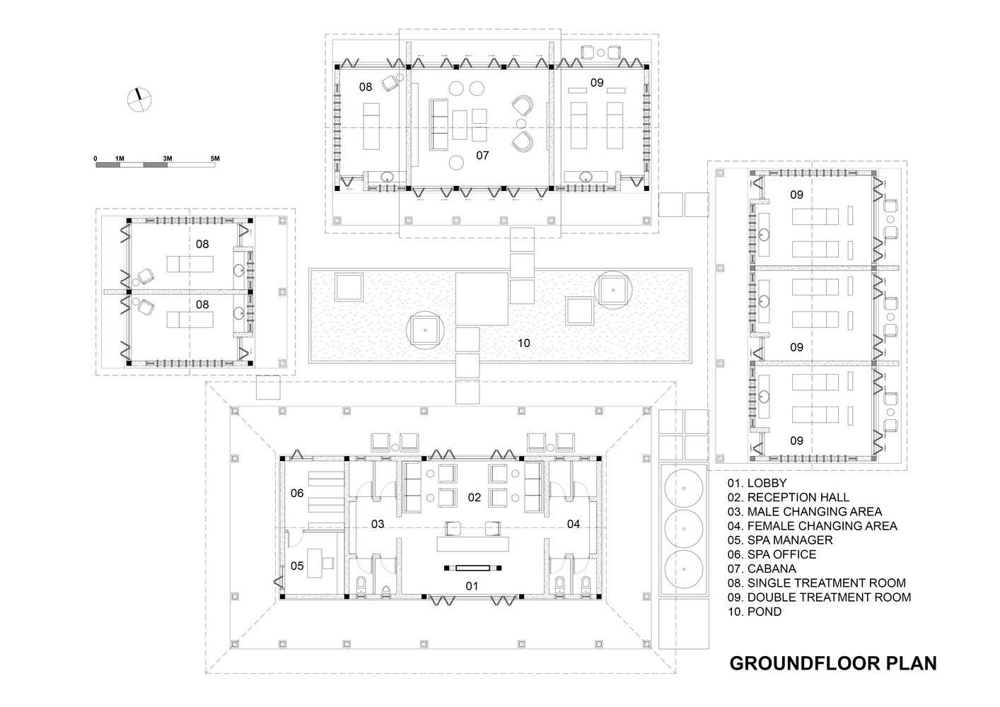
Mặt bằng tổng thể khu nhà nghỉ dưỡng
Mặt bằng tổng thể khu nhà nghỉ dưỡng
Mặt bằng mái nhà nghỉ dưỡng
Mặt bằng mái nhà nghỉ dưỡng

 

Thông tin công trình:

  • Tên: Mango Bay Resort Spa
  • Địa điểm: Phú Quốc, Kiên Giang
  • Diện tích: 320m2
  • Đơn vị thiết kế: P.I Architects
  • Năm hoàn thành: 2019
  • Ảnh: Quang Trần

Lam Giang

>> Nhà nghỉ dưỡng nhìn ra đồng lúa thơm mùi sữa non

>> Nhà nghỉ dưỡng "kiêu sa" như một đóa Quỳnh ở Đà Lạt

>> Độc đáo nhà nghỉ dưỡng hướng sông ở Khánh Hòa