Ranh giới và kết nối liên vùng của KCN Tam Thăng mở rộng tại Đà Nẵng
Khu vực nghiên cứu dự án thuộc địa bàn phường Bàn Thạch và xã Thăng Trường, TP.Đà Nẵng (xã Bình Nam, huyện Thăng Bình và xã Tam Thăng, TP.Tam Kỳ, tỉnh Quảng Nam cũ), cụ thể như sau:
- Phía Đông Bắc giáp đường liên khu công nghiệp
- Phía Tây Bắc giáp đường ĐH3 và đất hiện trạng
- Phía Tây Nam giáp khu dân cư hiện trạng
- Phía Đông Nam giáp KCN Tam Thăng và KCN Tam Thăng 2
Kết nối vùng:
- Cách sân bay Đà Nẵng, cảng Cát Tiên Sa khoảng 65km
- Cách TP.Hội An cũ khoảng 25km
- Cách TP.Tam Kỳ cũ khoảng 6km
- Cách sân bay Chu Lai khoảng 30km
Quy mô dự án KCN Tam Thăng mở rộng tại Đà Nẵng

Vị trí lập quy hoạch KCN Tam Thăng mở rộng
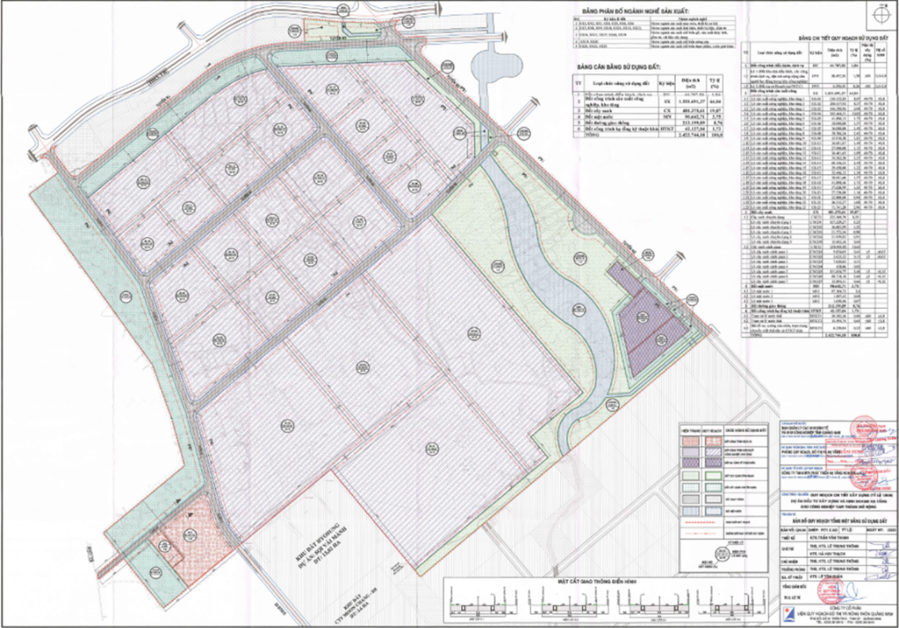
| Tổng diện tích | 2.422.744,18m2 |
| Cơ cấu sử dụng đất | - Đất công trình điều hành, dịch vụ: 44.707,56m2 - Đất công trình sản xuất công nghiệp, kho tàng: 1.551.691,37m2 - Đất cây xanh: 481.375,61m2 - Đất mặt nước: 90.642,71m2 - Đất đường giao thông: 212.199,89m2 - Đất công trình hạ tầng kỹ thuật khác: 42.127,04m2 |
| Ngành nghề | - Ngành sản xuất máy móc, thiết bị, cơ khí - Nhóm ngành linh kiện, thiết bị điện, điện tử - Nhóm các dự án chế biến gỗ, sản xuất thủy tinh, gốm sứ, vật liệu xây dựng - Nhóm dự án chế biến nông sản - Nhóm dự án chế biến thực phẩm, nước giải khát |
Quy mô dự án KCN Tam Thăng mở rộng

Bản quy hoạch sử dụng đất KCN Tam Thăng mở rộng
Hệ thống cơ sở hạ tầng KCN Tam Thăng mở rộng tại Đà Nẵng
Hệ thống cấp điện
- Tổng nhu cầu dùng điện: Khoảng 13,2 MVA.
- Nguồn được lấy từ trạm 110/22kV-40MVA Tam Thăng hiện hữu (dự kiến nâng công suất (40 63)MVA tùy theo nhu cầu phát triển). Ngoại trừ ô đất công nghiệp có ký hiệu SX1 đến SX4 được cấp riêng.
Hệ thống cấp nước
- Tổng lưu lượng tính toán toàn khu: Khoảng 6.790m3/ngày đêm.
- Nguồn nước: Từ nhà máy nước BOO Phú Ninh (công suất giai đoạn 1 6 50.000m3/ngày đêm), thông qua đường ống cấp nước D600 hiện hữu chạy dọc tuyến đường trục chính Khu công nghiệp Tam Thăng (ĐT615 mới).
Hệ thống xử lý nước thải
- Dự kiến lượng nước thải phát sinh toàn khu: Khoảng 2.356 m3/ngày đêm.
Giai đoạn đầu, toàn bộ nước thải phát sinh của khu quy hoạch sau khi xử lý sơ bộ được thu gom bằng các tuyến đường ống HDPE đấu nối vào Nhà máy xử lý nước thải tập trung của Khu công nghiệp Tam Thăng hiện hữu công suất 28.000 m3/ngày đêm.
Khi lượng nước thải phát sinh của khu quy hoạch vượt quá khả năng xử lý của Nhà máy xử lý nước thải tập trung 28.000m3/ngày đêm hiện hữu: Đầu tư mới trạm xử lý nước thải tập trung, công suất khoảng 3.000m3/ngày đêm.
Hệ thống thông tin liên lạc
- Nguồn cấp từ mạng viễn thông Quốc gia thông qua các tuyến cáp quang tính cho khu vực, tổng đài bưu điện và mạng lưới truyền dẫn.
- Từ tủ phối quang khu vực nhà cung cấp viễn thông sẽ cung cấp tuyến cáp quang đến các tủ phối quang trong khu quy hoạch, từ đây các tuyến cáp quang sẽ được cung cấp đến các khu vực chức năng theo yêu cầu.
Pháp lý dự án KCN Tam Thăng mở rộng tại Đà Nẵng
Ngày 24/1/2022, Thủ tướng Chính phủ ban hành Quyết định số 128/QĐ-TTg về việc quyết định Chủ trương đầu tư dự án đầu tư xây dựng và kinh doanh kết cấu hạ tầng khu công nghiệp Tam Thăng mở rộng.
Ngày 26/10/2023, Ban Quản lý KKT và KCN tỉnh Quảng Nam ban hành Quyết định số 190/QĐ-KKTCN về việc quyết định phê duyệt và ban hành Quy định quản lý theo đồ án Quy hoạch chi tiết xây dựng tỷ lệ 1/500 dự án.
Tiến độ dự án KCN Tam Thăng mở rộng tại Đà Nẵng
Đến tháng 7/2025, tổng diện tích đã phê duyệt phương án bồi thường, giải phóng mặt bằng là 45,41ha, hoàn thành bàn giao được 44,49ha, chưa bàn giao 0,42ha.
Giá thuê dự kiến KCN Tam Thăng mở rộng tại Đà Nẵng
- Giá cho thuê lại: 0,6 USD/m2/năm (tương đương 30 USD/m2/50 năm) (chưa bao gồm VAT)
- Phí dịch vụ quản lý và bảo trì cơ sở hạ tầng: 0,25 USD/m2/năm (chưa bao gồm VAT)
- Giá điện: Theo bảng giá của điện lực tại thời điểm sử dụng
- Giá nước: Theo bảng thông báo đơn giá nước sạch tại thời điểm sử dụng
- Chi phí điện thoại, internet và các dịch vụ khác: Theo quy định của đơn vị cung cấp tại thời điểm sử dụng.
Lưu ý: Các mức phí trên chỉ mang tính tham khảo và có thể thay đổi theo chính sách của chủ đầu tư và thời điểm cụ thể.
Thông tin chủ đầu tư dự án KCN Tam Thăng mở rộng tại Đà Nẵng
Chủ đầu tư dự án KCN Tam Thăng mở rộng là Công ty TNHH MTV Phát triển hạ tầng Khu công nghiệp Chu Lai hoạt động từ năm 2012, địa chỉ trụ sở là lô số 5, đường số 1, KCN Bắc Chu Lai, xã Núi Thành, TP.Đà Nẵng. Người đại diện pháp luật là ông Vũ Hồng Nhân.
Doanh nghiệp hoạt động chính trong lĩnh vực hoạt động tư vấn quản lý, cụ thể là lập quy hoạch, lập dự án đầu tư, lập hồ sơ hoàn công, lập hồ sơ mời thầu, xét thầu, tư vấn đấu thầu, thẩm tra hồ sơ thiết kế dự toán; tư vấn về môi trường.
Thông tin nhanh dự án KCN Tam Thăng mở rộng tại Đà Nẵng
| Dự án: KCN Tam Thăng mở rộng | Ngày khởi công: |
| Vị trí: Phường Bàn Thạch và xã Thăng Trường, TP.Đà Nẵng | Thời hạn vận hành: 2022-2072 |
| Tổng diện tích: 2.422.744,18m2 | Tổng vốn đầu tư: 895,5 tỷ đồng |
| Chủ đầu tư: Công ty TNHH MTV Phát triển hạ tầng Khu công nghiệp Chu Lai | Tỷ lệ lấp đầy: |
Cẩm Tú