logo
ISSN 2734-9020

Khu công nghiệp Văn Giang - giai đoạn 1 Hưng Yên

Thứ hai, 23/03/2026 - 12:07

KCN Văn Giang tọa lạc tại xã Nghĩa Trụ, tỉnh Hưng Yên. Dự án tiếp giáp đường Lê Văn Lương và Đường vành đài 4 đang thi công xây dựng, thuận lợi cho công tác đi lại, lưu thông hàng hóa và kết nối với các KCN, CCN trong và ngoài khu vực.

 

Ranh giới và kết nối liên vùng của KCN Văn Giang - giai đoạn 1 Hưng Yên

Phạm vi lập quy hoạch KCN Lưu Bình thuộc địa giới hành chính xã Nghĩa Trụ, tỉnh Hưng Yên. Cụ thể:

- Phía Bắc giáp đường quy hoạch lộ giới 51m và dân cư hiện trạng xã Nghĩa Trụ

- Phía Nam giáp kênh Tam Bá Hiển

- Phía Đông giáp ranh giới xã Hoàn Long và sông Bắc Hưng Hải

- Phía Tây giáp đất nông nghiệp xã Nghĩa Trụ

Kết nối liên vùng

- Cách sân bay Nội Bài: 33km

- Cách trung tâm TP.Hà Nội: khoảng 18km

- Cách cảng Hải Phòng: hơn 100km

Vị trí thực hiện KCN Văn Giang - giai đoạn 1

Quy mô KCN Văn Giang - giai đoạn 1 Hưng Yên

Tổng diện tích

272,76ha

- Giai đoạn 1: 203,55ha

- Giai đoạn 2: 69,21ha

Quy hoạch sử dụng đất (giai đoạn 1)

- Đất sản xuất công nghiệp, kho bãi: 142,68ha

- Đất khu dịch vụ: 11,82ha

- Đất công trình hạ tầng kỹ thuật: 4,29ha

- Đất cây xanh: 18,93ha

- Đất giao thông: 19,77ha

Tổng vốn đầu tư

3.320 tỷ đồng

Quy mô KCN Văn Giang - giai đoạn 1 Hưng Yên

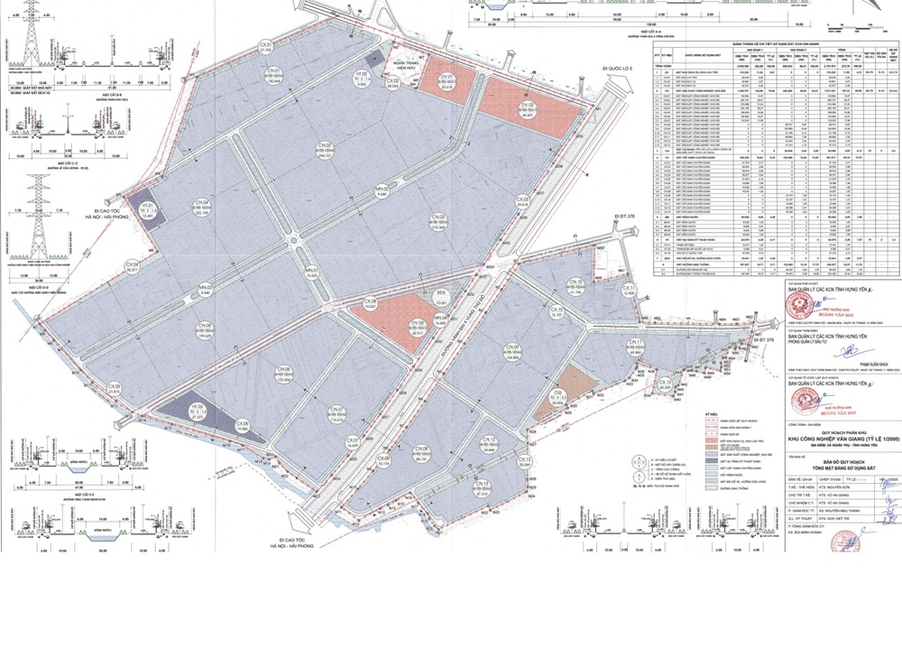
Bản đồ quy hoạch sử dụng đất KCN Văn Giang - giai đoạn 1

Định hướng ngành sản xuất

Ngành khuyến khích

- Công nghiệp cơ điện tử, chíp bán dẫn, chế tạo phần mềm, sản phẩm công nghệ số, trí tuệ nhân tạo, sản xuất robot

- Điện tử, máy tính và sản phẩm quang học

- Sản xuất sản phẩm từ cao su và

Plastic

- Sản xuất thuốc, hóa dược và dược

liệu

- Sản xuất thiết bị, dụng cụ y tế, nha

khoa, chỉnh hình và phục hồi chức

năng

- Vận tải, kho bãi…

Hệ thống cơ sở hạ tầng KCN Văn Giang - giai đoạn 1 Hưng Yên

Hệ thống cấp điện

Nguồn cấp điện ngắn hạn dự kiến lấy từ các đường dây trung thế hiện trạng gần KCN. Bổ sung nâng công suất thêm trạm biến áp 110kV Vĩnh Khúc lên thêm 2x63MVA thành 4x63MVA để bảo đảm cấp điện cho KCN.

Hệ thống xử lý nước thải

Đầu tư xây dựng và vận hành 01 trạm xử lý nước thải tập trung công suất

9.000 m³/ngày với công nghệ xử lý hóa lý và sinh học, công đoạn xử lý sinh học được thành 03 mô đun (công suất 3.000 m³/ngày đêm/mô đun) để xử lý toàn bộ nước thải phát sinh tại KCN, đảm bảo nước thải sau xử lý thải ra kênh Tam Bá Hiển.

Hệ thống cấp nước 

Nguồn nước cấp cho KCN Văn Giang - Giai đoạn 1 là Nhà máy nước sạch Mỹ Văn do Công ty Cổ phần đầu tư và xây dựng Việt Thanh quản lý.

Hệ thống hạ tầng viễn thông

- Để đáp ứng nhu cầu cung cấp dịch vụ viễn thông cho toàn bộ KCN, bố trí một tổng đài với dung lượng đầu số thuê bao theo bảng tính nhu cầu đặt tại khu trung tâm điều hành.
- Toàn bộ khu sẽ được lắp đặt tổng đài riêng hoặc các nhà cung cấp mạng cam kết đáp ứng yêu cầu thông tin liên lạc của khu.

Sơ đồ không gian cảnh quan KCN Văn Giang - giai đoạn 1

Pháp lý KCN Văn Giang - giai đoạn 1 Hưng Yên

Ngày 05/12/2025, Ban Quản lý các KCN tỉnh Hưng Yên ra Quyết định số 199/QĐ-BQL về việc phê duyệt Đồ án Quy hoạch phân khu xây dựng tỷ lệ 1/2000 KCN Văn Giang.

Ngày 05/12//2025, UBND tỉnh Hưng Yên ban hành Quyết định số 55/QĐ-UBND quyết định chấp thuận chủ trương đầu tư đồng thời chấp thuận nhà đầu tư KCN Văn Giang là Công ty TNHH Đầu tư Khu công nghiệp Lưỡng Dụng Văn Giang.

Ngày 18/12/2025, Ban Quản lý các KCN tỉnh Hưng Yên ra Quyết định số 216/QĐ-BQL về việc phê duyệt điều chỉnh quy hoạch phân khu xây dựng tỷ lệ 1/2000 KCN Văn Giang.

Tiến độ KCN Văn Giang - giai đoạn 1 Hưng Yên

Dự kiến dự án sẽ được thực hiện từ quý II/2026 đến quý I/2029.

Thông tin chủ đầu tư KCN Văn Giang - giai đoạn 1 Hưng Yên

Công ty TNHH Đầu tư Khu công nghiệp Lưỡng Dụng Văn Giang được thành lập ngày 06/10/2025, có trụ sở đặt tại Biệt thự số 33, dãy San hô 13, Khu đô thị Vinhomes Oceanpark 2, xã Nghĩa Trụ, tỉnh Hưng Yên.

Người đại diện pháp luật tại thời điểm tháng 3/2026 là ông Nguyễn Vũ Hoàng An.

Doanh nghiệp hoạt động chính trong ngành Kinh doanh bất động sản; Dịch vụ quản lý bất động sản; Quản lý vận hành nhà chung cư.

Thông tin nhanh KCN Văn Giang - giai đoạn 1 Hưng Yên

Dự án: KCN Văn Giang - giai đoạn 1 Hưng Yên

Ngày khởi công:

Vị trí: xã Nghĩa Trụ, tỉnh Hưng Yên

Thời gian vận hành: 2025 - 2075

Tổng diện tích: 203,55ha

Tổng vốn đầu tư: 3.320 tỷ đồng

Chủ đầu tư: Công ty TNHH Đầu tư Khu công nghiệp Lưỡng Dụng Văn Giang

Tỷ lệ lấp đầy:

 

Trần Thùy