Ranh giới và kết nối liên vùng của KCN Vinhomes Vũng Áng Hà Tĩnh
Khu vực nghiên cứu dự án thuộc địa bàn khu công nghiệp trung tâm lô CN4, CN5 khu kinh tế Vũng Áng, phường Vũng Áng, tỉnh Hà Tĩnh (phường Kỳ Thịnh, Kỳ Long và xã Kỳ Lợi, thị xã Kỳ Anh cũ), cụ thể như sau:
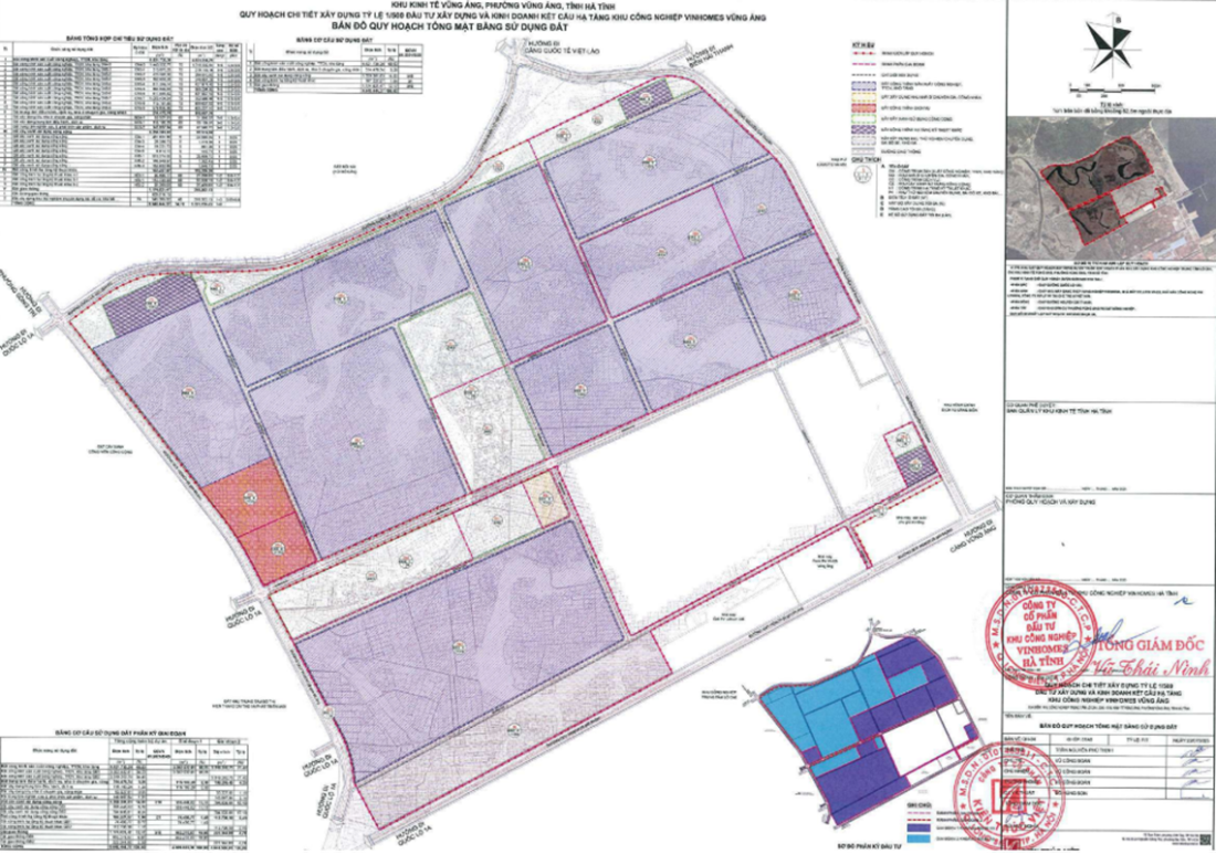
- Phía Bắc giáp đường quốc lộ 12C
- Phía Nam giáp Công ty TNHH Gang thép Hưng nghiệp Formosa Hà Tĩnh
- Phía Đông giáp tuyến đường Nguyễn Chí Thanh
- Phía Tây giáp tổ dân phố Đông Phong, Bắc Phong và đất nông nghiệp (phường Kỳ Thịnh)
Kết nối vùng:
- Khu công nghiệp Vinhome Vũng Áng có vị trí liền kề tuyến đường CT Bắc - Nam, trạm đường sắt Kỳ Anh, tuyến đường sắt từ Thái Lào đến Kỳ Anh chỉ mất 1,5 giờ
- Cách cảng Vũng Áng khoảng 15km
- Cách sân bay quốc tế Vinh khoảng 120km
- Cách sân bay Đồng Hới khoảng 70km
Quy mô dự án KCN Vinhomes Vũng Áng Hà Tĩnh

Phối cảnh KCN Vinhomes Vũng Áng
| Tổng diện tích | 964,84ha |
| Ngành nghề | - Sản xuất linh kiện, thiết bị điện, điện tử - Sản xuất da và các sản phẩm có liên quan - Sản xuất trang phục, may mặc - Sản xuất tấm pin năng lượng mặt trời - Sản xuất thuốc, hóa dược, dược liệu - Sản xuất sản phẩm từ cao su và plastic - Sản xuất hóa chất và sản phẩm hóa chất - Sản xuất kim loại, sản phẩm từ kim loại đúc sẵn - Sản xuất, chế biến thực phẩm và đồ uống - Chế biến gỗ và sản xuất sản phẩm từ gỗ... |
Quy mô KCN Vinhomes Vũng Áng

Bảng quy hoạch sử dụng đất KCN Vinhomes Vũng Áng
Hệ thống cơ sở hạ tầng dự án KCN Vinhomes Vũng Áng Hà Tĩnh
Hệ thống cấp điện
- Nguồn điện cấp cho khu vực lấy từ lưới điện 220kV của Nhà máy nhiệt điện Vũng Áng 1, 2, 3.
- Xây dựng mới trạm biến áp với tổng công suất dự kiến khoảng 495MVA cấp cho toàn bộ khu vực quy hoạch
- Đường dây trung áp 22kV đấu nối từ trạm biến áp cấp cho các phụ tải sử dụng đường dây cáp ngầm, bố trí đi trong hào cáp.
Hệ thống cấp nước
- Nguồn nước được lấy từ nguồn nước của Nhà máy nước Vũng Áng 1, 2, Nhà máy nước Hoành Sơn.
- Mạng lưới đường ống cấp nước sử dụng ống nhựa HDPE, có đường kính D125–D250. Trên tuyến bố trí các trụ cứu hoả phục vụ phòng cháy chữa cháy.
Hệ thống xử lý nước thải
- Hệ thống thoát nước thải: mạng lưới thoát nước thải từ các công trình xử lý sơ bộ, sau đó thu gom theo hệ thống cống riêng biệt đến các trạm xử lý tập trung.
- Đường ống sử dụng loại ống D250–D800 bằng bê tông cốt thép và ống nhựa HDPE.
Hệ thống viễn thông
- Nguồn cấp bởi các nhà mạng viễn thông trên địa bàn Khu kinh tế Vũng Áng.
- Mạng lưới cáp và tủ cáp được lấy từ nguồn cáp xây dựng tuyến cáp trục mới cấp đến cho khu vực quy hoạch
- Tùy theo nhu cầu sử dụng của các khu chức năng sẽ sử dụng các loại cáp có dung lượng khác nhau
- Tất cả các tuyến cáp chính bố trí đi ngầm dưới vỉa hè.
Pháp lý dự án KCN Vinhomes Vũng Áng Hà Tĩnh
Ngày 13/7/2024, Thủ tướng Chính Phủ ban hành Quyết định số 639/QĐ-UBND về việc quyết định Chủ trương đầu tư dự án đầu tư xây dựng và kinh doanh kết cấu hạ tầng khu công nghiệp Vinhomes Vũng Áng.
Dự án được điều chỉnh chấp thuận chủ trương đầu tư đồng thời chấp thuận nhà đầu tư tại Quyết định số 13/QĐ-UBND ngày 27/3/2025 của UBND tỉnh Hà Tĩnh.
Tiến độ dự án KCN Vinhomes Vũng Áng Hà Tĩnh
Dự án đầu tư xây dựng và kinh doanh kết cấu hạ tầng khu công nghiệp Vinhomes Vũng Áng chính thức khởi công ngày 19/8/2025.
Chi phí thuê dự kiến tại KCN Vinhomes Vũng Áng Hà Tĩnh
- Giá thuê đất: 65 - 70 USD/m2/chu kỳ thuê
- Thuế đất: Theo quy định của Nhà nước
- Phí quản lý: 0.7 USD/m2/chu kỳ thuê
- Phí xử lý nước thải: 0.6 USD/m3
- Đơn giá nước sạch: Đang cập nhật
- Giá điện: Theo đơn giá của EVN
Thông tin chủ đầu tư dự án KCN Vinhomes Vũng Áng Hà Tĩnh
Chủ đầu tư dự án KCN Vinhomes Vũng Áng là Công ty Cổ phần Đầu tư Khu công nghiệp Vinhomes Hà Tĩnh hoạt động từ năm 2024, địa chỉ trụ sở là số 7 đường Bằng Lăng 1, Khu đô thị Vinhomes Riverside, phường Phúc Lợi, TP.Hà Nội. Người đại diện pháp luật là ông Vũ Thái Ninh. Doanh nghiệp hoạt động chính trong lĩnh vực kinh doanh bất động sản.
Thông tin nhanh dự án KCN Vinhomes Vũng Áng Hà Tĩnh
| Dự án: KCN Vinhomes Vũng Áng | Ngày khởi công: 19/8/2025 |
| Vị trí: Khu công nghiệp trung tâm lô CN4, CN5 khu kinh tế Vũng Áng, phường Vũng Áng, tỉnh Hà Tĩnh | Thời hạn vận hành: 2024 - 2094 |
| Tổng diện tích: 964,84ha | Tổng vốn đầu tư: 13.276 tỷ đồng |
| Chủ đầu tư: Công ty Cổ phần Đầu tư Khu công nghiệp Vinhomes Hà Tĩnh | Tỷ lệ lấp đầy: |
Cẩm Tú