Quy mô dự án Lumi Prestige - Lumi Hanoi

Phối cảnh phân khu Lumi Prestige
| Quy mô xây dựng | 2 tòa cao 30 tầng |
| Số lượng sản phẩm | 878 căn hộ |
Quy mô phân khu Lumi Prestige

Vị trí Lumi Prestige trong dự án Lumi Hanoi

Mặt bằng tầng điển hình phân khu Lumi Prestige
Sản phẩm dự án Lumi Prestige - Lumi Hanoi
Căn hộ 1 phòng ngủ
Diện tích: 42,2m2

Thiết kế căn hộ 1 phòng ngủ
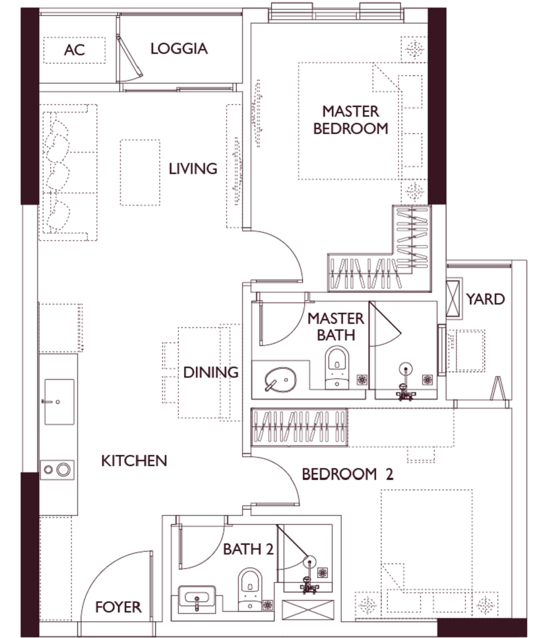
Căn hộ 2 phòng ngủ
Diện tích: 53,8-71,3m2


Thiết kế căn hộ 2 phòng ngủ
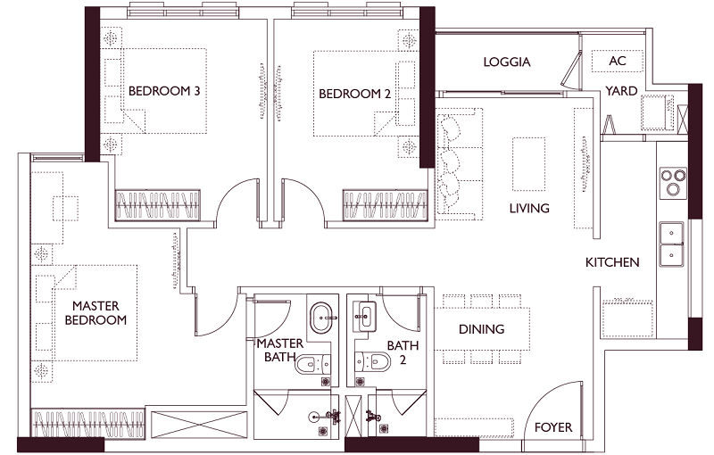
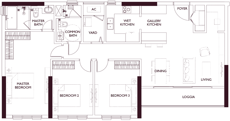
Căn hộ 3 phòng ngủ
Diện tích: 85,8-117,1m2


Thiết kế căn hộ 3 phòng ngủ
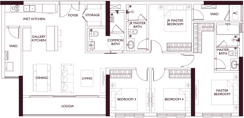
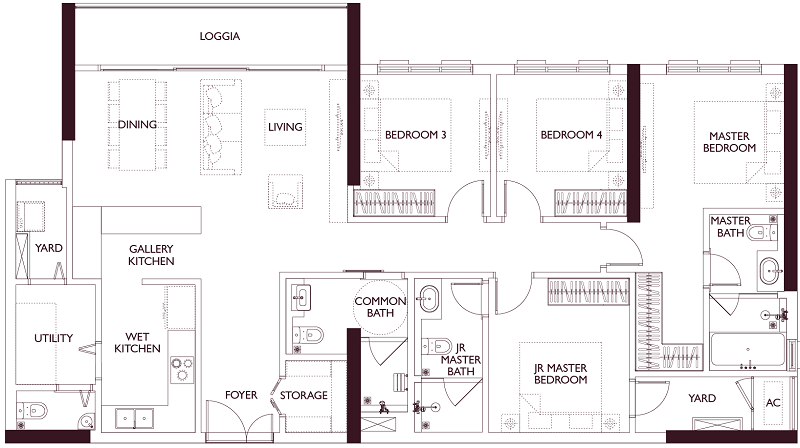
Căn hộ 4 phòng ngủ
Diện tích: 127,5-136m2


Thiết kế căn hộ 4 phòng ngủ
Tiện ích dự án Lumi Prestige - Lumi Hanoi
- Đài phun nước Ánh Sáng Phương Bắc
- Chòi thư giãn Aurora
- Bể bơi ánh sao
- Chòi BBQ Aurora
- Góc học tập và thư viện
- Phòng gym, phòng pilates, phòng yoga
- Bể sục Jacuzzi riêng tư
- Sảnh tiệc và rượu vang
- Khu phố thương mại Stella
- Chòi nghỉ ngân hà
- Hồ Lân Tinh
- Chòi hoàng hôn
- Nông trại chân mây
- Sân tập đa năng
- Sân tennis…


Phối cảnh tiện ích tại dự án
Pháp lý dự án Lumi Prestige - Lumi Hanoi
Lumi Prestige là giai đoạn 2 của dự án Lumi Hanoi.
Được biết, Lumi Hanoi là phân khu thuộc Vinhomes Smart City được Công ty TNHH Thương mại và Phát triển Kinh doanh Ánh Sao nhận chuyển nhượng từ Công ty Đầu tư Xây dựng Thái Sơn, một thành viên thuộc Vingroup vào cuối năm 2021.
Tiến độ dự án Lumi Prestige - Lumi Hanoi
Cập nhật tháng 9/2025, Lumi Prestige đã xây tới tầng 26 và 27, đồng thời đang tiến hành lắp kính.
Giá bán tham khảo: 71-79,8 triệu đồng/m2

Tiến độ dự án cập nhật tháng 9/2025
Thông tin chủ đầu tư dự án Lumi Prestige - Lumi Hanoi
Chủ đầu tư dự án Lumi Prestige là Công ty TNHH Thương mại và Phát triển Kinh doanh Ánh Sao (thuộc tập đoàn CapitaLand) hoạt động từ năm 2015, địa chỉ trụ sở là phường Xuân Phương, TP.Hà Nội. Doanh nghiệp hoạt động chính trong lĩnh vực kinh doanh bất động sản.
Thông tin nhanh dự án Lumi Prestige - Lumi Hanoi
| Dự án: Lumi Prestige | Tổng diện tích: |
| Vị trí: Đại lộ Thăng Long, phường Tây Mỗ, TP.Hà Nội | Tổng vốn đầu tư: |
| Loại hình: Căn hộ | Năm khởi công: |
| Chủ đầu tư: Công ty TNHH Thương mại và Phát triển Kinh doanh Ánh Sao (thuộc tập đoàn CapitaLand) | Năm hoàn thành: |
Cẩm Tú