logo
ISSN 2734-9020

LUMIERE Essence Peak: Dự án căn hộ tại Hà Nội

Thứ tư, 11/02/2026 - 13:02

LUMIÈRE Essence Peak là dự ăn căn hộ nằm trong khu đô thị Vinhomes Global Gate, xã Đông Anh (trước là xã Đông Hội, huyện Đông Anh), TP.Hà Nội. Từ vị trí dự án, cư dân dễ dàng kết nối với các tiện ích khu vực nhưu công viên Wonderland, Trung tâm Hội nghị Quốc tế, Trung tâm Triển lãm Quốc gia, Megamall, sân bay Nội Bài…

Quy mô dự án LUMIÈRE Essence Peak Hà Nội

Phối cảnh dự án LUMIÈRE Essence Peak

Tổng diện tích

15.130m2

Quy mô xây dựng

02 tòa tháp cao 45 tầng 3 tầng hầm

Số lượng sản phẩm

1.640 căn hộ

Quy mô dự án LUMIÈRE Essence Peak

Mặt bằng dự án LUMIÈRE Essence Peak

Mặt bằng tầng điển hình tại dự án

Sản phẩm dự án LUMIÈRE Essence Peak Hà Nội

Căn hộ 1 phòng ngủ

Diện tích: 36,3-45,3m2

Thiết kế căn hộ 1 phòng ngủ

Căn hộ 2 phòng ngủ

Diện tích: 57,1-65,3m2

Thiết kế căn hộ 2 phòng ngủ

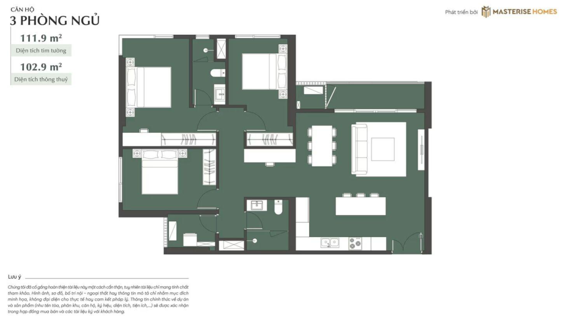
Căn hộ 3 phòng ngủ

Diện tích: 78,5-102,9m2

 

Thiết kế căn hộ 3 phòng ngủ

Tiện ích dự án LUMIÈRE Essence Peak Hà Nội

Tiện ích trong nhà:

- Sảnh đón tiếp, sảnh thang máy, sảnh tiếp khách

- Phòng thư tín, phòng giải trí, phòng thưởng trà

- Khu vui chơi trẻ em

- Phòng họp, phòng trưng bày nghệ thuật

- Phòng yoga, gym

- Thư viện

- Bể bơi bốn mùa, bể bơi trẻ em

- Phòng xông hơi (nam, nữ)

Tiện ích ngoài trời:

- Sảnh cư dân

- Sảnh Private

- Cổng chào biểu tượng

- Tiểu cảnh nghệ thuật

- Khu ăn uống, cafe ngoài trời

- Khu làm việc

- Công viên, chòi ngắm cảnh

- Khu vui chơi trẻ em…

Phối cảnh tiện ích tại dự án

Pháp lý dự án LUMIÈRE Essence Peak Hà Nội

LUMIÈRE Essence Peak nằm trong khu đô thị Vinhomes Global Gate, tên pháp lý là Trung tâm hội chợ triển lãm Quốc Gia và Khu đô thị mới tại các xã Xuân Canh, Đông Hội, Mai Lâm, huyện Đông Anh.

Ngày 19/6/2020, UBND TP.Hà Nội ban hành Quyết định số 2588/QĐ-UBND về việc phê duyệt Quy hoạch chi tiết, tỷ lệ 1/500 Trung tâm Hội chợ Triển lãm Quốc gia và Khu đô thị mới tại cácxã Xuân Canh, Đông Hội, Mai Lâm, huyện Đông Anh.

Tiến độ dự án LUMIÈRE Essence Peak Hà Nội

Cập nhật tháng 1/2026, dự án đang triển khai xây dựng tầng hầm.

Giá bán tham khảo: 180-200 triệu đồng/m2 (tòa Peak 1)

Tiến độ dự án cập nhật tháng 1/2026

Thông tin chủ đầu tư dự án LUMIÈRE Essence Peak Hà Nội

Masterise Homes là đơn vị phát triển dự án.

Doanh nghiệp này hoạt động từ ngày 5/11/2019, trụ sở đặt tại VP 07.01, lầu 7, số 275 đường Võ Nguyên Giáp, khu phố 4, phường An Khánh, TP.HCM. Người đại diện pháp luật là ông Hồ Anh Minh.

Doanh nghiệp hoạt động chủ yếu trong lĩnh vực phát triển bất động sản cao cấp, bao gồm: xây dựng nhà để ở, tư vấn, môi giới, đấu giá bất động sản, tư vấn quản lý, quảng cáo, nghiên cứu thị trường và thăm dò dư luận, tổ chức giới thiệu và xúc tiến thương mại, cùng các hoạt động dịch vụ hỗ trợ kinh doanh khác.

Một số dự án tiêu biểu như Masteri Trinity Square, Masteri Centre Point, Masteri Lakeside…

Thông tin nhanh dự án LUMIÈRE Essence Peak Hà Nội

Dự án: LUMIÈRE Essence Peak

Tổng diện tích: 15.130m2

Vị trí: Khu đô thị Vinhomes Global Gate, xã Đông Anh, TP.Hà Nội

Tổng vốn đầu tư: 

Loại hình: Căn hộ

Năm khởi công:

Đơn vị phát triển: Masterise Homes

Năm hoàn thành: 

Cẩm Tú