Gia đình tôi có 4 thành viên (vợ chồng tôi , 1 cậu con trai và 1 cô con gái) nên cần các không gian như sau: Sân trước để xe, phòng khách kết hợp phòng thờ, phòng bếp + ăn, 3 phòng ngủ, 2 phòng vệ sinh, khu giặt và phơi đồ.
Mong kiến trúc sư tư vấn giúp phương án mặt bằng công năng hợp phong thủy, đáp ứng nhu cầu sử dụng của gia đình tôi.
Xin chân thành cảm ơn!
Kiến trúc sư tư vấn thiết kế nhà 1 tầng mái Thái:
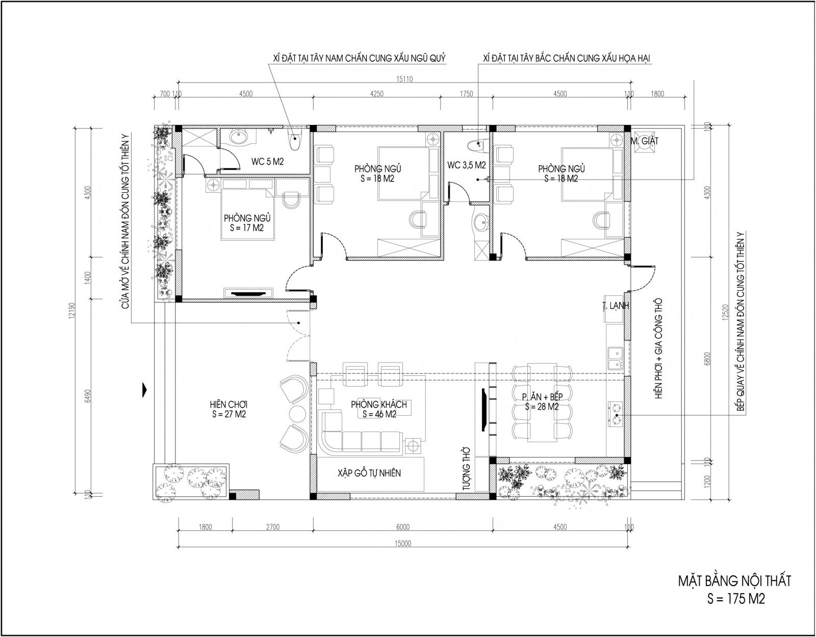
Theo thông tin mà độc giả chia sẻ, kiến trúc sư đưa ra phương án mặt bằng thiết kế nhà vườn 1 tầng mái Thái như sau:
![]() |
| Mặt bằng thiết kế nhà vườn 1 tầng mái Thái |
Ngôi nhà được xây lùi vào trong, dành một khoảng phía trước làm sân để xe và diện tích còn lại làm sân vườn tạo nhiều khoảng xanh cho không gian sống.
Từ bậc tam cấp đi lên là sảnh chính - khoảng đệm để bước vào không gian chính, đây cũng là chỗ vui chơi hóng gió cho các thành viên trong gia đình. Ngay sau cửa chính là phòng khách kết hợp phòng thờ rộng rãi được thiết kế với đầy đủ tiện nghi hiện đại. Khu vực thờ cúng được bố trí trang nghiêm, hướng bàn thờ nhìn về hướng tốt.
Phòng bếp kết hợp phòng ăn liên thông với phòng khách tạo cảm giác không gian rộng thoáng hơn. Ở khu bếp, kiến trúc sư thiết kế mảng tường kính lớn để đón sáng tự nhiên, đồng thời lấy tầm nhìn đẹp.
Phòng ngủ master có vệ sinh khép kín được thiết kế và bài trí nội thất sang trọng, trang bị đầy đủ tiện nghi hiện đại. Trong khi đó, phòng ngủ của cô con gái và cậu con trai sở hữu tầm nhìn thoáng đẹp ra vườn cây xanh mát.
Phòng vệ sinh chung bên ngoài phục vụ nhu cầu sinh hoạt hàng ngày. Phía cuối nhà là khu giặt giũ kết hợp phơi phóng cho các thành viên gia đình.
![]() |
| Phối cảnh 3D mẫu nhà vườn 1 tầng mái Thái |
Không gian nội thất tham khảo:
![]() |
| Không gian phòng khách rộng rãi, được thiết kế với tông màu trắng sáng chủ đạo. Thảm trải, rèm cửa, bộ ghế màu xanh xám tạo điểm nhấn màu sắc sinh động. |
![]() |
| Phòng bếp kết hợp phòng ăn ngập tràn ánh sáng, sử dụng nội thất tông màu nâu trầm sang trọng, tạo cảm giác ấm cúng. |
![]() |
| Tranh tường họa tiết mặt trời tỏa nắng tạo điểm nhấn ấn tượng cho phòng ngủ master của vợ chồng gia chủ. Căn phòng luôn thoáng đãng nhờ cửa kính trượt mở ra ban công riêng. |
![]() |
| Phòng ngủ của cô con gái được trang trí với những gam màu nữ tính nhẹ nhàng. Căn phòng đủ rộng để bố trí bàn học, bàn trang điểm và cả ghế treo thư giãn. |
![]() |
| Gam màu vàng từ giấy dán tường, thảm trải, rèm cửa... mang đến cái nhìn mới lạ cho không gian phòng ngủ của cậu con trai. |
![]() |
| Phòng thờ thoáng đãng, trang nghiêm và ấm áp với nội thất gỗ chạm khắc tinh tế. |
![]() |
| Phòng vệ sinh trong nhà vườn 1 tầng mái Thái được thiết kế theo phong cách hiện đại với buồng tắm kính tiện dụng. |
Đơn vị tư vấn: Công ty Cổ phần XD & TM Kiến tạo Việt
Lam Giang
>> Mẫu thiết kế nhà vườn 1 tầng 3 phòng ngủ trên diện tích 150m2
>> Tư vấn thiết kế nhà vườn 1 tầng mái Thái trên diện tích 100m2








