Nhà tôi theo đạo nên không cần làm phòng thờ.
Xin chân thành cảm ơn!
Minh (Sơn Tây, Hà Nội)
Kiến trúc sư tư vấn thiết kế biệt thự 2 tầng hiện đại
Xin chào anh Minh, đội ngũ kiến trúc sư chúng tôi rất hân hạnh khi nhận được câu hỏi tư vấn mà gia đình anh gửi tới. Sau khi xem xét các nhu cầu về sinh hoạt cho gia đình 5 thành viên 3 thế hệ, cùng với diện tích đất hiện có, chúng tôi tư vấn phương án thiết kế nhà biệt thự 2 tầng hiện đại 8,5x12m như sau để anh tham khảo.
Mẫu nhà đẹp này sẽ được thiết kế trên một mặt bằng hình chữ nhật, phía trước có tiền sảnh rộng, mái hiên và ban công tầng 2. Lối đi sẽ được chia làm 2 hướng cửa đi tại 2 mặt trước và mặt bên trái ngôi nhà (nhìn từ trong nhà ra). Qua đó tạo ra các khoảng không gian thoáng để lấy sáng tự nhiên và lưu thông không khí. Các ban công ở 2 mặt tiền của ngôi nhà mang đến không gian thư giãn ngoài trời thoáng đãng.
Biệt thự 2 tầng được thiết kế với kiểu mái thái dốc 4 hướng giật cấp chạy theo các khối nhà như trong phối cảnh. Phần mái này được sử dụng kiểu gạch ngói dán màu xanh dương trẻ trung hiện đại, phù hợp với xu hướng hiện nay.
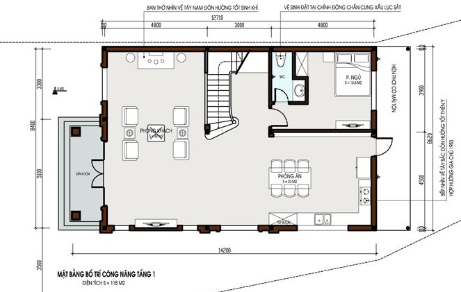
Công năng trong nhà được thiết kế với vị trí cầu thang ở khoảng giữa, sát tường nửa bên phải nhà (từ trong nhà nhìn ra) để tạo ra các khoảng không gian sinh hoạt có diện tích hợp lý theo từng chức năng sử dụng.
![]() |
| Phối cảnh biệt thự 2 tầng hiện đại |
![]() |
| Mặt bằng công năng tầng 1 biệt thự |
- Tầng 1: Thiết kế tầng trệt biệt thự gồm các không gian sinh hoạt chung của cả gia đình như: Phòng khách kết hợp phòng thờ, phòng bếp ăn, phòng tắm + vệ sinh chung. Gia đình có người cao tuổi nên kiến trúc sư bố trí thêm 1 phòng ngủ dành cho bà nội tại tầng 1 biệt thự.
![]() |
| Mặt bằng công năng tầng 2 biệt thự |
- Tầng 2: Mặt sàn tầng 2 biệt thự bố trí không gian ngủ nghỉ cho các thành viên gia đình. Bao gồm 1 phòng ngủ master có vệ sinh khép kín dành cho bố mẹ và 2 phòng ngủ nhỏ của các cô con gái. Phòng vệ sinh chung bên ngoài phục vụ nhu cầu sinh hoạt trên tầng 2.
Không gian nội thất tham khảo:
![]() |
| Mẫu thiết kế phòng khách biệt thự sang trọng, sử dụng nội thất gỗ chủ đạo mang lại cảm giác ấm áp, thân thuộc. |
![]() |
| Không gian bếp kết hợp phòng ăn rộng rãi, thoáng sáng, có cửa mở sân nhỏ sau nhà. |
![]() |
| Phòng ngủ master rộng thoáng, bài trí nội thất sang trọng với điểm nhấn là gương trang điểm gắn đèn LED và tủ quần áo cửa gương. |
![]() |
| Không gian riêng dành cho con gái với ánh sáng tự nhiên ngập tràn. |
![]() |
| Phòng ngủ cho bà với thiết kế nội thất hiện đại tối giản, sử dụng chất liệu gỗ tự nhiên tông màu trầm tạo cảm giác thư giãn. |
![]() |
| Mẫu phòng tắm ấn tượng cho biệt thự 2 tầng với gạch thẻ ốp tường màu đen cá tính, tạo chiều sâu cho không gian. |
Đơn vị tư vấn: Công ty Cổ phần XD & TM Kiến tạo Việt
KTS: Trần Quốc Tuấn
>> Mẫu biệt thự 2 tầng mái Thái hiện đại, sang trọng và hợp phong thủy
>> Mẫu thiết kế biệt thự 2 tầng mái Thái có phòng làm việc tại nhà








