logo
ISSN 2734-9020

Mẫu thiết kế nhà 1 trệt 1 lầu sân thượng tiết kiệm chi phí

Thứ sáu, 26/06/2020 - 09:23

Chi phí xây nhà phụ thuộc nhiều vào tổng diện tích xây dựng. Với ngân sách giới hạn, gia chủ cần cân nhắc kỹ lưỡng về các không gian sinh hoạt để kiểm soát tốt chi phí. Nếu chỉ cần 2 phòng ngủ, gia chủ nên xây nhà 1 trệt 1 lầu sân thượng là phù hợp nhất với nhu cầu và tiết kiệm chi phí.

Bài viết này sẽ giới thiệu với độc giả mẫu nhà 1 trệt 1 lầu sân thượng diện tích 4m x 13m, với phong cách hiện đại, đơn giản nhằm tiết kiệm tối đa chi phí xây dựng. 

Bản vẽ nhà 1 trệt 1 lầu sân thượng

Bản vẽ mặt bằng được kiến trúc sư triển khai sau khi chủ đầu tư kí kết hợp đồng thiết kế, thể hiện sự phân chia không gian, kích thước, bố trí vật dụng. Với mẫu nhà này, phòng khách và bếp thường được bố trí ở tầng trệt với cầu thang chữ U ở giữa.

Bản vẽ thiết kế mặt bằng tầng trệt
Mặt bằng tầng trệt
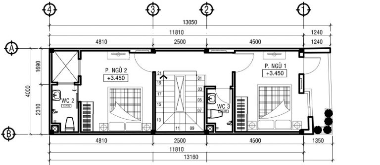
Bản vẽ thiết kế mặt bằng tầng lầu
Cầu thang được kiến trúc sư chia thành 21 bậc, mỗi bậc 165mm theo chiều cao tầng 3,3m. Hai phòng ngủ trên lầu có diện tích 16m2, thông thoáng nhờ ban công và thiết kế thông tầng. 
Bản vẽ thiết kế mặt bằng sân thượng
Sân thượng rộng rãi có phòng thờ riêng biệt ở phía sau. 
Bản vẽ thiết kế nhà
i=2% là độ dốc giảm dần để nước mưa có thể dễ dàng thoát theo lỗ thoát nước ở 2 bên seno.

Phối cảnh mặt tiền và nội thất

Phối cảnh mặt tiền nhà 1 trệt 1 lầu sân thượng
Mặt tiền nhà theo phong cách hiện đại, tinh giản các chi tiết trang trí, chỉ sử dụng sơn trắng và ốp gạch thẻ inax ở ban công để tạo điểm nhấn.
Phối cảnh thiết kế nội thất phòng khách
Nội thất nhà cũng hạn chế tối đa các chi tiết, đồ trang trí, chỉ sắm các vật dụng cần thiết như bàn ghế sofa, tủ bếp.
Phối cảnh thiết kế nội thất phòng khách liên thông phòng ăn
Tông màu sáng chủ đạo cho không gian thêm rộng rãi, thông thoáng, sang trọng.
Phối cảnh thiết kế phòng bếp
Kệ bếp chữ L với mặt bếp bằng đá.
Phối cảnh thiết kế nội thất phòng ngủ
Phòng ngủ không rườm rà đồ nội thất, chỉ cần giường, đôn đầu giường và kệ để vật dụng là vừa đủ nhu cầu.
Phối cảnh thiết kế nội thất phòng ngủ bé gái
Phòng ngủ cho bé gái được trang trí giấy dán tường và các vật dụng cơ bản theo tone hồng dễ thương.
Phối cảnh thiết kế phòng thờ
Phòng thờ của gia đình trên sân thượng.

Với tổng diện tích 175m2, chi phí xây thô và hoàn thiện của ngôi nhà này là 950 triệu đồng. Kiến trúc sư cho biết chi phí xây nhà tiết kiệm nhưng không phải do giảm chất lượng vật tư xây thô hay lựa chọn nhà thầu giá rẻ mà mấu chốt ở đây là chủ đầu tư cân nhắc các chi tiết trang trí, vật dụng sử dụng trong nhà. Lựa chọn nhà thầu uy tín sẽ giúp đảm bảo chất lượng công trình với chi phí xây dựng hợp lý nhất.  

Tư vấn thông tin và hình ảnh: Kiến trúc Xây dựng Song Phát

>> Mẫu thiết kế nhà 1 trệt 2 lầu mái Thái theo phong cách Tân cổ điển

>> Thiết kế nhà phố 2 tầng đẹp cá tính cho gia đình 4 thành viên

>> Những mẫu thiết kế nhà phố 1 trệt, 1 lửng, 1 lầu đẹp

Hương Liên

Thảm dệt thủ công Vinhomes Hải Vân Bay tên gọi khác : Vinhomes Làng Vân Đà Nẵng Tấm ốp nhựa giả gỗ Khám phá các loại sơn nội thất giúp không gian sống đẹpChuyển đổi số cùng https://viettelnet.vn/ ViettelCông ty kiến trúc Hasa Home ghế massage The Fullton menu online VnScan Vinhomes Hải Vân Bay Đà Nẵng: http://vinhomeshaivanbaydanang.com.vn/