- Tầng 1: Sân trước để xe, phòng khách, phòng bếp + ăn, phòng ngủ, phòng vệ sinh, khu sơ chế.
- Tầng 2: Phòng thờ, 03 phòng ngủ, 02 phòng vệ sinh, khu giặt và phơi đồ.
Mong kiến trúc sư tư vấn phương án thiết kế nhà ống 2 tầng 4 phòng ngủ phù hợp với nhu cầu của gia đình tôi.
Xin cảm ơn!
Kiến trúc sư thiết kế nhà ống 2 tầng 4 phòng ngủ hiện đại:
Dựa theo thông tin mà gia chủ cung cấp, kiến trúc sư đưa ra phương án mặt bằng thiết kế nhà ống 2 tầng 4 phòng ngủ như sau để bạn tham khảo:
![]() |
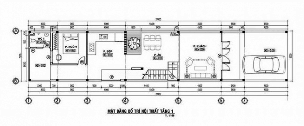
| Mặt bằng bố trí nội thất tầng 1 nhà ống hiện đại |
- Tầng 1: Từ cổng đi vào là khoảng sân trước, kiến trúc sư bố trí nơi để xe cho các thành viên cũng như khách ghé thăm nhà. Không gian phòng khách được thiết kế ở phía trước với cửa kính cao rộng, tạo cảm giác rộng rãi, thoáng đãng và đón được nhiều ánh sáng tự nhiên nhất.
Phòng bếp kết hợp phòng ăn được thiết kế liên thông với phòng khách tạo không gian liền mạch và thông thoáng. Khu bếp có cửa sổ lấy sáng, đón gió và đẩy mùi thức ăn ra ngoài.
Phòng ngủ master được trang bị đầy đủ tiện nghi hiện đại, có cửa sổ mở ra ngoài giúp căn phòng luôn thông thoáng, đón sáng tự nhiên tối đa. Cuối nhà là khu sơ chế thực phẩm tươi sống. Phòng vệ sinh phục vụ nhu cầu sinh hoạt ở tầng1.
![]() |
| Mặt bằng bố trí nội thất tầng 2 nhà ống |
- Tầng 2: Gồm phòng thờ, 03 phòng ngủ và 02 phòng vệ sinh. Phòng thờ được thiết kế ở phía trước nhà, hướng bàn thờ nhìn về hướng tốt cho gia chủ, thu hút vận may, tài lộc.
Phòng ngủ của cậu con trai được thiết kế đủ rộng với nội thất hiện đại, tông màu sáng giúp cho căn phòng luôn tươi mới. Cuối nhà là 2 phòng ngủ của cô con gái được thiết kế có cửa sổ mở ra ngoài với đầy đủ tiện nghi.
Hai phòng vệ sinh đáp ứng nhu cầu sinh hoạt trên tầng 2 nhà ống. Cạnh đó là khu giặt, phơi cho các thành viên trong gia đình.
![]() |
| Phối cảnh 3D mẫu nhà ống 2 tầng 4 phòng ngủ phong cách hiện đại |
Không gian nội thất tham khảo:
![]() |
| Không gian phòng khách nhà ống thoáng đãng, bài trí hài hòa, phối màu tinh tế. |
![]() |
| Thiết kế bếp kết hợp phòng ăn thuận tiện cho sinh hoạt hàng ngày. Bar mini tích hợp chức năng bàn ăn sáng dành cho 2-3 người cùng lúc. |
![]() |
| Phòng ngủ master sử dụng nội thất gỗ chủ đạo, tông màu sáng tạo cảm giác thân thiện, thư giãn cho người dùng. Cửa sổ kính lấy sáng, thông gió tự nhiên tối ưu. |
![]() |
| Phòng ngủ con gái gam màu hồng pastel nhẹ nhàng, nữ tính. Tủ kệ liền tường, cao kịch trần cung cấp không gian lưu trữ thoải mái, giúp căn phòng luôn thoáng gọn. |
![]() |
| Không gian riêng của cậu con trai được thiết kế và bài trí theo sở thích của trẻ với những mảng trang trí sinh động, tươi vui. |
![]() |
| Không gian phòng thờ rộng thoáng, nhiều ánh sáng tự nhiên. |
![]() |
| Phòng vệ sinh hiện tại, thoáng sạch trong nhà ống 2 tầng 4 phòng ngủ. |
Đơn vị tư vấn: Công ty Cổ phần XD & TM Kiến tạo Việt
>> Thiết kế nhà ống 4 tầng kết hợp cho thuê mặt bằng kinh doanh
>> Mẫu nhà ống 2 tầng đẹp trên đất rộng 90m2, mặt tiền 5m
>> Tư vấn thiết kế nhà ống 3 tầng hiện đại, có chỗ đậu xe ô tô









