Sở hữu thế đất rộng nhưng gia đình chỉ sử dụng diện tích 4x15m để xây dựng với mong muốn thiết kế nhà 1 trệt 1 lầu theo phong cách độc đáo, có không gian xanh và ánh sáng tự nhiên, đảm bảo nhu cầu sinh hoạt của gia đình 6 thành viên. Quy mô xây dựng gồm: Sân trước, sân sau phòng khách, bếp, 2 phòng vệ sinh, 3 phòng ngủ, phòng thờ, ban công.
Hồ sơ thiết kế nhà thể hiện đầy đủ các bản vẽ mặt bằng, kích thước, bản vẽ chi tiết từng bộ phận cấu thành nên công trình, từ đó giúp kỹ sư xây dựng thi công dễ dàng.
>> Tham khảo thêm: Những mẫu nhà phố 2 tầng được dự đoán sẽ lên ngôi trong năm tới
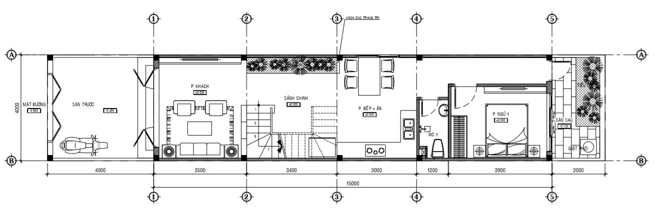
Bản vẽ mặt bằng nhà 1 trệt 1 lầu
Tầng trệt được phân chia thành các không gian sinh hoạt chính với khoảng sân trước rộng rãi để xe, phòng khách có diện tích 4x3,5m để gia chủ thoải mái tiếp đón khách quý.
Sảnh cầu thang được bố trí tiểu cảnh làm tăng không gian xanh cho ngôi nhà. Cầu thang chữ U với chiều dài 3,4m bố trí sát tường hông ngoài đảm nhiệm chức năng lưu thông còn giúp phân chia phòng khách và bếp. Chiều dài nhà khá sâu (15m) cho phép kiến trúc sư bố trí thêm một phòng ngủ nhỏ phía sau nhà. Sân sau được sử dụng để bố trí tiểu cảnh cây xanh và khu giặt phơi.

Sơ đồ bố trí mặt bằng tầng 1.
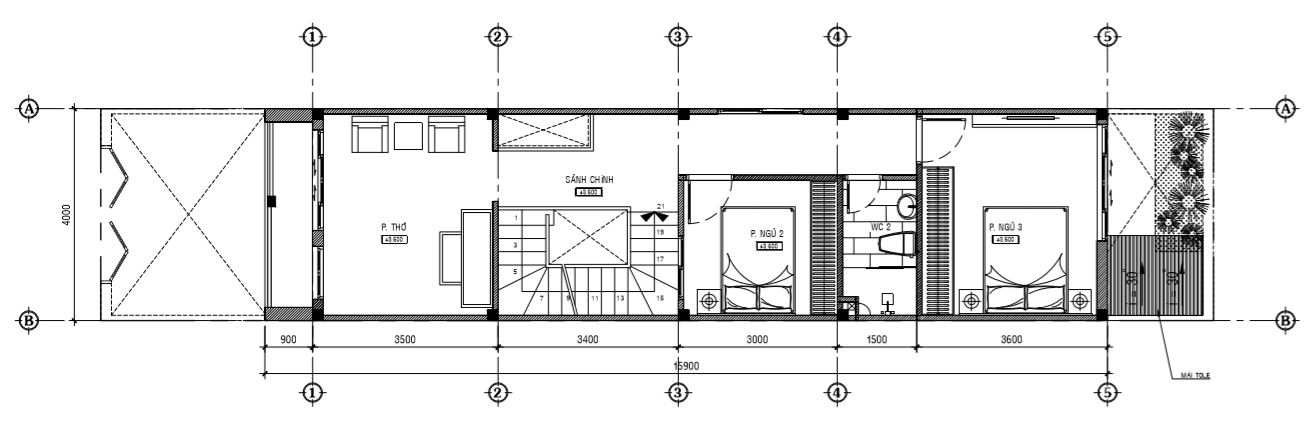
Lầu 1 gồm 2 phòng ngủ lớn cùng phòng thờ. Các phòng đều được thiết kế đón sáng, đón gió từ mặt tiền, giếng trời cầu thang hoặc sân sau. Tại đây có 1 phòng vệ sinh chung phục vụ cho quá trình sinh hoạt của các thành viên trong gia đình.

Sơ đồ bố trí mặt bằng lầu 1.
Một phần nhỏ mái mặt tiền được thiết kế theo phong cách mái Thái, phần sau là mái bằng để giảm chi phí xây dựng cho chủ nhà.

Sơ đồ mặt bằng tầng thượng.
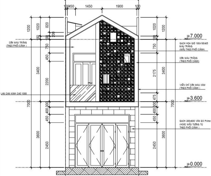
Bản vẽ mặt đứng nhà 1 trệt 1 lầu

Mặt cắt đứng của ngôi nhà.
Bản vẽ thiết kế mặt tiền
![]() |
| Mặt tiền nhà với mái hình chóp độc đáo tạo ấn tượng cho người qua đường. Gạch bông gió luôn là cảm hứng bất tận cho kiến trúc sư khi thiết kế nhà. Loại gạch này ngoài tạo không gian thông thoáng, đón gió, đón sáng còn vật liệu trang trí hàng đầu cho mặt tiền. |
Hình ảnh thực tế ngôi nhà sau khi hoàn thiện
Ngôi nhà được thi công hoàn thiện giữ nguyên thiết kế ban đầu, chính xác đến từng viên gạch, thể hiện sự hợp tác tích cực giữa chủ nhà và kiến trúc sư.

Bản vẽ thiết kế và hình ảnh thực tế nhà 1 trệt 1 lầu sau khi hoàn thiện.

Khu vực phòng khách và cầu thang của ngôi nhà.

Cửa sổ kính đưa ánh sáng vào cả những không gian hẹp, dài như hành lang.

Khu vực phòng thờ và ban công thoáng sáng.
Mẫu nhà 1 trệt 1 lầu đang trở thành xu hướng kiến trúc hiện nay bởi có nhiều thiết kế đa dạng, tiết kiệm chi phí thi công mà vẫn đảm bảo không gian sống.
Tư vấn thiết kế: Kiến trúc xây dựng Song Phát
