|
|
| Nhà đẹp 3 tầng ở Hòa Xuân (Đà Nẵng) với thiết kế mặt tiền hiện đại, trang nhã và hài hòa với cảnh quan thiên nhiên xung quanh. |
|
|
| Gia chủ mong muốn sở hữu không gian sống bình yên, ngập tràn nắng gió tự nhiên. |
|
|
| Nhằm thúc đẩy sự kết nối, giao lưu giữa các thành viên gia đình, kiến trúc sư bố trí không gian sinh hoạt chung ở tầng 1 và sân vườn. |
|
|
| Nhà đẹp mang lại cảm giác bình yên nhờ sự kết nối liền mạch, giữa không gian nhà và sân vườn dường như không có giới hạn. |
|
|
| Kiến trúc sư sử dụng gỗ làm vật liệu chủ đạo, kết hợp hài hòa với bảng màu trung tính khác tạo nên không gian sống an yên, thân thiện. |
|
|
| Phòng ngủ master có thiết kế đơn giản, tiết chế tối đa đồ nội thất. Cửa kính lớn cho phép ánh sáng tự nhiên ngập tràn không gian phòng. |
|
|
| Từng khu vực chức năng trong nhà đều được thêm vào yếu tố sân vườn, xen kẽ cây xanh nhằm thanh lọc không khí, đồng thời tạo cảm giác gần gũi với thiên nhiên. |
|
|
| Tại khu vực thông tầng, các thành viên gia đình đều có thể giao lưu, kết nối với nhau. |
|
|
| Kiến trúc sư thiết kế khoảng thông tầng khéo léo đón sáng tự nhiên tối đa cho không gian bên trong nhà đẹp Đà Nẵng, góp phần thông gió chéo tối ưu. |
|
|
| Công trình đáp ứng đủ các tiêu chí như đảm bảo tính kết nối, sự riêng tư thiết yếu và mang lại không gian sống chan hòa, gần gũi thiên nhiên. |
|
|
| Ánh sáng tự nhiên tràn vào cả phòng tắm - vệ sinh. |
 |
| Góc thư giãn thoáng mát với xích đu, cây xanh ở sân trước ngôi nhà 3 tầng. |
 |
| Sân vườn nhỏ xinh được bố trí xen kẽ vào các không gian chức năng. |
|
|
| Góc hóng gió, ngắm cảnh ban công tầng thượng. |
|
|
| Khung cảnh ngôi nhà khi lên đèn |
|
|
| Mặt bằng bố trí nội thất tầng 1 |
|
|
| Mặt bằng bố trí nội thất tầng 2 |
|
|
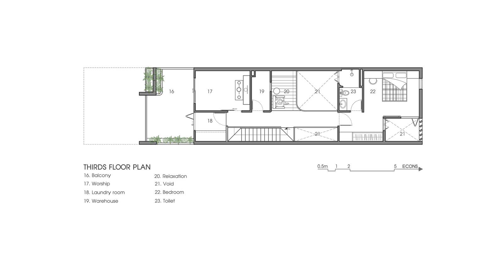
| Mặt bằng bố trí nội thất tầng 3 |
 |
| Phối cảnh thông gió, lấy sáng cho nhà 3 tầng |
 |
| Phối cảnh kiến trúc nhà đẹp ở Hòa Xuân, Đà Nẵng |
Thông tin công trình:
Lam Giang
>> Lặng ngắm ngôi nhà đẹp con gái dành tặng mẹ
>> Khám phá thiết kế nhà 3 tầng sử dụng chất liệu bê tông chủ đạo ở Hà Nội
>> Nhà khung thép có thể xây dựng ở vùng lũ lụt, tái định cư