|
|
| Tọa lạc ở thị trấn Ubud trên bán đảo Bali (Indonesia), ngôi nhà vườn này được khởi công xây dựng hồi tháng 6/2016, hoàn thiện vào tháng 12/2017. |
|
|
| Kiến trúc sư tận dụng tối đa khung cảnh tự nhiên để mang đến cho không gian sống vẻ thư thái, yên tĩnh bao trùm. Bể bơi xanh mát hướng nhìn ra khu rừng xanh tốt. |
|
|
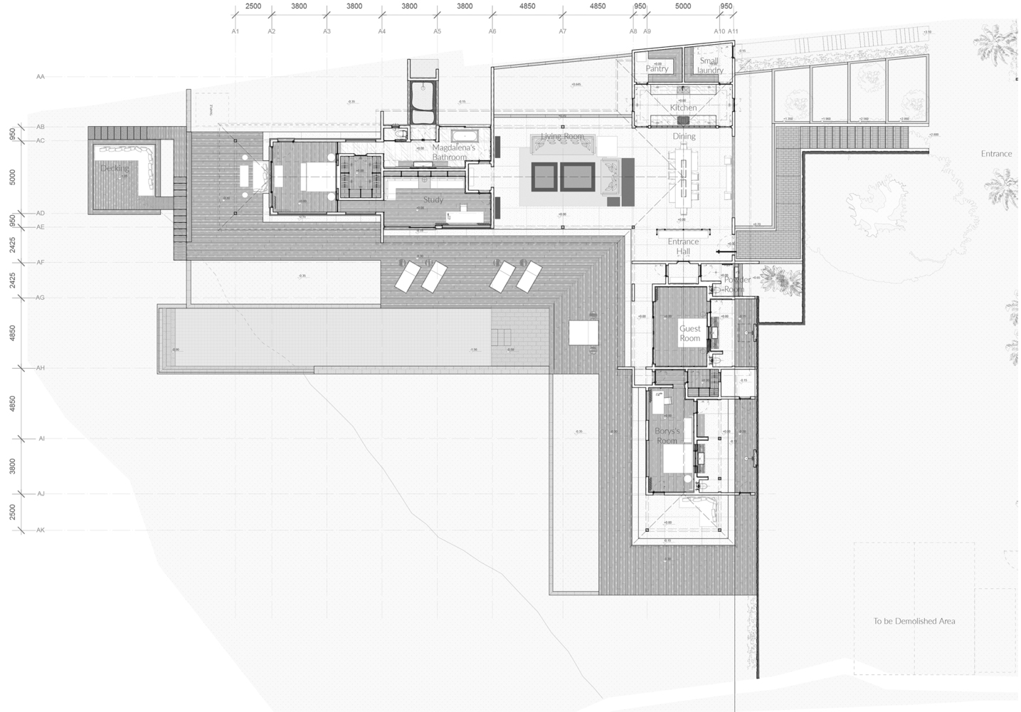
| Nhà vườn được xây dựng trên đất hình chữ L rộng 400m2 thuộc khu đất 4000m2. Nhà gồm phòng khách, 3 phòng ngủ có phòng tắm riêng, bếp, phòng ăn, kho, phòng giặt là... |
 |
| Theo phong cách kiến trúc Bali truyền thống, nhiều phần của ngôi nhà được thiết kế mở, kết nối trực tiếp với thiên nhiên bên ngoài. |
 |
| Vật liệu địa phương được lựa chọn cẩn thận cho dự án, bao gồm cả gỗ lim cho cấu trúc chính và phần mái. |
 |
| Các chi tiết thiết kế phần mái do thợ thủ công địa phương đảm nhận. Xà nhà bằng gỗ đánh nhám và để tự nhiên tạo cảm giác mộc mạc, gần gũi với thiên nhiên. |
|
|
| Một số bức tường được làm bằng đá núi lửa đặc biệt. Gỗ tếch được sử dụng để ốp tường, sàn phòng ngủ, cửa sổ và cửa ra vào. |
|
|
| Tường kính phòng ngủ phản chiếu khung cảnh thiên nhiên, đây là cách gián tiếp mang sắc xanh của cây lá vào không gian sống. |
 |
| Để đảm bảo tính riêng tư cần thiết cho không gian ngủ nghỉ, kiến trúc sư cho bố trí rèm cửa màu trắng mềm mại mà không cản đường đi của ánh sáng. |
|
|
| Góc đọc sách, làm việc cạnh cửa sổ kính ngập tràn ánh sáng tự nhiên. |
 |
| Phòng làm việc tại nhà hướng nhìn ra rừng cây xanh tốt và bể bơi phía trước nhà vườn. |
|
|
| Phòng tắm phong cách mở, kết hợp hài hòa giữa yếu tố truyền thống và hiện đại. |
|
|
| Cầu thang ngoài trời kết nối nhà vườn với cảnh quan thiên nhiên. |
|
|
| Mặt bằng thiết kế nhà vườn |
Lam Giang
>> Chiêm ngưỡng ngôi nhà vườn 700m2 ngập tràn nắng gió ở xứ Thanh
>> Báo Mỹ ấn tượng với nhà vườn lấy cảm hứng từ kiến trúc truyền thống Huế
>> Vườn cây, ao cá ôm trọn ngôi nhà vườn ở Long An