Nhà Vy Anh - nơi trú ẩn xanh mát giữa Sài Gòn xô bồ

Thứ tư, 22/04/2020 - 06:13

Được bao che bởi hệ song và lam hoa gió để giữ an toàn và riêng tư, căn nhà ống 60m2 mang tên Vy Anh như khép mình lại giữa Sài Gòn tấp nập, xô bồ, cho phép gia chủ tận hưởng sự bình yên của riêng mình sau một ngày tất bật với công việc.

Chủ nhà mong muốn xây dựng một chốn riêng biệt, tách bạch, có cây cối và rào chắn vây quanh tạo thành một nơi trú ẩn yên bình.
Thể theo mong muốn của gia chủ, căn nhà được bao che bởi hệ song và lam gió, vừa an toàn, vừa riêng tư.
Hệ song bảo vệ cũng giữ vai trò như giàn cho cây leo để làm mát và để mảng xanh bao trùm công trình.
Do không có nhu cầu quá nhiều về không gian tầng thượng mà ngôi nhà được làm thuôn dần lên cao, giảm dần diện tích các tầng trên, tạo thành mặt tiền uốn cong cho phép ánh sáng tự nhiên đi sâu vào trong ngôi nhà có dạng ống hẹp và dài.


Mảnh sân nhỏ như khoảng đệm tách biệt không gian sinh hoạt với môi trường bên ngoài.

Tầng trệt gồm các không gian sinh hoạt chung như nhà bếp, phòng ăn và nhà vệ sinh chung.


Góc bếp nhỏ gọn với hệ tủ gỗ mang màu sắc tươi sáng.


Phòng vệ sinh cạnh cầu thang.


Cửa kính trong suốt đón ánh sáng từ giếng trời giúp phòng vệ sinh luôn thoáng đãng.


Cuối nhà có một phòng ngủ nhỏ. 


Cầu thang - giếng trời kết nối các tầng.

Ánh sáng, cây xanh đi sâu vào giữa căn nhà thông qua giếng trời - vùng mở cũng là vùng được nhìn ra từ mọi phòng của căn nhà, tạo thành một nơi mà chủ nhà cảm thấy an toàn và thư giãn nhất.


Phòng khách và khu vực giải trí trên tầng 2.


Phòng tắm.


Khu giặt là ở tầng trên cùng.


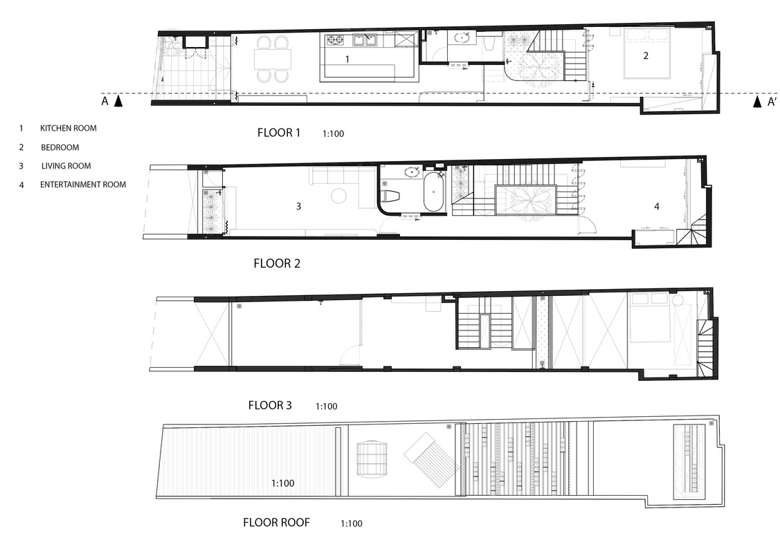
Bản vẽ mặt bằng ngôi nhà.

Mặt cắt nhà.

Thông tin dự án:

  • Tên công trình: Vy Anh House
  • Địa điểm: Thành phố Hồ Chí Minh
  • Thiết kế và thi công: KHUÔN Studio
  • Nhóm thiết kế: Huỳnh Anh Tuấn, Ngô Quang Hậu
  • Năm hoàn thành: 2019
  • Diện tích: 60m2
  • Nhiếp ảnh: Thiết Vũ

>> Nhà 3 tầng như chiếc lồng chim nổi bật giữa khu phố

Khánh An