Nhu cầu sử dụng không gian cụ thể gồm: Phòng thờ kết hợp phòng khách, phòng bếp kết hợp phòng ăn, 4 phòng ngủ và 3 phòng vệ sinh. Mong được kiến trúc sư tư vấn phương án bố trí mặt bằng nhà vườn 1 tầng hợp lý, đầy đủ công năng và tiết kiệm chi phí nhất có thể.
Trân trọng cảm ơn!
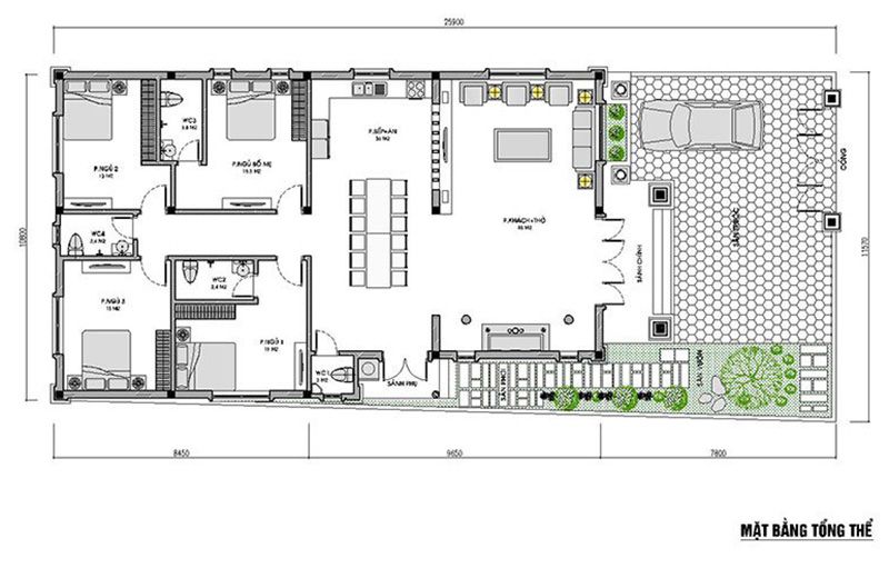
Kiến trúc sư tư vấn thiết kế nhà vườn 1 tầng 180m2:
Mảnh đất rộng 250m2 là điều kiện thuận lợi để thiết kế nhà vườn thoáng đẹp, nhiều không gian xanh và đầy đủ tiện nghi hiện đại, đáp ứng nhu cầu cuộc sống của gia đình 5 thành viên. Dựa theo thông tin mà gia chủ cung cấp cũng như yêu cầu thiết kế nhà, kiến trúc sư đưa ra phương án bố trí mặt bằng công năng nhà vườn 1 tầng như sau để bạn tham khảo.
![]() |
| Mặt bằng thiết kế nhà vườn 1 tầng hiện đại |
Phía trước nhà, kiến trúc sư chừa một phần diện tích khá rộng rãi làm sân vườn, gara ô tô, chỗ để xe cho các thành viên gai đình. Đây cũng là không gian xanh mát, thoáng đẹp với nhiều loại cây hoa theo sở thích của gia chủ, hợp phong thủy, góp phần tạo nên tính thẩm mỹ tổng thể của công trình.
Qua bậc tam cấp là hệ cửa chính hai cánh cao rộng dẫn lối vào phòng khách. Căn phòng được thiết kế theo phong cách hiện đại, bài trí nội thất sang trọng với bộ ghế sofa da màu đen nổi bật. Với các cửa sổ kính mở ra nhiều hướng, không gian tiếp khách luôn thoáng đãng và tràn ngập ánh sáng tự nhiên vào ban ngày.
Phòng thờ được thiết kế liên thông với phòng khách nhằm tạo sự thống nhất, liền mạch cho không gian. Hướng bàn thờ nhìn về cung tốt Thiên Y, tốt cho gia chủ. Nội thất phòng thờ bằng gỗ tự nhiên, chạm khắc tinh tế tạo cảm giác trang nghiêm.
Không gian chức năng tiếp theo là khu bếp kết hợp phòng ăn rộng rãi, thông thoáng, có cửa sổ lớn làm bằng kính cường lực chắc chắn, mang lại tầm nhìn đẹp ra cảnh quan sân vườn xanh bên ngoài.
Tại khu bếp, kiến trúc sư bố trí cửa cao rộng mở ra sân vườn sau nhà với mục đích thoát mùi thức ăn, dầu mỡ, tránh ảnh hưởng tới các phòng chức năng khác trong nhà.
Mảng không gian phía sau nhà vườn dành cho 3 phòng ngủ, 3 phòng vệ sinh tiện nghi. Trong đó, phòng ngủ master của vợ chồng gia chủ được thiết kế rộng thoáng, có vệ sinh khép kín và đầy đủ nội thất hiện đại. Ba phòng ngủ của con trai và con gái diện tích vừa đủ để bố trí nội thất cơ bản, đảm bảo nhu cầu sinh hoạt, học tập hàng ngày của trẻ.
Các phòng ngủ đều có cửa sổ mở ra khoảng thoáng, sân vườn bên ngoài đón sáng tự nhiên, đối lưu không khí, tạo cảm giác thư thái, tốt cho sức khỏe của người ngủ trong phòng.
Phía cuối nhà là phòng vệ sinh chung rộng rãi, đặt ở vị trí dễ dàng tiếp cận từ các phòng khách, thuận tiện trong sinh hoạt hàng ngày. Cạnh đó là khu giặt giũ kết hợp phơi quần áo.
![]() |
| Phối cảnh 3D mẫu nhà vườn 1 tầng thoáng rộng, tiện nghi |
Gợi ý bài trí nội thất nhà vườn 1 tầng:
![]() |
| Phòng khách sang trọng và ấm áp với bảng màu nâu đất chủ đạo. Tranh hoa treo tường là nhấn trang trí hút mắt, nổi bật dưới ánh đèn. |
![]() |
| Phòng bếp kết hợp phòng ăn luôn thoáng đãng và tận dụng được ánh sáng tự nhiên nhờ khung cửa cao rộng mở ra sân sau nhà. |
![]() |
| Phòng ngủ master được bài trí theo phong cách sang trọng, tối giản với bảng màu trung tính thanh lịch, tạo cảm giác thư thái cho người dùng. |
![]() |
| Mẫu phòng ngủ cho con trai với thiết kế hiện đại, trang trí phù hợp với độ tuổi của bé và dễ dàng thay đổi phong cách về sau. |
![]() |
| Phòng ngủ bé gái với bảng màu hồng, tím oải hương nhẹ nhàng. Căn phòng tích hợp góc học tập, làm việc tiện dụng. |
![]() |
| Mẫu phòng thờ với diện tích vừa phải, có cửa sổ mở ra ngoài giúp lưu thông không khí. |
![]() |
| Phòng tắm, vệ sinh hiện đại trong nhà vườn 1 tầng. Vách kính phân tách rõ hai khu khô - ướt, đảm bảo căn phòng luôn khô ráo, sạch sẽ. |
Đơn vị tư vấn: Công ty Cổ phần XD & TM Kiến tạo Việt
Lam Giang
>> Mẫu nhà ống 4 tầng hiện đại có phòng ngủ ông bà và phòng ngủ khách
>> Thiết kế nhà phố 3 tầng kết hợp kinh doanh trên đất 2 mặt tiền








