![]() |
| Toàn cảnh bệnh viện nhi ở Thái Lan với hình khối kiến trúc ấn tượng, lạ mắt. |
![]() |
| Những khung cửa kính trong suốt hình vòm với kích cỡ đa dạng mang đến tầm nhìn đẹp, đồng thời tạo mắt cắt thú vị cho ngoại thất công trình. |
![]() |
| Những điểm nhấn vui nhộn trong bệnh viện nhi là một cầu trượt màu vàng tươi sáng xoắn ốc, hình động vật phía trên giường bệnh và các chòm sao phát sáng như đèn ngủ. |
![]() |
| Công trình nằm trong danh sách lựa chọn nội thất thư giãn và chăm sóc sức khỏe của năm 2020 do Dezeen bình chọn. |
![]() |
| Thiết kế nội thất bệnh viện nhi tạo không gian thoáng sáng, vui nhộn, đáng yêu để trẻ nhỏ không cảm thấy xa lạ, sợ hãi khi tới khắm bệnh. |
![]() |
| Phòng chờ màu hồng có khu vui chơi và ghế dài êm ái cho trẻ nghỉ ngơi, thư giãn. |
![]() |
| Khu vực chờ của mỗi phòng khám được thiết kế thành sân chơi, điều này trở thành "gánh nặng" cho các bậc phụ huynh khi phải thuyết phục bọn trẻ xuất viện. |
![]() |
| Các phòng được sơn với tông màu phấn nhẹ nhàng, xanh và vàng nhằm tạo điều kiện cho trẻ phát huy trí tưởng tượng của mình. |
![]() |
| Các phòng được trang trí theo chủ đề động vật sinh động như đèn trần hình thỏ. |
![]() |
| Một phòng bệnh khác gắn đèn trần hình cá heo voi ngộ nghĩnh. |
![]() |
| Ánh sáng trong tất cả các phòng và hành lang cũng được thiết kế nhẹ nhàng, thay vì ánh sáng huỳnh quang gay gắt thường thấy trong bệnh viện. |
![]() |
| Đèn gắn trần mô phỏng các chòm sao trên bầu trời. |
![]() |
| Nhà vệ sinh dành cho nữ được ốp lát gạch màu hồng. Bồn rửa và vệ sinh được thiết kế thành hốc hình vòm, với một nửa thiết bị được đặt ngang tầm với của trẻ để dễ dàng tiếp cận. |
![]() |
| Phòng vệ sinh nam có thiết kế tương tự với gạch ốp màu xanh dương nhẹ nhàng. |
![]() |
| Nội thất bệnh viện nhi được thiết kế thấp gọn, bo tròn để đảm bảo sự tiện dụng và an toàn. |
![]() |
| Các nhà thiết kế đã đưa các yếu tố vui nhộn như đám mây phía trên bể bơi và các khu vui chơi nhẹ nhàng trong phòng chờ, để giúp đánh lạc hướng những đứa trẻ có thể lo lắng hoặc cảm thấy không khỏe. |
![]() |
| Có thể nói, bệnh viện Nhi đồng EKH sẽ thay đổi nhận thức của mọi người về không gian của bệnh viện dành cho trẻ em. |
![]() |
| Mặt bằng tầng 1 bệnh viện nhi |
![]() |
| Mặt bằng tầng 2 bệnh viện nhi |
![]() |
| Mặt bằng tầng 3 bệnh viện nhi |
![]() |
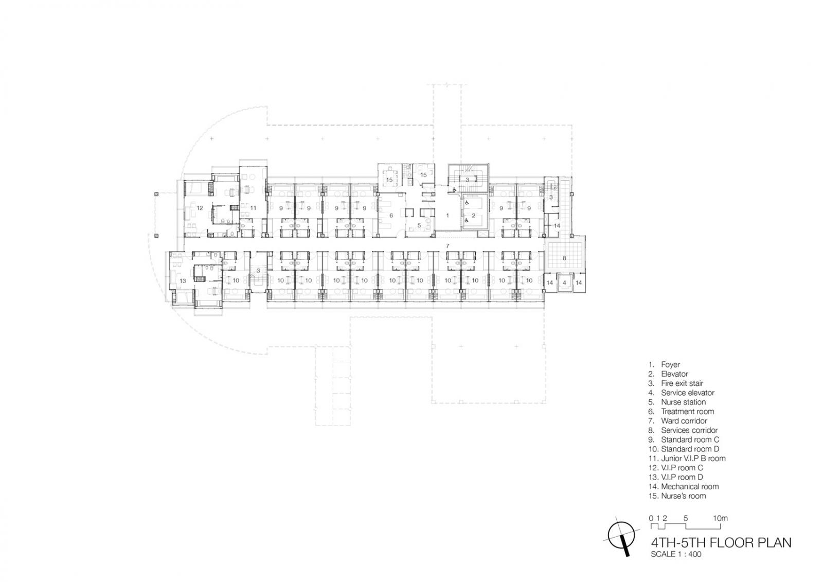
| Mặt bằng tầng 4, tầng 5 bệnh viện nhi |
Lam Giang




















