Tuy nhiên, nhiều khu nhà ở học viên hiện nay vẫn được tổ chức theo mô hình doanh trại truyền thống, chủ yếu phục vụ chức năng ở tập thể và quản lý quân số, chưa đáp ứng đầy đủ nhu cầu học tập và sinh hoạt đa dạng của học viên trong bối cảnh đổi mới giáo dục – đào tạo. Trên cơ sở phân tích các lý luận về tổ chức không gian cư trú, hành vi xã hội trong môi trường sống và đặc điểm cư trú của học viên phân đội, bài báo làm rõ cơ sở lý luận và thực tiễn của việc tổ chức không gian cư trú trong các trường đại học quân sự. Từ đó, nghiên cứu đề xuất một số định hướng tổ chức không gian cư trú cho học viên phân đội thông qua hệ thống nguyên tắc, mô hình và giải pháp tổ chức không gian.
1. Đặt vấn đề
Trong hệ thống đào tạo của Quân đội nhân dân Việt Nam, các trường đại học quân sự (ĐHQS) thực hiện nhiệm vụ đào tạo học viên phân đội (HVPĐ) – lực lượng cán bộ chỉ huy cấp cơ sở trực tiếp trong quân đội. Khác với sinh viên trong các trường đại học dân sự, HVPĐ vừa thực hiện nhiệm vụ học tập, nghiên cứu khoa học, vừa rèn luyện kỷ luật quân đội và sinh hoạt trong môi trường quản lý theo tổ chức đơn vị. Vì vậy, không gian cư trú trong nhà trường quân đội không chỉ là nơi ở mà còn là môi trường giáo dục – rèn luyện toàn diện đối với học viên.
2. Cơ sở lý luận tổ chức không gian cư trú cho học viên phân đội trong các trường đại học quân sự
2.1. Các khái niệm
Trường đại học quân sự là cơ sở giáo dục đại học thuộc hệ thống các học viện, nhà trường trong quân đội, có chức năng đào tạo sĩ quan trình độ đại học trở lên; đồng thời tham gia nghiên cứu khoa học quân sự và phục vụ nhiệm vụ quốc phòng
Học viên phân đội là đối tượng đào tạo sĩ quan cấp phân đội trong các trường ĐHQS. Học viên được tuyển chọn từ thanh niên tốt nghiệp trung học phổ thông và được tổ chức quản lý theo đơn vị quân đội như trung đội, đại đội, tiểu đoàn trong suốt quá trình đào tạo.
Không gian cư trú được hiểu là tổng thể các không gian phục vụ hoạt động sinh hoạt thường nhật của con người, bao gồm không gian ở, sinh hoạt chung, học tập, giao tiếp xã hội và các hoạt động cá nhân khác trong môi trường sống. Theo Luật cư trú năm 2020, nơi cư trú của học viên các trường Quân đội nhân dân là nơi đơn vị của người đó đóng quân [4]. Như vậy, trường ĐHQS chính là không gian cư trú của HVPĐ, bao gồm các không gian ở, sinh hoạt chung, học tập, sinh hoạt văn hóa và các không gian phục vụ đời sống thường ngày. HVPĐ sẽ cư trú tại đây trong suốt quá trình học tập cho đến khi tốt nghiệp ra trường.
2.2. Lý luận về tổ chức không gian cư trú
Không gian cư trú và hành vi xã hội: Các nghiên cứu trong lĩnh vực kiến trúc và tâm lý môi trường cho thấy không gian sống có ảnh hưởng trực tiếp đến hành vi và tương tác xã hội của con người. Theo quan điểm của Amos Rapoport, môi trường kiến trúc không chỉ đáp ứng nhu cầu vật chất mà còn định hướng hành vi xã hội thông qua cấu trúc không gian và cách tổ chức các khu vực chức năng [1]. Trong môi trường cư trú tập thể như ký túc xá hay doanh trại quân đội, cách tổ chức không gian có thể thúc đẩy hoặc hạn chế các hoạt động giao tiếp, học tập nhóm và sinh hoạt cộng đồng. Do đó, tổ chức hợp lý các không gian ở, không gian chung và không gian chuyển tiếp có vai trò quan trọng trong việc hình thành môi trường sống tích cực.
Khoảng cách xã hội trong môi trường sống: Lý thuyết khoảng cách xã hội (proxemics) của Edward T. Hall chỉ ra rằng con người luôn duy trì những khoảng cách khác nhau trong giao tiếp và sinh hoạt, bao gồm khoảng cách cá nhân, khoảng cách xã hội và khoảng cách cộng đồng [3]. Trong tổ chức không gian cư trú, việc bố trí các khu vực với mức độ riêng tư khác nhau giúp người sử dụng dễ dàng điều chỉnh các mối quan hệ xã hội và trạng thái tâm lý. Điều này đặc biệt quan trọng trong môi trường cư trú tập thể, nơi nhiều cá nhân cùng sinh hoạt trong một không gian chung.
Tổ chức không gian theo cấu trúc cộng đồng: Trong các khu ở tập thể, tổ chức không gian theo cấu trúc cộng đồng là nguyên tắc phổ biến nhằm tạo ra các nhóm cư trú nhỏ có mối liên kết xã hội chặt chẽ. Mô hình này thường bao gồm các cấp độ không gian từ cá nhân, nhóm nhỏ đến cộng đồng lớn hơn. Cấu trúc cộng đồng giúp tăng cường sự gắn kết giữa các thành viên, đồng thời tạo điều kiện thuận lợi cho các hoạt động sinh hoạt chung và quản lý tổ chức.
Tổ chức không gian cư trú theo mô đun tầng bậc: Tổ chức không gian theo mô đun tầng bậc là phương thức tổ chức không gian dựa trên các đơn vị cơ bản được lặp lại và liên kết với nhau theo cấu trúc phân cấp. Trong kiến trúc khu ở, mô hình này thường được tổ chức theo các cấp độ như: phòng ở – nhóm phòng – tầng – khối nhà. Đối với môi trường cư trú của học viên quân sự, mô hình này phù hợp với cấu trúc tổ chức đơn vị quân đội (trung đội – đại đội – tiểu đoàn), từ đó tạo sự thống nhất giữa tổ chức không gian kiến trúc và tổ chức quản lý quân sự [5,6].


Cấu trúc tổ chức không gian cư trú cho học viên phân đội theo mô đun tầng bậc trong trường đại học quân sự
Vai trò của không gian sinh hoạt chung: Không gian sinh hoạt chung đóng vai trò quan trọng trong việc hình thành môi trường sống cộng đồng. Đây là nơi diễn ra các hoạt động giao tiếp, học tập nhóm, sinh hoạt văn hóa và trao đổi thông tin. Trong các khu cư trú của sinh viên và học viên quân sự, các không gian sinh hoạt chung như phòng học nhóm, phòng sinh hoạt đơn vị, khu sinh hoạt văn hóa… góp phần tăng cường sự gắn kết tập thể và nâng cao chất lượng đời sống tinh thần của người học [2].
2.3. Đặc điểm cư trú của học viên phân đội trong trường đại học quân sự
Cư trú của HVPĐ trong các trường ĐHQS có một số đặc điểm đặc thù so với môi trường ký túc xá sinh viên dân sự.
Thứ nhất, cư trú tập thể theo đơn vị tổ chức quân đội: Học viên được quản lý theo các đơn vị trung đội, đại đội, tiểu đoàn và sinh hoạt tập trung trong khu nhà ở của đơn vị.
Thứ hai, tính kỷ luật và quản lý chặt chẽ: Hoạt động sinh hoạt của học viên diễn ra theo chế độ ngày, tuần và các quy định của quân đội.
Thứ ba, kết hợp giữa sinh hoạt, học tập và rèn luyện: Không gian cư trú không chỉ phục vụ nghỉ ngơi mà còn phục vụ học tập cá nhân, học nhóm và các hoạt động sinh hoạt tập thể.
Những đặc điểm này đòi hỏi việc tổ chức không gian cư trú phải vừa đảm bảo tính tập thể và kỷ luật quân sự, vừa đáp ứng nhu cầu học tập và sinh hoạt ngày càng đa dạng của học viên.


Kết hợp sinh hoạt – rèn luyện trong không gian cư trú.
3. Cơ sở thực tiễn tổ chức không gian cư trú cho học viên phân đội trong các trường đại học quân sự
3.1. Các yếu tố ảnh hưởng
Quy mô đào tạo của nhà trường: Quy mô đào tạo quyết định số lượng học viên cư trú trong khu nhà ở và từ đó ảnh hưởng trực tiếp đến quy mô công trình, mật độ bố trí phòng ở cũng như hệ thống không gian sinh hoạt chung. Những trường có quy mô đào tạo lớn đòi hỏi tổ chức không gian cư trú theo các cụm hoặc khối nhà với cấu trúc phân cấp rõ ràng nhằm đảm bảo thuận lợi cho quản lý và sinh hoạt tập thể.
Cơ cấu tổ chức đơn vị học viên: Học viên trong các trường đại học quân sự được tổ chức và quản lý theo các đơn vị quân đội như trung đội, đại đội và tiểu đoàn. Cơ cấu tổ chức này có tác động trực tiếp đến cách phân chia các nhóm không gian cư trú, đòi hỏi việc tổ chức phòng ở, cụm phòng và khối nhà phải phù hợp với tổ chức đơn vị nhằm bảo đảm thuận lợi cho quản lý, sinh hoạt và xây dựng đời sống tập thể.
Điều kiện quỹ đất và cơ sở vật chất: Quỹ đất xây dựng và điều kiện cơ sở vật chất của nhà trường ảnh hưởng đến hình thức bố trí không gian cư trú, bao gồm mật độ xây dựng, chiều cao công trình và cách tổ chức các khu chức năng. Trong điều kiện quỹ đất hạn chế, việc tổ chức không gian cư trú theo mô hình nhà ở cao tầng kết hợp với các không gian sinh hoạt chung tập trung có thể là giải pháp phù hợp nhằm nâng cao hiệu quả sử dụng đất.
Yêu cầu quản lý, huấn luyện và sinh hoạt quân sự: Không gian cư trú của HVPĐ trong các trường ĐHQS phải đáp ứng các yêu cầu về quản lý quân số, tổ chức sinh hoạt đơn vị và thực hiện các chế độ trong ngày, trong tuần theo quy định của quân đội. Vì vậy, việc tổ chức không gian cần đảm bảo tính tập trung, thuận lợi cho kiểm tra, điểm danh, sinh hoạt tập thể và duy trì nề nếp kỷ luật quân sự.
Xu hướng phát triển kiến trúc ký túc xá sinh viên: Trong những năm gần đây, kiến trúc ký túc xá sinh viên trên thế giới có xu hướng chú trọng đến chất lượng môi trường sống, tăng cường không gian sinh hoạt cộng đồng và các khu vực học tập linh hoạt. Những xu hướng này có thể được tham khảo và vận dụng trong tổ chức không gian cư trú của HVPĐ nhằm tạo môi trường sống và học tập thuận lợi hơn
3.2. Kinh nghiệm tổ chức không gian cư trú
Kinh nghiệm tổ chức ký túc xá sinh viên: Nhiều trường đại học trên thế giới đã áp dụng mô hình ký túc xá theo cụm cộng đồng, trong đó mỗi cụm gồm các phòng ở kết hợp với không gian sinh hoạt chung và học tập nhóm. Mô hình này giúp tăng cường tương tác xã hội và tạo môi trường học tập tích cực.
Kinh nghiệm tổ chức doanh trại quân đội: Trong doanh trại quân đội, không gian cư trú thường được tổ chức theo mô hình nhà ở sĩ quan, chiến sĩ, trong đó các phòng ở được bố trí dọc theo hành lang với các không gian sinh hoạt tập thể phục vụ toàn đơn vị. Mô hình này thuận lợi cho quản lý quân số và tổ chức sinh hoạt tập thể, nhưng đôi khi chưa đáp ứng tốt nhu cầu học tập cá nhân của học viên.
3.3. Thực trạng và những vấn đề đặt ra
Phòng ở thường có số lượng người lớn: Mật độ cư trú cao làm giảm mức độ riêng tư cá nhân và có thể ảnh hưởng đến chất lượng nghỉ ngơi, sinh hoạt của HVPĐ.
Thiếu không gian học tập cá nhân: Việc thiếu các khu vực học tập yên tĩnh trong khu ở có thể hạn chế điều kiện tự học và nghiên cứu của học viên.
Không gian sinh hoạt chung còn hạn chế: Sự thiếu hụt các không gian sinh hoạt tập thể làm giảm cơ hội giao lưu, trao đổi học tập và hoạt động cộng đồng của học viên.
Chưa hình thành rõ cấu trúc không gian cộng đồng: Không gian cư trú chưa phản ánh rõ cấu trúc tổ chức đơn vị, từ đó chưa phát huy tốt vai trò gắn kết đời sống tập thể trong đơn vị học viên.
Thực trạng trên cho thấy cần nghiên cứu tổ chức không gian cư trú phù hợp hơn với đặc điểm đào tạo và sinh hoạt của HVPĐ trong các trường ĐHQS.
4. Định hướng tổ chức không gian cư trú cho học viên phân đội trong các trường đại học quân sự
4.1. Nguyên tắc tổ chức
Phù hợp với tổ chức đơn vị quân đội: Không gian cư trú cần được tổ chức phù hợp với cơ cấu tổ chức đơn vị của học viên trong quân đội như trung đội, đại đội và tiểu đoàn. Việc bố trí phòng ở, cụm phòng và các khu sinh hoạt chung theo cấu trúc đơn vị giúp thuận lợi cho công tác quản lý, duy trì nề nếp sinh hoạt và xây dựng đời sống tập thể.
Kết hợp giữa tính kỷ luật và môi trường học tập: Không gian cư trú cần vừa đáp ứng yêu cầu quản lý tập trung, kỷ luật quân sự, vừa tạo điều kiện thuận lợi cho hoạt động học tập và nghiên cứu của học viên. Việc bố trí hợp lý các khu vực học tập, sinh hoạt và nghỉ ngơi sẽ góp phần hình thành môi trường sống và học tập cân bằng, phù hợp với đặc thù đào tạo sĩ quan.
Tăng cường không gian sinh hoạt cộng đồng: Các khu vực sinh hoạt chung như phòng sinh hoạt đơn vị, không gian giao lưu hoặc học tập nhóm cần được chú trọng trong tổ chức không gian cư trú. Những không gian này góp phần thúc đẩy giao tiếp xã hội, tăng cường sự gắn kết tập thể và hỗ trợ các hoạt động học tập, sinh hoạt của học viên.
Đảm bảo tính linh hoạt và khả năng thích ứng: Tổ chức không gian cư trú cần có khả năng điều chỉnh linh hoạt để thích ứng với sự thay đổi về quy mô đào tạo, tổ chức đơn vị hoặc yêu cầu sử dụng trong từng giai đoạn. Việc thiết kế theo mô đun hoặc cấu trúc không gian mở có thể giúp nâng cao khả năng sử dụng hiệu quả và lâu dài của công trình.
4.2. Mô hình tổ chức không gian
1. Mô hình cụm cư trú – trung tâm sinh hoạt. Trong mô hình này, các phòng ở của HVPĐ được tổ chức thành các cụm cư trú gắn với một không gian sinh hoạt chung ở trung tâm. Về đặc điểm tổ chức, các phòng ở được bố trí xung quanh hoặc liên kết trực tiếp với khu sinh hoạt chung, tạo thành cấu trúc không gian cộng đồng tương ứng với quy mô đơn vị như trung đội hoặc đại đội. Không gian sinh hoạt trung tâm có thể được sử dụng cho các hoạt động học tập nhóm, sinh hoạt đơn vị và giao lưu giữa các học viên. Với cách tổ chức này, mô hình góp phần tăng cường sự tương tác xã hội, tạo điều kiện thuận lợi cho sinh hoạt tập thể và xây dựng đời sống cộng đồng trong đơn vị.
2. Mô hình cư trú kết hợp học tập – sinh hoạt. Mô hình này hướng tới việc tích hợp các không gian ở, học tập và sinh hoạt trong cùng một khu cư trú của HVPĐ. Đặc điểm của mô hình là bên cạnh các phòng ở còn bố trí các khu vực học tập cá nhân, phòng tự học hoặc không gian học tập nhóm tại từng tầng hoặc từng cụm phòng, tạo nên sự liên kết chặt chẽ giữa các hoạt động sinh hoạt và học tập. Sự kết hợp này giúp học viên có thể thuận lợi chuyển đổi giữa các hoạt động nghỉ ngơi, tự học và sinh hoạt tập thể trong cùng một môi trường không gian. Ý nghĩa của mô hình là góp phần tạo lập môi trường học tập thuận lợi ngay trong khu cư trú, phù hợp với yêu cầu đào tạo đại học và nâng cao khả năng tự học, nghiên cứu của học viên.
3. Mô hình cư trú gắn với không gian mở và hoạt động tập thể. Trong mô hình này, các khối nhà ở của HVPĐ được tổ chức xung quanh các không gian mở như sân sinh hoạt, sân thể thao nhỏ hoặc khu sinh hoạt ngoài trời. Về đặc điểm tổ chức không gian, các khối nhà ở được bố trí theo dạng quần thể hoặc bao quanh một không gian sân chung, tạo mối liên hệ trực tiếp giữa không gian ở và các khu vực hoạt động tập thể. Các không gian mở này có thể được sử dụng cho các hoạt động thể dục, sinh hoạt tập thể hoặc giao lưu của học viên.

Các mô hình tổ chức không gian cư trú cho HVPĐ trong trường ĐHQS.
4.3. Giải pháp tổ chức không gian
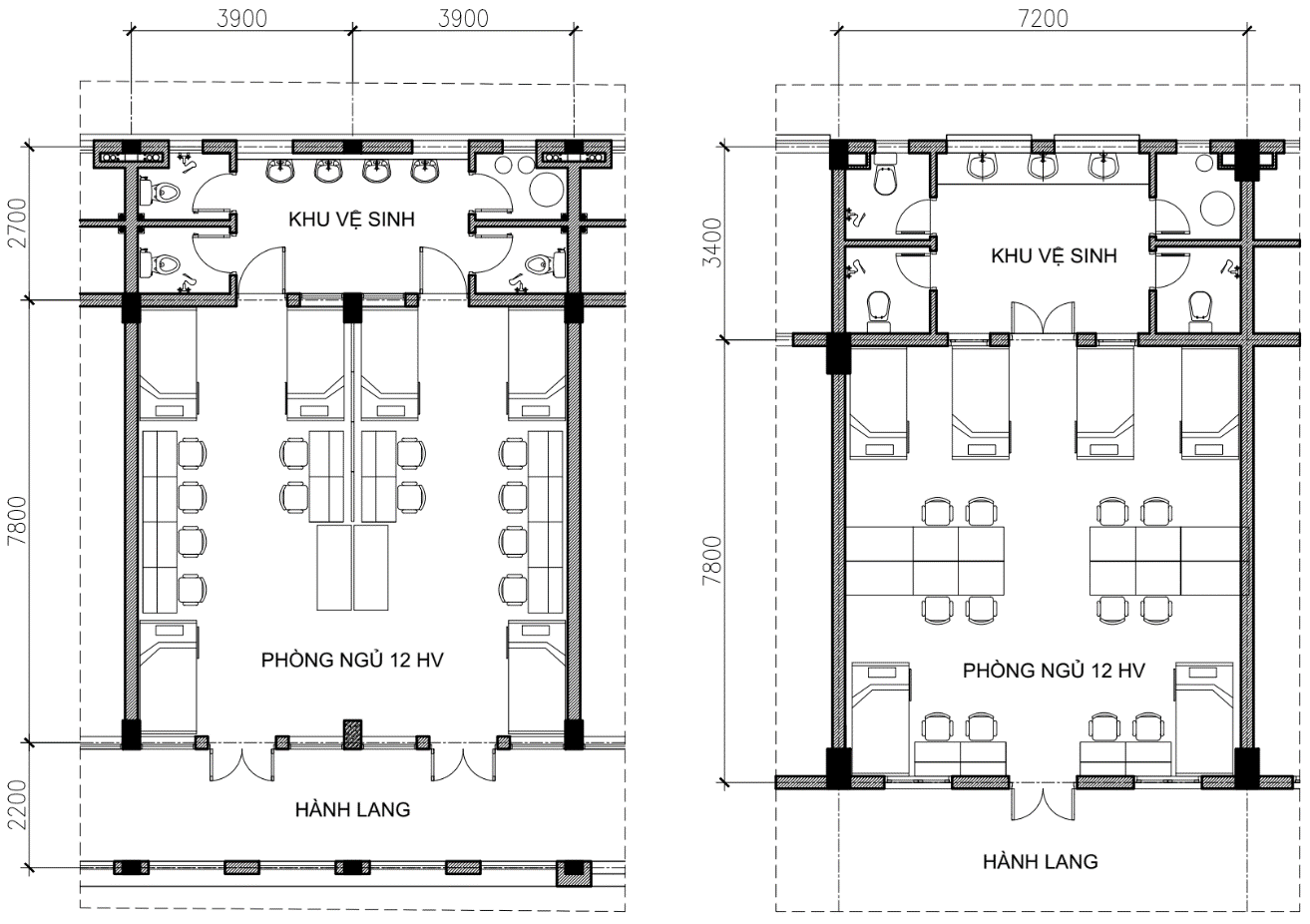
Tổ chức phòng ở với quy mô hợp lý: Phòng ở của HVPĐ cần được tổ chức với quy mô phù hợp nhằm bảo đảm điều kiện sinh hoạt và nghỉ ngơi trong môi trường cư trú tập trung. Trước đây, phòng ở HVPĐ các trường thường theo thiết kế mẫu nhà ở chiến sĩ với một trung đội (khoảng 35-40 người) trong một phòng. Những thiết kế mới nhà ở HVPĐ cần chú ý giảm số lượng người trong phòng xuống dưới 12 người/phòng (tương đương 01 tiểu đội/phòng). Bên cạnh đó, cũng phải kết hợp với việc sắp xếp giường, tủ cá nhân và khu vực sinh hoạt trong phòng theo cấu trúc khoa học để bảo đảm thông thoáng và thuận tiện sử dụng. Việc tổ chức phòng ở hợp lý không chỉ nâng cao chất lượng môi trường sống mà còn góp phần tạo điều kiện thuận lợi cho sinh hoạt tập thể và duy trì nề nếp sinh hoạt của đơn vị.

Tổ chức phòng ở với quy mô hợp lý và tích hợp không gian học tập.
Bố trí không gian học tập chung: Trong khu cư trú cần bố trí các không gian học tập chung nhằm hỗ trợ hoạt động tự học và học tập nhóm của HVPĐ. Các không gian này có thể được tổ chức dưới dạng phòng tự học, khu vực đọc sách hoặc góc học tập chung tại mỗi tầng hoặc mỗi cụm phòng ở. Nếu không tổ chức được riêng các phòng tự học thì có thể thiết kế không gian học tập chung tích hợp trong các phòng sinh hoạt đại đội, tiểu đoàn với điều kiện thiết kế, bố trí nội thất thông minh, linh hoạt. Việc bố trí hợp lý các khu vực học tập trong khu cư trú giúp tạo môi trường học tập thuận lợi, giảm áp lực cho phòng ở và góp phần nâng cao hiệu quả học tập của HVPĐ.
a) ![]() | b) ![]() |
Thiết kế phòng tự học nhà ở HVPĐ. | |
a) Phòng tự học phục vụ một đại đội | |
b) Phòng ở tự học phục vụ một lớp, diện tích 42 m2 | |
Tăng cường không gian sinh hoạt cộng đồng: Không gian sinh hoạt cộng đồng đóng vai trò quan trọng trong đời sống tập thể của HVPĐ và cần được chú trọng trong tổ chức khu cư trú. Các không gian này có thể bao gồm phòng sinh hoạt đơn vị, khu giao lưu hoặc các không gian sinh hoạt chung tại từng tầng hoặc từng cụm nhà ở. Việc tăng cường các không gian sinh hoạt cộng đồng không chỉ tạo điều kiện cho các hoạt động tập thể mà còn góp phần củng cố sự gắn kết giữa các học viên trong cùng đơn vị.
Thiết kế linh hoạt các khu sinh hoạt văn hóa: Bên cạnh các không gian sinh hoạt cơ bản, khu cư trú cần được bổ sung các khu vực sinh hoạt văn hóa nhằm đáp ứng nhu cầu giải trí và phát triển đời sống tinh thần của HVPĐ. Các không gian này có thể được thiết kế linh hoạt để phục vụ nhiều loại hoạt động như đọc sách, sinh hoạt câu lạc bộ, xem phim hoặc tổ chức các hoạt động văn hóa tập thể. Việc thiết kế linh hoạt giúp không gian có thể thích ứng với nhiều hình thức sử dụng khác nhau, từ đó nâng cao chất lượng môi trường sống trong khu cư trú.
5. Kết luận
Nghiên cứu cho thấy tổ chức không gian cư trú của HVPĐ trong các trường ĐHQS không chỉ đơn thuần là vấn đề bố trí nơi ở mà còn gắn với việc hình thành môi trường giáo dục – rèn luyện toàn diện trong nhà trường quân đội. Trên cơ sở phân tích các lý luận về tổ chức không gian cư trú, hành vi xã hội trong môi trường sống và đặc điểm cư trú của HVPĐ, bài báo đã làm rõ những yêu cầu đặc thù đối với không gian cư trú của HVPĐ, bao gồm tính tập thể, tính kỷ luật quân sự và nhu cầu học tập, sinh hoạt ngày càng đa dạng trong môi trường đào tạo đại học.
ThS Nguyễn Hoàng Việt
Khoa Doanh trại - Học viện Hậu cần
Tài liệu tham khảo
[1] Amos Rapoport (1969). House Form and Culture. Prentice Hall, New Jersey.
[2] Clare Cooper Marcus, Wendy Sarkissian (1986). Housing as if People Mattered: Site Design Guidelines for Medium-Density Family Housing. University of California Press, Berkeley.
[3] Edward T. Hall (1966). The Hidden Dimension. Doubleday, New York.
[4] Quốc hội (2020). Luật Cư trú. NXB Chính trị Quốc gia Sự thật, Hà Nội.
[5] Trần Thanh Bình (2014). "Cấu trúc cơ bản trong tổ chức không gian kiến trúc quy hoạch trường đại học". Tạp chí Kiến trúc, số 8, tr. 51.
[6] Vũ Duy Cừ (2010). Tổ chức không gian kiến trúc các loại nhà công cộng. NXB Xây dựng, Hà Nội.

