Gia đình tôi có 6 thành viên (ông bà, hai vợ chồng, một cậu con trai và một cô con gái) nên nhu cầu sử dụng không gian khá đơn giản: Sân vườn, chỗ để xe, phòng khách, phòng thờ, bếp kết hợp phòng ăn, 4 phòng ngủ, 3 phòng vệ sinh chung, khu giặt phơi phía sau nhà.
Xin chân thành cảm ơn!
Kiến trúc sư tư vấn thiết kế nhà vườn 1 tầng mái Thái
Mảnh đất diện tích 250m2 là điều kiện lý tưởng để thiết kế mẫu nhà vườn 1 tầng mái Thái hiện đại, tiện nghi với nhiều không gian xanh mát, gần gũi với thiên nhiên. Theo mong muốn của gia chủ, kiến trúc sư đưa ra phương án thiết kế nhà vườn như sau để bạn tham khảo.
![]() |
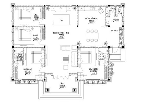
| Mặt bằng bố trí công năng nhà vườn 1 tầng mái Thái |
Kiến trúc sư dành một phần diện tích phía trước và sau nhà làm sân vườn trồng hoa, cây cảnh tạo không gian thư giãn ngoài trời thoáng đãng. Đồng thời, đây cũng là nơi để xe cho quan khách cũng như các thành viên gia đình.
Ngay sau bậc tam cấp vào nhà là phòng khách rộng rãi, bài trí nội thất sang trọng hiện đại. Căn phòng có cửa sổ kính mở ra ngoài lấy sáng tự nhiên, đón những làn gió tự nhiên mát lành. Phòng khách sở hữu tầm nhìn thoáng đẹp ra cảnh quan sân vườn bên ngoài, tạo cảm giác thư giãn.
Đối diện và liền kề với phòng khách là không gian phòng thờ gia tiên. Kiến trúc sư thiết kế phòng thờ theo phong cách truyền thống với nội thất gỗ chạm khắc tinh tế, đẹp mắt. Hướng bàn thờ nhìn về hướng tốt, đón tài lộc, may mắn cho gia chủ. Được thiết kế liên thông với phòng khách nên phòng thờ có thể đón sáng tự nhiên tối đa từ cửa chính.
Cạnh đó là phòng bếp và không gian ăn uống được thiết kế nội thất hiện đại, trang bị đầy đủ tiện ích thiết yếu, đáp ứng nhu cầu sinh hoạt hàng ngày của gia đình. Đặc biệt, căn phòng có cửa mở ra sảnh phụ đón sáng, thông gió, đẩy mùi thức ăn, dầu mỡ ra ngoài, tránh ảnh hưởng tới các phòng chức năng khác.
Phòng ngủ master của vợ chồng gia chủ có diện tích rộng rãi, vệ sinh khép kín, sở hữu tầm nhìn thoáng đẹp ra sân vườn. Phòng ngủ của con trai và con gái đủ rộng để bố trí đầy đủ nội thất, tiện nghi thiết yếu, đáp ứng nhu cầu sinh hoạt, học tập của trẻ. Phòng ngủ ông bà với vệ sinh khép kín thuận lợi cho sinh hoạt của người già, có cửa sổ mở ra ngoài sân vườn lấy gió, đón sáng tự nhiên.
Phòng tắm, vệ sinh và khu giặt kết hợp sân phơi được bố trí ở phía sau nhà, nơi các thành viên có thể dễ dàng tiếp cận từ nhiều hướng khác nhau và thuận tiện trong sinh hoạt hàng ngày.
![]() |
| Phối cảnh 3D mẫu nhà vườn 1 tầng mái Thái |
Không gian nội thất nhà vườn 1 tầng mái Thái tham khảo
![]() |
| Phòng khách nhà vườn rộng rãi, bài trí nội thất sang trọng với cửa kính lớn tạo tầm nhìn thoáng đẹp ra sân vườn bên ngoài. |
![]() |
| Không gian bếp và phòng ăn luôn thông thoáng, đón được ánh sáng tự nhiên tối đa vào ban ngày nhờ cửa mở ra sân sau nhà. |
![]() |
| Mẫu phòng thờ gia tiên phong cách truyền thống với nội thất gỗ ấm áp, chạm trổ cầu kỳ. |
![]() |
| Phòng ngủ master rộng rãi, thiết kế nội thất hiện đại tối giản với đầy đủ tiện ích đáp ứng nhu cầu nghỉ ngơi, thư giãn của gia chủ. |
![]() |
| Phòng cho con trai lớn với ánh sáng tự nhiên ngập tràn, tích hợp cả góc làm việc/học tập đầy đủ tiện ích. Tủ kệ liền tường giúp tăng không gian lưu trữ. |
![]() |
| Phòng ngủ xinh yêu dành cho cô con gái với sắc hồng nhẹ nhàng. Không quá nhiều phụ kiện trang trí nhưng căn phòng vẫn rất sinh động, hút mắt nhờ bảng màu phối kết tinh tế. |
![]() |
| Vách ngăn lửng nhẹ nhàng phân tách tương đối giữa khu vực vệ sinh với khu tắm trong nhà vườn 1 tầng mái Thái. |
Đơn vị tư vấn: Công ty Cổ phần XD & TM Kiến tạo Việt
KTS: Nguyễn Quốc Tuấn
>> Tham khảo mẫu nhà ống 2,5 tầng tiện nghi, hợp phong thủy
>> Nhà lô góc 6,5 tầng kết hợp kinh doanh, diện tích đất 64m2








