Vinhomes Phú Quý: Khu đô thị tại Khánh Hòa

Thứ năm, 09/10/2025 - 13:20

Vinhomes Phú Quý (hay Vinpearl Phú Quý) là khu đô thị tọa lạc tại phường Nha Trang, tỉnh Khánh Hòa (phường Vĩnh Nguyên và phường Vĩnh Trường, TP.Nha Trang cũ). Từ dự án, cư dân thuận tiện di chuyển đến ga Nha Trang, núi Cô Tiên, bến du thuyền Ana Marina, sân bay Cam Ranh...

Quy mô dự án Vinhomes Phú Quý Khánh Hòa

Vinhomes Phú Quý: Khu đô thị tại Khánh Hòa- Ảnh 1.

Phối cảnh dự án Vinhomes Phú Quý

Tổng diện tích

338.007,17m2

Số lượng sản phẩm

235 nhà ở xã hội

350 nhà liền kề

56 biệt thự tứ lập

73 biệt thự đơn lập

2 tòa chung cư

Quy mô dân số

2.720 người

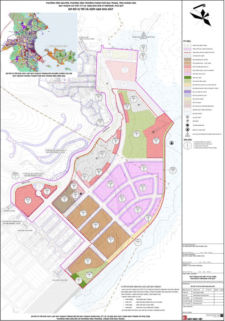
Quy mô dự án Vinhomes Phú Quý

Vinhomes Phú Quý: Khu đô thị tại Khánh Hòa- Ảnh 2.

Mặt bằng quy hoạch chi tiết 1/500 dự án

Sản phẩm dự án Vinhomes Phú Quý Khánh Hòa

Biệt thự

Diện tích: 180-450m2

Vinhomes Phú Quý: Khu đô thị tại Khánh Hòa- Ảnh 3.

Phối cảnh biệt thự tại dự án

Nhà liền kề

Diện tích: 90-130m2

Vinhomes Phú Quý: Khu đô thị tại Khánh Hòa- Ảnh 4.

Thiết kế nhà liền kề tại dự án

Căn hộ

Vinhomes Phú Quý: Khu đô thị tại Khánh Hòa- Ảnh 5.

Thiết kế căn hộ tại dự án

Tiện ích dự án Vinhomes Phú Quý Khánh Hòa

- Bãi tắm riêng

- Clubhouse

- Hồ bơi

- Spa 

- Phòng gym trị liệu

- Công viên cây xanh

- Khu vui chơi dành chơi trẻ em

- Trường mầm non Vinschool

- Quảng trường biển...

Vinhomes Phú Quý: Khu đô thị tại Khánh Hòa- Ảnh 6.

Phối cảnh tiện ích tại dự án

Pháp lý dự án Vinhomes Phú Quý Khánh Hòa

Dự án Vinhomes Phú Quý có tên pháp lý là khu nhà ở Vinpearl Phú Quý.

Ngày 29/3/2024, UBND tỉnh Khánh Hòa ban hành Quyết định số 863/QĐ-UBND về việc thu hồi đất và giao đất cho chủ đầu tư thực hiện dự án với với diện tích 289.596m2.

Ngày 21/8/2025, UBND tỉnh Khánh Hòa ban hành Quyết định số 777/QĐ-UBND về việc phê duyệt điều chỉnh cục bộ chi tiết tỷ lệ 1/500.

Tiến độ dự án Vinhomes Phú Quý Khánh Hòa

Cập nhật tháng 9/2025, dự án đang trong giai đoạn thi công kết cấu phần thân và triển khai hạ tầng nội khu.

Giá bán tham khảo:

- Biệt thự biển: 200-220 triệu đồng/m2

- Shophouse/nhà liền kề: 180-200 triệu đồng/m2

Vinhomes Phú Quý: Khu đô thị tại Khánh Hòa- Ảnh 7.

Vinhomes Phú Quý: Khu đô thị tại Khánh Hòa- Ảnh 8.

Tiến độ dự án cập nhật tháng 9/2025

Thông tin chủ đầu tư dự án Vinhomes Phú Quý Khánh Hòa

Chủ đầu tư dự án Vinhomes Phú Quý là Công ty Cổ phần Vinpearl hoạt động từ năm 2001, địa chỉ trụ sở là đảo Hòn Tre, phường Nha Trang, tỉnh Khánh Hòa. Người đại diện pháp luật là bà Đặng Thu Thủy.

Doanh nghiệp hoạt động chính trong lĩnh vực khách sạn, biệt thự hoặc căn hộ kinh doanh dịch vụ lưu trú ngắn ngày, khu du lịch sinh thái... Một số dự án tiêu biểu như Vinpearl Resort & Spa Phú Quốc, Vinpearl Luxury Nha Trang, Vinpearl Premium Golf Land Nha Trang...

Thông tin nhanh dự án Vinhomes Phú Quý Khánh Hòa

Dự án: Vinhomes Phú Quý

Tổng diện tích: 338.007,17m2

Vị trí: Phường Nha Trang, tỉnh Khánh Hòa

Tổng vốn đầu tư: 7.453 tỷ đồng

Loại hình: Căn hộ, nhà liền kề, biệt thự

Năm khởi công:

Chủ đầu tư: Công ty Cổ phần Vinpearl

Năm hoàn thành: 

Cẩm Tú