
Tuy ngôi nhà được xây trên địa hình dốc đứng với cảnh quan ấn tượng nhưng cũng chính là thách thức dành cho kiến trúc sư. Mong muốn của chủ đầu tư là có một không gian sống mở hướng đến thiên nhiên và mang cảm giác riêng tư hài hòa với cảnh quan xung quanh.

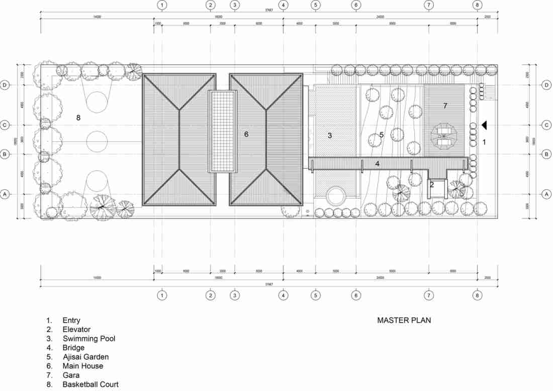
Giải pháp kiến trúc là khu đất được chia làm hai phần. Phần đầu là khối trên nằm ở điểm cao nhất mang ánh sáng tự nhiên và thông gió. Phần cuối là khối dưới gồm một gara và các chức năng phụ có vai trò là điểm tiếp cận chính từ trục đường phía trước.

Khối thang máy riêng kết nối trực tiếp với ngôi nhà chính qua một cây cầu thép tạo thành hành trình đi qua khu vườn, hồ bơi, sân trước và đến ngôi nhà.

Các khối chức năng được bố trí ở các mức độ khác nhau tăng dần phía sau và kết thúc tại một khu vườn tích hợp sân bóng rổ cuối khu đất.

Khu nhà chính xây dựng trên kết cấu khung thép kết hợp với đá và gỗ tự nhiên tạo thành lớp vỏ bảo vệ vững chắc chống lại những biến đổi thời tiết khắc nghiệt tại khu vực.

Gỗ và mái hiên mở rộng được lấy cảm hứng từ không gian kiến trúc truyền thống Việt với hình ảnh các hàng cột và không gian đối xứng. Trục giao thông chính được đặt trung tâm, kết nối sân trước với phía sau.

Khu vườn và mái khu vực gara kết nối nhau tạo thành không gian mở rộng và có thể trồng loại hoa cẩm tú cầu yêu thích của gia chủ. Khách đến nhà có thể ngắm nhìn khu vườn này từ cầu thang bên cạnh hoặc từ cây cầu dẫn đến khu nhà chính.

Hai khu vườn nhỏ hai bên kéo dài vào giữa nhà tạo nên không gian xanh và kết nối giữa các phòng cũng như không gian bên ngoài. Nơi đây sẽ lý tưởng để tận hưởng không gian sống ngoài trời và trải nghiệm cảm giác hòa mình với thiên nhiên.

Cây cầu thẳng dẫn lối đến khu nhà chính.
Bên trong, nội thất được thiết kế chú trọng tạo nên cảm xúc thông qua vật liệu tự nhiên như gỗ, đá mang đến không gian ấm cúng và sang trọng.

Phòng khách và phòng ăn thiết kế mở, hệ cửa kính trượt bản lớn giúp không gian trở nên rộng rãi, thoáng đãng, đặc biệt dù đứng góc nào cũng phóng tầm nhìn toàn cảnh xung quanh.
Các phòng ngủ được thiết kế tận dụng tối đa hướng nhìn ra cảnh quan xung quanh nhưng vẫn đảm bảo tính riêng tư.

Bên cạnh đó, các phòng chức năng phụ trợ như phòng làm việc, phòng giải trí và phòng tắm cũng được thiết kế với sự chăm chút tỉ mỉ nhằm mang lại cảm giác thoải mái và tiện nghi. Tất cả yếu tố này đã tạo nên một ngôi nhà đặc biệt trên dốc núi dành cho đại gia đình điển hình của người Việt khi có xu hướng sống gần gũi nhau dưới một mái nhà.

Bản vẽ kiến trúc xây nhà trên đồi dốc ngắm trọn sân golf, dãy núi Tam Đảo đặc biệt cây cầu đi trên nước.

(Nguồn: Idee Architects)
Chu Anh (Archdaily.com)